New Homes » Kansai » Osaka prefecture » Ibaraki
 
| | Ibaraki, Osaka 大阪府茨木市 |
| Osaka Monorail Saito line "Toyokawa" walk 25 minutes 大阪モノレール彩都線「豊川」歩25分 |
| ■ Easy to live in in town ■ Solar power generation systems equipped with housing ■ National Highway 171 Highway near ■ LDK15 tatami ensure ■充実設備で暮らしやすい ■太陽光発電システム搭載住宅 ■国道171号線近い ■LDK15畳確保 |
| ● room so you are equipped with all the room housed and under-floor storage is you can use widely. ■ System kitchen ■ Bathroom Dryer Washbasin with shower Face-to-face kitchen ■ Toilet 2 places Warm water washing toilet seat ■ TV monitor interphone Water filter ■ ●全居室収納と床下収納を完備していますので室内は広くお使いいただけます。 ■システムキッチン ■浴室乾燥機 シャワー付洗面台 対面式キッチン ■トイレ2ヶ所 温水洗浄便座 ■TVモニタ付インターホン 浄水器 ■ |
Features pickup 特徴ピックアップ | | Corresponding to the flat-35S / Solar power system / System kitchen / Bathroom Dryer / All room storage / A quiet residential area / LDK15 tatami mats or more / Japanese-style room / Washbasin with shower / Face-to-face kitchen / Toilet 2 places / 2-story / Double-glazing / Warm water washing toilet seat / Underfloor Storage / The window in the bathroom / TV monitor interphone / Leafy residential area / Water filter フラット35Sに対応 /太陽光発電システム /システムキッチン /浴室乾燥機 /全居室収納 /閑静な住宅地 /LDK15畳以上 /和室 /シャワー付洗面台 /対面式キッチン /トイレ2ヶ所 /2階建 /複層ガラス /温水洗浄便座 /床下収納 /浴室に窓 /TVモニタ付インターホン /緑豊かな住宅地 /浄水器 | Price 価格 | | 23.8 million yen 2380万円 | Floor plan 間取り | | 4LDK 4LDK | Units sold 販売戸数 | | 1 units 1戸 | Land area 土地面積 | | 108.15 sq m 108.15m2 | Building area 建物面積 | | 95.37 sq m 95.37m2 | Driveway burden-road 私道負担・道路 | | Nothing, West 5m width 無、西5m幅 | Completion date 完成時期(築年月) | | October 2013 2013年10月 | Address 住所 | | Ibaraki, Osaka Shinkoriyama 2 大阪府茨木市新郡山2 | Traffic 交通 | | Osaka Monorail Saito line "Toyokawa" walk 25 minutes 大阪モノレール彩都線「豊川」歩25分
| Related links 関連リンク | | [Related Sites of this company] 【この会社の関連サイト】 | Person in charge 担当者より | | [Regarding this property.] It is very convenient for those who from the national highway 171 Route of the nearby private car 【この物件について】国道171号線から近く自家用車のある方には大変便利です | Contact お問い合せ先 | | TEL: 0800-603-8261 [Toll free] mobile phone ・ Also available from PHS Caller ID is not notified Please contact the "saw SUUMO (Sumo)" If it does not lead, If the real estate company TEL:0800-603-8261【通話料無料】携帯電話・PHSからもご利用いただけます 発信者番号は通知されません 「SUUMO(スーモ)を見た」と問い合わせください つながらない方、不動産会社の方は
| Building coverage, floor area ratio 建ぺい率・容積率 | | 60% ・ 200% 60%・200% | Land of the right form 土地の権利形態 | | Ownership 所有権 | Structure and method of construction 構造・工法 | | Wooden 2-story 木造2階建 | Use district 用途地域 | | One middle and high 1種中高 | Overview and notices その他概要・特記事項 | | Facilities: Public Water Supply, This sewage, City gas, Building confirmation number: No. H25SHC111645, Parking: car space 設備:公営水道、本下水、都市ガス、建築確認番号:第H25SHC111645号、駐車場:カースペース | Company profile 会社概要 | | <Mediation> governor of Osaka (2) No. 053530 (Co.) plus one realistic Estate Yubinbango562-0012 Osaka Prefecture Mino Hakushima 1-2-12 <仲介>大阪府知事(2)第053530号(株)プラスワンリアルエステート〒562-0012 大阪府箕面市白島1-2-12 |
Local photos, including front road前面道路含む現地写真  Local (10 May 2013) Shooting
現地(2013年10月)撮影
Local appearance photo現地外観写真  Local (10 May 2013) Shooting
現地(2013年10月)撮影
Kitchenキッチン  Same specifications of the company's other properties
同社他物件の同仕様
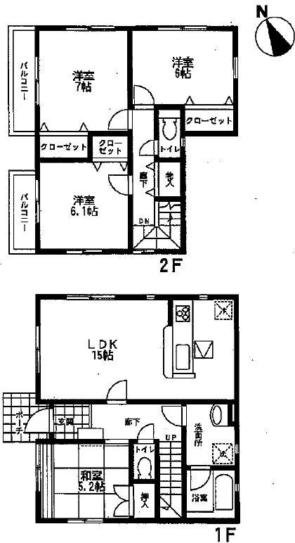
Floor plan間取り図  23.8 million yen, 4LDK, Land area 108.15 sq m , Building area 95.37 sq m
2380万円、4LDK、土地面積108.15m2、建物面積95.37m2
Local appearance photo現地外観写真  Local (10 May 2013) Shooting
現地(2013年10月)撮影
Livingリビング  Same specifications of the company's other properties
同社他物件の同仕様
Bathroom浴室  Same specifications of the company's other properties
同社他物件の同仕様
Kitchenキッチン  Same specifications of the company's other properties
同社他物件の同仕様
Non-living roomリビング以外の居室  Same specifications of the company's other properties
同社他物件の同仕様
Entrance玄関  Same specifications of the company's other properties
同社他物件の同仕様
Wash basin, toilet洗面台・洗面所  Same specifications of the company's other properties
同社他物件の同仕様
Toiletトイレ  Same specifications of the company's other properties
同社他物件の同仕様
Shopping centreショッピングセンター  710m to the Fashion Center Shimamura Ibaraki shop
ファッションセンターしまむら茨木店まで710m
Local appearance photo現地外観写真  Local (10 May 2013) Shooting
現地(2013年10月)撮影
Non-living roomリビング以外の居室  Same specifications of the company's other properties
同社他物件の同仕様
Wash basin, toilet洗面台・洗面所  Same specifications of the company's other properties
同社他物件の同仕様
Toiletトイレ  Same specifications of the company's other properties
同社他物件の同仕様
Supermarketスーパー  848m to Cope Ibaraki Fujinosato
コープ茨木藤の里まで848m
Wash basin, toilet洗面台・洗面所  Same specifications of the company's other properties
同社他物件の同仕様
Junior high school中学校  Ibaraki 1135m to stand Toyokawa junior high school
茨木市立豊川中学校まで1135m
Primary school小学校  Ibaraki 448m to stand Koriyama elementary school
茨木市立郡山小学校まで448m
Location
|