New Homes » Kansai » Osaka prefecture » Ibaraki
 
| | Ibaraki, Osaka 大阪府茨木市 |
| Osaka Monorail Saito line "Toyokawa" 15 minutes Nakagawara walk 6 minutes by bus 大阪モノレール彩都線「豊川」バス15分中河原歩6分 |
| ■ Significant price update ■ Large balcony facing south ■ Readjustment already ■ ■大幅価格更新 ■大型バルコニー南向き ■区画整理済 ■ |
| ● corresponds to the flat 35S ensure LDK15 mat over top of system kitchen ● is a day best in Zenshitsuminami facing ● equipped with all the living room housed and under-floor storage ●フラット35Sに対応しシステムキッチン完備のうえLDK15畳以上を確保 ●全室南向きで日当たり最高です●全居室収納と床下収納完備 |
Features pickup 特徴ピックアップ | | Corresponding to the flat-35S / Facing south / System kitchen / Yang per good / All room storage / LDK15 tatami mats or more / Japanese-style room / Toilet 2 places / 2-story / South balcony / Double-glazing / Zenshitsuminami direction / Underfloor Storage / The window in the bathroom / TV monitor interphone / City gas フラット35Sに対応 /南向き /システムキッチン /陽当り良好 /全居室収納 /LDK15畳以上 /和室 /トイレ2ヶ所 /2階建 /南面バルコニー /複層ガラス /全室南向き /床下収納 /浴室に窓 /TVモニタ付インターホン /都市ガス | Price 価格 | | 25,800,000 yen 2580万円 | Floor plan 間取り | | 4LDK 4LDK | Units sold 販売戸数 | | 1 units 1戸 | Total units 総戸数 | | 1 units 1戸 | Land area 土地面積 | | 91.35 sq m 91.35m2 | Building area 建物面積 | | 94.36 sq m 94.36m2 | Driveway burden-road 私道負担・道路 | | Nothing, Southwest 4.2m width 無、南西4.2m幅 | Completion date 完成時期(築年月) | | June 2013 2013年6月 | Address 住所 | | Ibaraki, Osaka Nishifukui 2 大阪府茨木市西福井2 | Traffic 交通 | | Osaka Monorail Saito line "Toyokawa" 15 minutes Nakagawara walk 6 minutes by bus 大阪モノレール彩都線「豊川」バス15分中河原歩6分
| Related links 関連リンク | | [Related Sites of this company] 【この会社の関連サイト】 | Person in charge 担当者より | | [Regarding this property.] It is a quiet residential area that readjustment is in place. 【この物件について】区画整理が整った閑静な住宅街です。 | Contact お問い合せ先 | | TEL: 0800-603-8261 [Toll free] mobile phone ・ Also available from PHS Caller ID is not notified Please contact the "saw SUUMO (Sumo)" If it does not lead, If the real estate company TEL:0800-603-8261【通話料無料】携帯電話・PHSからもご利用いただけます 発信者番号は通知されません 「SUUMO(スーモ)を見た」と問い合わせください つながらない方、不動産会社の方は
| Building coverage, floor area ratio 建ぺい率・容積率 | | 60% ・ 200% 60%・200% | Land of the right form 土地の権利形態 | | Ownership 所有権 | Structure and method of construction 構造・工法 | | Wooden 2-story 木造2階建 | Use district 用途地域 | | One middle and high 1種中高 | Overview and notices その他概要・特記事項 | | Facilities: Public Water Supply, This sewage, City gas, Parking: car space 設備:公営水道、本下水、都市ガス、駐車場:カースペース | Company profile 会社概要 | | <Mediation> governor of Osaka (2) No. 053530 (Co.) plus one realistic Estate Yubinbango562-0012 Osaka Prefecture Mino Hakushima 1-2-12 <仲介>大阪府知事(2)第053530号(株)プラスワンリアルエステート〒562-0012 大阪府箕面市白島1-2-12 |
Local appearance photo現地外観写真  Also safe for children there is a park nearby
近くには公園がありお子様も安心
Local photos, including front road前面道路含む現地写真  I Living is a pleasant fall sunshine
日差しの入るリビングは気持ちいいですね
Entrance玄関  It will spread a balcony
バルコニーも広めでしょ
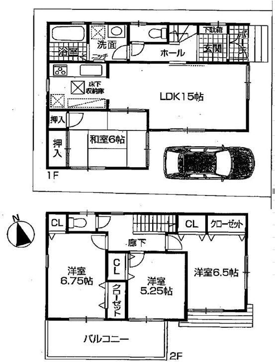
Floor plan間取り図  25,800,000 yen, 4LDK, Land area 91.35 sq m , Building area 94.36 sq m
2580万円、4LDK、土地面積91.35m2、建物面積94.36m2
Local appearance photo現地外観写真  State of under construction
建築中の様子
Livingリビング  Same specifications of the company's other properties
同社他物件の同仕様
Bathroom浴室  Same specifications of the company's other properties
同社他物件の同仕様
Kitchenキッチン  Same specifications of the company's other properties
同社他物件の同仕様
Non-living roomリビング以外の居室  Same specifications of the company's other properties
同社他物件の同仕様
Wash basin, toilet洗面台・洗面所  Same specifications of the company's other properties
同社他物件の同仕様
Receipt収納  Same specifications of the company's other properties
同社他物件の同仕様
Toiletトイレ  Same specifications of the company's other properties
同社他物件の同仕様
Balconyバルコニー  Same specifications of the company's other properties
同社他物件の同仕様
Shopping centreショッピングセンター  760m to the Fashion Center Shimamura Ibaraki shop
ファッションセンターしまむら茨木店まで760m
Otherその他  Same specifications of the company's other properties
同社他物件の同仕様
Non-living roomリビング以外の居室  Same specifications of the company's other properties
同社他物件の同仕様
Balconyバルコニー  Same specifications of the company's other properties
同社他物件の同仕様
Supermarketスーパー  973m to Cope Ibaraki Fujinosato
コープ茨木藤の里まで973m
Non-living roomリビング以外の居室  Same specifications of the company's other properties
同社他物件の同仕様
Supermarketスーパー  Al ・ Until Plaza Ibaraki 1036m
アル・プラザ茨木まで1036m
Convenience storeコンビニ  FamilyMart Ibaraki 1122m to Koriyama shop
ファミリーマート茨木郡山店まで1122m
Location
|