New Homes » Kansai » Osaka prefecture » Ibaraki
 
| | Ibaraki, Osaka 大阪府茨木市 |
| Hankyu Kyoto Line "Ibaraki" walk 15 minutes 阪急京都線「茨木市」歩15分 |
Price 価格 | | 42,420,000 yen ~ 43,360,000 yen 4242万円 ~ 4336万円 | Floor plan 間取り | | 4LDK 4LDK | Units sold 販売戸数 | | 2 units 2戸 | Total units 総戸数 | | 2 units 2戸 | Land area 土地面積 | | 100.5 sq m ~ 104.35 sq m (registration) 100.5m2 ~ 104.35m2(登記) | Building area 建物面積 | | 92.49 sq m ~ 93.72 sq m (registration) 92.49m2 ~ 93.72m2(登記) | Driveway burden-road 私道負担・道路 | | East side Width 9 m 東側 幅員 9メートル | Completion date 完成時期(築年月) | | Three months after the contract 契約後3ヶ月 | Address 住所 | | Ibaraki, Osaka Oike 2 大阪府茨木市大池2 | Traffic 交通 | | Hankyu Kyoto Line "Ibaraki" walk 15 minutes 阪急京都線「茨木市」歩15分
| Related links 関連リンク | | [Related Sites of this company] 【この会社の関連サイト】 | Person in charge 担当者より | | Person in charge of real-estate and building Morii Osamu Age: 40s 担当者宅建森井 修年齢:40代 | Contact お問い合せ先 | | TEL: 072-652-0170 Please inquire as "saw SUUMO (Sumo)" TEL:072-652-0170「SUUMO(スーモ)を見た」と問い合わせください | Building coverage, floor area ratio 建ぺい率・容積率 | | 60% 200% 60% 200% | Time residents 入居時期 | | Three months after the contract 契約後3ヶ月 | Land of the right form 土地の権利形態 | | Ownership 所有権 | Structure and method of construction 構造・工法 | | Wooden 2-story 木造2階建 | Use district 用途地域 | | One middle and high 1種中高 | Land category 地目 | | Residential land 宅地 | Overview and notices その他概要・特記事項 | | Contact: Morii Osamu, Building confirmation number 担当者:森井 修、建築確認番号: | Company profile 会社概要 | | <Mediation> governor of Osaka Prefecture (1) No. 054269 (with) Silver Li home improvement Yubinbango567-0893 Ibaraki, Osaka Tamase-cho 42-6 <仲介>大阪府知事(1)第054269号(有)シルバーリホームセンター〒567-0893 大阪府茨木市玉瀬町42-6 |
 Local appearance photo
現地外観写真
 Local appearance photo
現地外観写真
 Local photos, including front road
前面道路含む現地写真
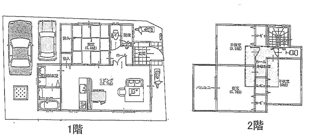
Floor plan間取り図  (No. 1 point), Price 43,360,000 yen, 4LDK, Land area 100.5 sq m , Building area 93.72 sq m
(1号地)、価格4336万円、4LDK、土地面積100.5m2、建物面積93.72m2
 Local photos, including front road
前面道路含む現地写真
Primary school小学校  Ibaraki Municipal Oike to elementary school 492m
茨木市立大池小学校まで492m
Floor plan間取り図  (No. 2 locations), Price 42,420,000 yen, 4LDK, Land area 104.35 sq m , Building area 92.49 sq m
(2号地)、価格4242万円、4LDK、土地面積104.35m2、建物面積92.49m2
Location
|