Investing in Japanese real estate
Ibaraki, Osaka Tenno 1
15.1 million yen, 71.59 sq m | ||
Ibaraki, Osaka Nishiota cho
11.8 million yen, 72.23 sq m | ||
Ibaraki, Osaka Shinkoriyama 2-33
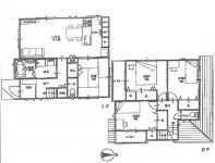
2014January 25,500,000 yen ~ 28.5 million yen, 4LDK, 94.4 sq m ~ 105.99 sq m | Ibaraki, Osaka Ayukawa 4-27
31,800,000 yen, 4LDK, 96.39 sq m ~ 107.59 sq m | |
Ibaraki, Osaka Sawaragihama 3
30,900,000 yen, 3LDK + S (storeroom), 98.07 sq m | ||
Ibaraki, Osaka Tobushi cho
22,430,000 yen, 98.9 sq m | ||
Ibaraki, Osaka Taisho-cho, 416-6
2013 29,800,000 yen ~ 31,300,000 yen, 3LDK ~ 4LDK, 83.43 sq m ~ 98.01 sq m | Ibaraki, Osaka Sawaraginishi 2-11-13
75.1 sq m ~ 103.39 sq m | |
Ibaraki, Osaka Higashifukui 3-21-6
12.8 million yen, 253.81 sq m | ||