New Homes » Kansai » Osaka prefecture » Ikeda
 
| | Osaka Prefecture Ikeda 大阪府池田市 |
| Hankyu Takarazuka Line "Ishibashi" walk 17 minutes 阪急宝塚線「石橋」歩17分 |
| □ ■ It was price update! ! The location of the 17-minute walk from Ishibashi Station! The second floor is the spacious 18 Pledge LDK and the two sides Balcony Yes! Elementary school is a 3-minute walk! ■ □ □■価格更新しました!!石橋駅まで徒歩17分の立地!2階に広々18帖LDKと2面バルコニー有です!小学校徒歩3分です!■□ |
| ▲▲ Since the consultation and hope I will do my best as much as possible, But please tell me! ▲▲ ▲▲ ご相談やご希望は可能な限り頑張りますので、教えてくださいね! ▲▲ |
Features pickup 特徴ピックアップ | | Corresponding to the flat-35S / Immediate Available / LDK18 tatami mats or more / System kitchen / Bathroom Dryer / Yang per good / All room storage / Flat to the station / Japanese-style room / Starting station / Washbasin with shower / Face-to-face kitchen / Toilet 2 places / Bathroom 1 tsubo or more / 2 or more sides balcony / Double-glazing / Zenshitsuminami direction / Warm water washing toilet seat / Underfloor Storage / The window in the bathroom / TV monitor interphone / Mu front building / Good view / All room 6 tatami mats or more / Water filter / Three-story or more / City gas / Flat terrain フラット35Sに対応 /即入居可 /LDK18畳以上 /システムキッチン /浴室乾燥機 /陽当り良好 /全居室収納 /駅まで平坦 /和室 /始発駅 /シャワー付洗面台 /対面式キッチン /トイレ2ヶ所 /浴室1坪以上 /2面以上バルコニー /複層ガラス /全室南向き /温水洗浄便座 /床下収納 /浴室に窓 /TVモニタ付インターホン /前面棟無 /眺望良好 /全居室6畳以上 /浄水器 /3階建以上 /都市ガス /平坦地 | Price 価格 | | 24,900,000 yen 2490万円 | Floor plan 間取り | | 4LDK 4LDK | Units sold 販売戸数 | | 1 units 1戸 | Total units 総戸数 | | 1 units 1戸 | Land area 土地面積 | | 74.38 sq m (22.49 tsubo) (Registration) 74.38m2(22.49坪)(登記) | Building area 建物面積 | | 117.63 sq m (35.58 square meters) 117.63m2(35.58坪) | Driveway burden-road 私道負担・道路 | | Nothing, Southwest 6m width 無、南西6m幅 | Completion date 完成時期(築年月) | | September 2013 2013年9月 | Address 住所 | | Osaka Prefecture Ikeda Toyoshimakita 1 大阪府池田市豊島北1 | Traffic 交通 | | Hankyu Takarazuka Line "Ishibashi" walk 17 minutes JR Fukuchiyama Line "Kita-Itami" walk 21 minutes Osaka Monorail Main Line "Osaka Airport" walk 27 minutes 阪急宝塚線「石橋」歩17分 JR福知山線「北伊丹」歩21分 大阪モノレール本線「大阪空港」歩27分
| Related links 関連リンク | | [Related Sites of this company] 【この会社の関連サイト】 | Person in charge 担当者より | | [Regarding this property.] Second floor of the living room is 18 Pledge, From the third floor view and good per yang. High roof car possible! 【この物件について】2階のリビングは18帖、3階からの眺望や陽当たり良好です。ハイルーフ車可能! | Contact お問い合せ先 | | TEL: 0800-603-8261 [Toll free] mobile phone ・ Also available from PHS Caller ID is not notified Please contact the "saw SUUMO (Sumo)" If it does not lead, If the real estate company TEL:0800-603-8261【通話料無料】携帯電話・PHSからもご利用いただけます 発信者番号は通知されません 「SUUMO(スーモ)を見た」と問い合わせください つながらない方、不動産会社の方は
| Building coverage, floor area ratio 建ぺい率・容積率 | | 60% ・ 200% 60%・200% | Time residents 入居時期 | | Immediate available 即入居可 | Land of the right form 土地の権利形態 | | Ownership 所有権 | Structure and method of construction 構造・工法 | | Wooden three-story 木造3階建 | Use district 用途地域 | | Two dwellings 2種住居 | Overview and notices その他概要・特記事項 | | Facilities: Public Water Supply, This sewage, City gas, Building confirmation number: Trust 13-0788, Parking: Garage 設備:公営水道、本下水、都市ガス、建築確認番号:トラスト13-0788、駐車場:車庫 | Company profile 会社概要 | | <Mediation> governor of Osaka (2) No. 053530 (Co.) plus one realistic Estate Yubinbango562-0012 Osaka Prefecture Mino Hakushima 1-2-12 <仲介>大阪府知事(2)第053530号(株)プラスワンリアルエステート〒562-0012 大阪府箕面市白島1-2-12 |
Parking lot駐車場  High roof car stop right loose ~ .
ハイルーフ車がゆったり停まりますよ ~ 。
Local appearance photo現地外観写真  Probably there is no feeling of pressure in front of the road in the refreshing color! ?
すっきりした色調で前の道の圧迫感は無いでしょ!?
View photos from the dwelling unit住戸からの眺望写真  Boast of view, Sorry to cloudy ・ ・ ・
自慢の眺望、曇ってて残念・・・
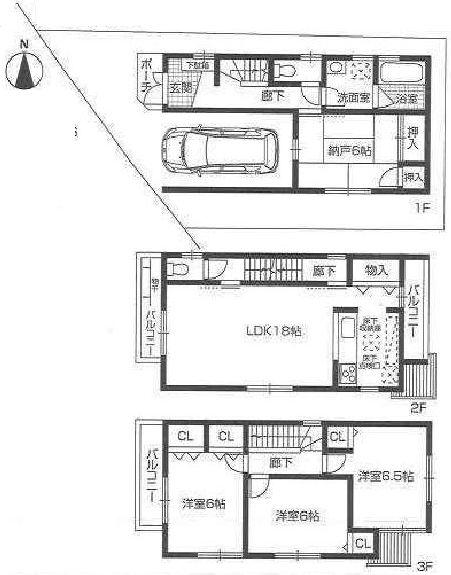
Floor plan間取り図  24,900,000 yen, 4LDK, Land area 74.38 sq m , Building area 117.63 sq m south-facing window is bright there everywhere. In the living room in the stairs, It is your family is easy to match your face ~
2490万円、4LDK、土地面積74.38m2、建物面積117.63m2 南向きの窓が随所にあり明るいですよ。 リビング内階段で、ご家族がお顔を合わせやすいですね ~
Local appearance photo現地外観写真  Counter Kitchen! The dining side there are two places of niche shelf!
カウンターキッチン! ダイニング側には2か所のニッチ棚があります!
Livingリビング  Look at the kitchen direction from the end when the 18 Pledge breadth of the living room, you can feel.
リビングの端からキッチン方向を眺めますと18帖の広さが実感できますよ。
Bathroom浴室  Widely lower bathroom will heal the tired.
広くて低い浴室は疲れを癒せます。
Kitchenキッチン  It artificial marble of the top plate has tightened the kitchen!
人造大理石の天板がキッチンを引き締めていますね!
Non-living roomリビング以外の居室  Soft light and scent of the rushes of Shoji over has the effect of calming the mind!
障子越しの柔らかい光とイ草の香りは気持ちを落ち着かせる効果があります!
Entrance玄関  Shoebox is standard equipment.
下駄箱は標準装備。
Wash basin, toilet洗面台・洗面所  Washbasin with shower is it'll also directed to a variety of applications!
シャワー付き洗面台は多彩な用途に向いていますよね!
Receipt収納  Storage is good in the happy large storage!
収納上手には嬉しい大型収納です!
Toiletトイレ  It is a toilet that white is the cleanliness of the keynote.
白が基調の清潔感のあるトイレですね。
Supermarketスーパー  1217m to work for food Museum Ikeda shop
業務用食品館池田店まで1217m
Convenience storeコンビニ  FamilyMart Ikeda Sumiyoshi 837m up to one-chome
ファミリーマート池田住吉一丁目店まで837m
Junior high school中学校  862m until Ikeda City North Toshima Junior High School
池田市立北豊島中学校まで862m
Primary school小学校  470m until Ikeda City North Toshima Elementary School
池田市立北豊島小学校まで470m
Hospital病院  1349m until the medical corporation Mac seal Tatsumi hospital
医療法人マックシール巽病院まで1349m
Park公園  1230m to Toshima field park
豊島野公園まで1230m
Location
|