2014February
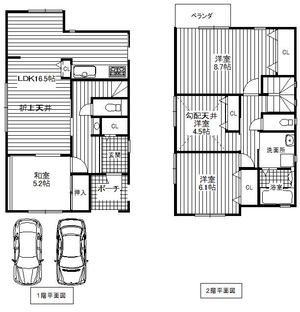
39,800,000 yen, 4LDK, 102.9 sq m
New Homes » Kansai » Osaka prefecture » Ikeda
 
| | Osaka Prefecture Ikeda 大阪府池田市 |
| Hankyu Takarazuka Line "Ishibashi" walk 4 minutes 阪急宝塚線「石橋」歩4分 |
| Hankyu Ishibashi Station near Property. It is possible two garage with double-sided road. 2 × is 4 construction building. 阪急石橋駅近物件です。両面道路で車庫2台可能です。建物を2×4工法です。 |
| In a 4-minute walk from Hankyu Takarazuka Line Ishibashi Station, Life is convenient. 阪急宝塚線石橋駅から徒歩4分で、生活至便です。 |
Features pickup 特徴ピックアップ | | Parking two Allowed / 2 along the line more accessible / System kitchen / Bathroom Dryer / Yang per good / All room storage / Flat to the station / LDK15 tatami mats or more / Japanese-style room / Washbasin with shower / Toilet 2 places / 2-story / Warm water washing toilet seat / TV monitor interphone / City gas 駐車2台可 /2沿線以上利用可 /システムキッチン /浴室乾燥機 /陽当り良好 /全居室収納 /駅まで平坦 /LDK15畳以上 /和室 /シャワー付洗面台 /トイレ2ヶ所 /2階建 /温水洗浄便座 /TVモニタ付インターホン /都市ガス | Price 価格 | | 39,800,000 yen 3980万円 | Floor plan 間取り | | 4LDK 4LDK | Units sold 販売戸数 | | 1 units 1戸 | Land area 土地面積 | | 112.79 sq m 112.79m2 | Building area 建物面積 | | 102.9 sq m 102.9m2 | Driveway burden-road 私道負担・道路 | | Nothing, East 4m width (contact the road width 7m), West 4m width (contact the road width 7.1m) 無、東4m幅(接道幅7m)、西4m幅(接道幅7.1m) | Completion date 完成時期(築年月) | | February 2014 2014年2月 | Address 住所 | | Osaka Prefecture Ikeda Ishibashi 3 大阪府池田市石橋3 | Traffic 交通 | | Hankyu Takarazuka Line "Ishibashi" walk 4 minutes Hankyū Minoo Line "Ishibashi" walk 4 minutes 阪急宝塚線「石橋」歩4分 阪急箕面線「石橋」歩4分
| Contact お問い合せ先 | | Trust housing (Ltd.) TEL: 0800-603-7764 [Toll free] mobile phone ・ Also available from PHS Caller ID is not notified Please contact the "saw SUUMO (Sumo)" If it does not lead, If the real estate company トラストハウジング(株)TEL:0800-603-7764【通話料無料】携帯電話・PHSからもご利用いただけます 発信者番号は通知されません 「SUUMO(スーモ)を見た」と問い合わせください つながらない方、不動産会社の方は
| Building coverage, floor area ratio 建ぺい率・容積率 | | 60% ・ 160% 60%・160% | Time residents 入居時期 | | Consultation 相談 | Land of the right form 土地の権利形態 | | Ownership 所有権 | Structure and method of construction 構造・工法 | | Wooden 2-story (2 × 4 construction method) 木造2階建(2×4工法) | Use district 用途地域 | | One dwelling 1種住居 | Other limitations その他制限事項 | | Northern Osaka city planning national highway 176 No. roadside district District plan 北部大阪都市計画国道176号沿道地区 地区計画 | Overview and notices その他概要・特記事項 | | Facilities: Public Water Supply, This sewage, City gas, Building confirmation number: No. KKK01304092, Parking: Garage 設備:公営水道、本下水、都市ガス、建築確認番号:第KKK01304092号、駐車場:車庫 | Company profile 会社概要 | | <Mediation> governor of Osaka (3) No. 049122 Trust housing (Ltd.) Yubinbango563-0032 Osaka Ikeda Ishibashi 2-14-1 <仲介>大阪府知事(3)第049122号トラストハウジング(株)〒563-0032 大阪府池田市石橋2-14-1 |
Floor plan間取り図  39,800,000 yen, 4LDK, Land area 112.79 sq m , Building area 102.9 sq m
3980万円、4LDK、土地面積112.79m2、建物面積102.9m2
Rendering (appearance)完成予想図(外観)  Local (11 May 2013) Shooting
現地(2013年11月)撮影
 Local photos, including front road
前面道路含む現地写真
Supermarketスーパー  Until the food hall APRO Ishibashi shop 271m
食品館アプロ石橋店まで271m
Location
|