New Homes » Kansai » Osaka prefecture » Kadoma
 
| | Osaka Prefecture Kadoma 大阪府門真市 |
| Keihan "Furukawa Bridge" walk 12 minutes 京阪本線「古川橋」歩12分 |
| 2 along the line more accessible, Super close, It is close to the city, Yang per good, Flat to the station, A quiet residential area, Around traffic fewer, City gas, Flat terrain, Building plan example there 2沿線以上利用可、スーパーが近い、市街地が近い、陽当り良好、駅まで平坦、閑静な住宅地、周辺交通量少なめ、都市ガス、平坦地、建物プラン例有り |
| 16 Pledge living in ○ free design ○ super near ○ counter kitchen ○自由設計○スーパー近く○カウンターキッチンでリビング16帖 |
Features pickup 特徴ピックアップ | | 2 along the line more accessible / Super close / It is close to the city / Yang per good / Flat to the station / A quiet residential area / Around traffic fewer / City gas / Flat terrain / Building plan example there 2沿線以上利用可 /スーパーが近い /市街地が近い /陽当り良好 /駅まで平坦 /閑静な住宅地 /周辺交通量少なめ /都市ガス /平坦地 /建物プラン例有り | Price 価格 | | 8.8 million yen 880万円 | Building coverage, floor area ratio 建ぺい率・容積率 | | 60% ・ 200% 60%・200% | Sales compartment 販売区画数 | | 1 compartment 1区画 | Total number of compartments 総区画数 | | 1 compartment 1区画 | Land area 土地面積 | | 63.19 sq m (registration) 63.19m2(登記) | Driveway burden-road 私道負担・道路 | | 7.67 sq m , East 4m width (contact the road width 6.5m) 7.67m2、東4m幅(接道幅6.5m) | Land situation 土地状況 | | Vacant lot 更地 | Address 住所 | | Osaka Prefecture Kadoma Ishihara-cho 大阪府門真市石原町 | Traffic 交通 | | Keihan "Furukawa Bridge" walk 12 minutes Keihan "Kadoma" walk 18 minutes Keihan "Owada" walk 19 minutes 京阪本線「古川橋」歩12分 京阪本線「門真市」歩18分 京阪本線「大和田」歩19分
| Related links 関連リンク | | [Related Sites of this company] 【この会社の関連サイト】 | Person in charge 担当者より | | The person in charge Takahashi Ryuya Age: 20 Daigyokai experience: there is also the second year in my own motto, Let's look for a happy My home, such as can be the one day laugh together! 担当者高橋 竜矢年齢:20代業界経験:2年私自身の座右の銘でもある、一日一笑を出来るような幸せなマイホームを一緒に探しましょう! | Contact お問い合せ先 | | TEL: 0800-805-4071 [Toll free] mobile phone ・ Also available from PHS Caller ID is not notified Please contact the "saw SUUMO (Sumo)" If it does not lead, If the real estate company TEL:0800-805-4071【通話料無料】携帯電話・PHSからもご利用いただけます 発信者番号は通知されません 「SUUMO(スーモ)を見た」と問い合わせください つながらない方、不動産会社の方は
| Land of the right form 土地の権利形態 | | Ownership 所有権 | Building condition 建築条件 | | With 付 | Time delivery 引き渡し時期 | | Consultation 相談 | Land category 地目 | | Residential land 宅地 | Use district 用途地域 | | Two mid-high 2種中高 | Other limitations その他制限事項 | | Setback: upon 7.67 sq m セットバック:要7.67m2 | Overview and notices その他概要・特記事項 | | Contact: Takahashi Ryuya , Facilities: Public Water Supply, This sewage, City gas 担当者:高橋 竜矢 、設備:公営水道、本下水、都市ガス | Company profile 会社概要 | | <Mediation> governor of Osaka Prefecture (1) No. 056319 (Ltd.) rack housing Kadoma shop Yubinbango571-0065 Osaka Kadoma KAKIUCHI cho 3-17 <仲介>大阪府知事(1)第056319号(株)ラックハウジング門真店〒571-0065 大阪府門真市垣内町3-17 |
Local photos, including front road前面道路含む現地写真  Local (10 May 2013) Shooting
現地(2013年10月)撮影
Building plan example (Perth ・ appearance)建物プラン例(パース・外観)  Building plan example building price 15 million yen, Building area 98.14 sq m
建物プラン例建物価格1500万円、建物面積98.14m2
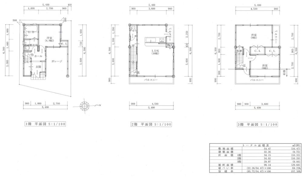
Building plan example (floor plan)建物プラン例(間取り図)  Building plan example building price 15 million yen, Building area 98.14 sq m
建物プラン例建物価格1500万円、建物面積98.14m2
Building plan example (Perth ・ Introspection)建物プラン例(パース・内観)  Building plan example building price 15 million yen, Building area 98.14 sq m
建物プラン例建物価格1500万円、建物面積98.14m2
Location
|