New Homes » Kansai » Osaka prefecture » Kaizuka
 
| | Osaka Prefecture Kaizuka 大阪府貝塚市 |
| Nankai Main Line "Takojizo" walk 7 minutes 南海本線「蛸地蔵」歩7分 |
| Conveniently located adjacent Co-op with a total 138 compartment. Realize the storage rich and spacious living room space. A 7-minute walk in a flat road from the train station ~ 10 minutes, High-speed entrance nearly effortlessly move 総138区画でコープ隣接の便利な立地。収納豊富で広々した居室空間を実現。駅からは平坦な道で徒歩7分 ~ 10分、高速出入口も近く楽々移動 |
| ■ Closeness of the anxious if there are small children elementary school. on the other hand, Closeness of the person who piled up age anxious shopping facilities and hospitals, Such as that easy to walk without a hill in the vicinity. Also easy living person of any age if here. ■ 5.9m ・ Spacious streets of the open outside the structure that lined facing the road of 6.9m Ya, You can check your real thing, such as wide relaxation space and a variety of storage plan. Please come feel free to to the local (or click on the upper right corner of the document request! ) ■小さな子供がいれば気になるのが小学校の近さ。一方、年齢を重ねた方が気になるのは買い物施設や病院の近さ、周辺に坂がなく歩きやすいことなど。ここならどんな年代の方も暮らしやすい。■5.9m・6.9mのゆったりとした道路に面して建ち並ぶオープン外構の街並みや、広いくつろぎ空間や多彩な収納のプランなど実物をお確かめいただけます。お気軽に現地へお越し下さい(もしくは右上の資料請求をクリック!) |
Local guide map 現地案内図 | | Local guide map 現地案内図 | Features pickup 特徴ピックアップ | | Corresponding to the flat-35S / Solar power system / Pre-ground survey / Parking two Allowed / Immediate Available / LDK20 tatami mats or more / Super close / System kitchen / Bathroom Dryer / Yang per good / All room storage / Flat to the station / Or more before road 6m / Japanese-style room / Mist sauna / Washbasin with shower / Face-to-face kitchen / 3 face lighting / Barrier-free / Toilet 2 places / Bathroom 1 tsubo or more / 2-story / 2 or more sides balcony / Southeast direction / South balcony / Double-glazing / Warm water washing toilet seat / Underfloor Storage / The window in the bathroom / TV monitor interphone / Ventilation good / Dish washing dryer / Walk-in closet / All room 6 tatami mats or more / Water filter / City gas / All rooms are two-sided lighting / A large gap between the neighboring house / Flat terrain / Floor heating / Development subdivision in / Movable partition フラット35Sに対応 /太陽光発電システム /地盤調査済 /駐車2台可 /即入居可 /LDK20畳以上 /スーパーが近い /システムキッチン /浴室乾燥機 /陽当り良好 /全居室収納 /駅まで平坦 /前道6m以上 /和室 /ミストサウナ /シャワー付洗面台 /対面式キッチン /3面採光 /バリアフリー /トイレ2ヶ所 /浴室1坪以上 /2階建 /2面以上バルコニー /東南向き /南面バルコニー /複層ガラス /温水洗浄便座 /床下収納 /浴室に窓 /TVモニタ付インターホン /通風良好 /食器洗乾燥機 /ウォークインクロゼット /全居室6畳以上 /浄水器 /都市ガス /全室2面採光 /隣家との間隔が大きい /平坦地 /床暖房 /開発分譲地内 /可動間仕切り | Event information イベント情報 | | Local tours (Please be sure to ask in advance) schedule / During the public time / 9:00 ~ 20:00 model house published in the Co-op adjacent / Three of the Town in the park 現地見学会(事前に必ずお問い合わせください)日程/公開中時間/9:00 ~ 20:00モデルハウス公開中コープ隣接/3つのタウン内公園 | Property name 物件名 | | Kansai Home Town Kaizuka ・ Kishiwada 138 関西ホームタウン 貝塚・岸和田138 | Price 価格 | | 25,800,000 yen ~ 37,420,000 yen outside the structure construction costs ・ Consumption tax 2580万円 ~ 3742万円外構工事費・消費税込 | Floor plan 間取り | | 3LDK + S (storeroom) ~ 5LDK 3LDK+S(納戸) ~ 5LDK | Units sold 販売戸数 | | 3 units 3戸 | Total units 総戸数 | | 138 units 138戸 | Land area 土地面積 | | 144.16 sq m ~ 149.54 sq m (43.60 tsubo ~ 45.23 tsubo) (measured) 144.16m2 ~ 149.54m2(43.60坪 ~ 45.23坪)(実測) | Building area 建物面積 | | 109.3 sq m ~ 123.38 sq m (33.06 tsubo ~ 37.32 tsubo) (measured) 109.3m2 ~ 123.38m2(33.06坪 ~ 37.32坪)(実測) | Driveway burden-road 私道負担・道路 | | Road: 6.9m width asphalt paving, Driveway burden: No 道路:6.9m幅アスファルト舗装、私道負担:無 | Completion date 完成時期(築年月) | | 2013 late October 2013年10月下旬 | Address 住所 | | Osaka Prefecture Kaizuka Tsudakita-cho, 17-151 大阪府貝塚市津田北町17-151他(地番) | Traffic 交通 | | Nankai Main Line "Takojizo" walk 7 minutes Nankai Main Line "midden" walk 17 minutes Nankai Main Line "Kishiwada" walk 20 minutes 南海本線「蛸地蔵」歩7分 南海本線「貝塚」歩17分 南海本線「岸和田」歩20分
| Related links 関連リンク | | [Related Sites of this company] 【この会社の関連サイト】 | Contact お問い合せ先 | | TEL: 0800-603-2913 [Toll free] mobile phone ・ Also available from PHS Caller ID is not notified Please contact the "saw SUUMO (Sumo)" If it does not lead, If the real estate company TEL:0800-603-2913【通話料無料】携帯電話・PHSからもご利用いただけます 発信者番号は通知されません 「SUUMO(スーモ)を見た」と問い合わせください つながらない方、不動産会社の方は
| Sale schedule 販売スケジュール | | Reception location / Local sales center ※ Reception time / 10 am ~ 8 pm ※ Please have a seal is at the time of application. ※ Per first-come-first-served basis during the sale, There are cases where the sales number of units such as occur fluctuation. 受付場所/現地販売センター※受付時間/午前10時 ~ 午後8時 ※申込みの際には印鑑をお持ちください。 ※先着順分譲中につき、販売戸数等に変動の生じる場合があります。 | Expenses 諸費用 | | Other expenses: Kaizuka Tsudakita-cho town council annual membership fee: 6000 yen / Year (admission fee required) その他諸費用:貝塚市津田北町町会年会費:6000円/年(入会金不要) | Building coverage, floor area ratio 建ぺい率・容積率 | | Building coverage: 60%, Volume ratio: 200% 建ぺい率:60%、容積率:200% | Time residents 入居時期 | | Immediate available 即入居可 | Land of the right form 土地の権利形態 | | Ownership 所有権 | Structure and method of construction 構造・工法 | | Wooden 2-story 木造2階建 | Construction 施工 | | Kansai Home Co., Ltd. 関西ホーム株式会社 | Use district 用途地域 | | Industry 工業 | Land category 地目 | | Residential land, ※ Accordance with the provisions of the building agreement, Zoning is equivalent to first-class residential area 宅地、※建築協定の定めにより、用途地域は第一種住居地域に準ずる | Other limitations その他制限事項 | | Building Agreement Yes 建築協定有 | Overview and notices その他概要・特記事項 | | Building confirmation number: No. H25 confirmation building near Ken No. 0,001,151, Car space (two all households minute), Kansai Electric Power Co., Inc., Public Water Supply, This sewage, City gas 建築確認番号:第H25確認建築近建0001151号、カースペース(全戸2台分)、関西電力、公営水道、本下水、都市ガス | Company profile 会社概要 | | <Employer ・ Seller> governor of Osaka (4) The 045,528 No. Kansai Home Co., Ltd. Yubinbango598-0005 Izumisano, Osaka Prefecture Shijohigashi 2-1013-2 Kansai home building <事業主・売主>大阪府知事(4)第045528号関西ホーム(株)〒598-0005 大阪府泉佐野市市場東2-1013-2関西ホームビル |
Livingリビング  18 Pledge spacious LDK Please come by all means be seen in the local
18帖の広々LDKぜひ現地にも見にきてください
NEW model house complete! ! A check in the eco-house by all means local ENE-FARM × solar power installed!NEWモデルハウス完成!!エネファーム×太陽光発電搭載のエコ住宅是非現地でご確認を!  NEW model house complete! !
NEWモデルハウス完成!!
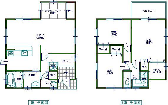
Floor plan間取り図  (G-15 No. land), Price 37,420,000 yen, 5LDK, Land area 149.45 sq m , Building area 122.55 sq m
(G-15号地)、価格3742万円、5LDK、土地面積149.45m2、建物面積122.55m2
Livingリビング  Guests can comfortably spacious all living dining family fashionable!
おしゃれで広々リビングダイニング家族全員ゆったり過ごせますよ!
Bathroom浴室  The bathrooms are spacious and 1 tsubo. Pat ventilation because it also comes with large windows!
浴室は1坪と広々。大きな窓もついているので換気もバッチリ!
Entrance玄関  Breadth shoes cloakroom and entrance with a shoe box with a space!
シューズクロークと下駄箱付の玄関はゆとりのある広さ!
Kitchenキッチン  Easy-to-use kitchen is face-to-face. You can make the dishes while taking communication.
使い勝手の良いキッチンは対面式。コミュニケーションを取りながらお料理を作れます。
Livingリビング  LDK 18 Pledge! The room is also good as bright and the wind because there is a three-sided window!
LDKは18帖!3面窓があるので部屋は明るく風の通りもいいですよ!
 Local guide map
現地案内図
Primary school小学校  630m to Kaizuka City Tsuda Elementary School
貝塚市立津田小学校まで630m
Park公園  There is also a ball game open space and tennis courts in the large site of 500m 8.62ha to beach industrial park
浜工業公園まで500m 8.62haの広い敷地内には球技広場やテニスコートもある
Other Environmental Photoその他環境写真  Nankai Main Line "Takojizo" 560m to the station
南海本線「蛸地蔵」駅まで560m
Route map路線図  In addition to the proximity to the station, Transfer to express in a nice 25-minute (Kishiwada Station to Namba from Takojizō Station. Access of the express will of some vehicle fee required). Also recommend to go by bicycle because the flat terrain to Kishiwada Station of the express stop (traffic access view)
駅までの近さに加え、うれしいのが蛸地蔵駅から難波へ25分(岸和田駅で特急に乗り換え。特急の一部車両は有料)のアクセス。フラットな地形だから特急停車の岸和田駅まで自転車で行くのもおススメ(交通アクセス図)
Floor plan間取り図  (H-15 No. land), Price 25,800,000 yen, 3LDK+S, Land area 149.54 sq m , Building area 109.3 sq m
(H-15号地)、価格2580万円、3LDK+S、土地面積149.54m2、建物面積109.3m2
Shopping centreショッピングセンター  Kishiwada until Kankan Bayside Mall 1800m Izumiya and Outlet Mall, There is a cinema complex
岸和田カンカンベイサイドモールまで1800m イズミヤやアウトレットモール、シネコンがある
Hospital病院  There is a hospital within walking 820m to Terada YorozuHisashi hospital is encouraging (11 minutes walk)
寺田萬寿病院まで820m 歩いて行ける病院があるのは心強い(徒歩11分)
Other Environmental Photoその他環境写真  Your walk leisurely while watching the swan resting its wings in the 1000m moat to Kishiwada Castle
岸和田城まで1000m お堀で羽を休める白鳥を見ながらのんびりお散歩を
Otherその他  And the bathroom has also attached mist Kawakku in addition to the bathroom dryer, Anytime house Este you can enjoy
浴室には浴室乾燥機の他にミストカワックもついていて、いつでもお家エステが楽しめます
Floor plan間取り図  (B-10 No. land), Price 27.5 million yen, 5LDK, Land area 144.16 sq m , Building area 123.38 sq m
(B-10号地)、価格2750万円、5LDK、土地面積144.16m2、建物面積123.38m2
Other Equipmentその他設備  Housework efficiency Gun and UP in the easy-to-use system kitchen dishwasher is standard equipment
使い勝手の良いシステムキッチンは食洗機が標準装備で家事効率もグンとUP
 Rear storage behind the kitchen. Will also come in handy as a space, such as Ready-To-Eat not only housing that put away the dishes.
キッチンの後ろの背面収納。食器をしまう収納だけでなく盛り付けなどのスペースとしても重宝します。
 The something hide in the storage space under the convenient staircase devised to storage and cleaning tool.
掃除道具などの収納になにかと便利な階段下の収納スペースで隠す工夫を。
You will receive this brochureこんなパンフレットが届きます  This brochure will receive! JOIN NOW document request!
こちらのパンフレットが届きます!今すぐ資料請求しよう!
Other Equipmentその他設備  Toilet with convenient storage to put away the stock of cleaning tools and equipment. Also Katazuki refreshing narrow space.
トイレは掃除道具や備品のストックをしまうのに便利な収納付き。狭いスペースもスッキリ片付きます。
 Since the dark tend washroom is also equipped with a window, Since the bright ventilation can also be hygienic.
暗くなりがちな洗面所も窓が付いているので、明るく換気も出来るので衛生的。
 There is alcove and a Buddhist altar room with a door in addition to the closet in the Japanese-style room, Full specifications.
和室には押入の他に扉付きの仏間と床の間があり、本格仕様。
The entire compartment Figure全体区画図  I was born across the Kaizuka and Kishiwada "Kansai Home Town Midden ・ Kishiwada 138 "the entire compartment view. Several of the local that has been constructed in the city-ku, there are many corner lot (the entire section view)
貝塚市と岸和田市にまたがって誕生した「関西ホームタウン 貝塚・岸和田138」全体区画図。いくつもの街区で構成された現地には角地も多数あり(全体区画図)
Junior high school中学校  City second junior high school <Kaizuka> up to 2500m
市立第二中学校<貝塚市>まで2500m
Primary school小学校  Municipal castle 1000m up to elementary school <Kishiwada>
市立城内小学校<岸和田市>まで1000m
Junior high school中学校  Municipal Kishiki Junior High School <Kishiwada> up to 1900m
市立岸城中学校<岸和田市>まで1900m
Location
|