New Homes » Kansai » Osaka prefecture » Songyuan
 
| | Osaka Prefecture Matsubara 大阪府松原市 |
| Kintetsu Minami-Osaka Line "Amami Kawachi" walk 8 minutes 近鉄南大阪線「河内天美」歩8分 |
Features pickup 特徴ピックアップ | | Measures to conserve energy / Airtight high insulated houses / Parking two Allowed / 2 along the line more accessible / System kitchen / Flat to the station / LDK15 tatami mats or more / Japanese-style room / Face-to-face kitchen / Toilet 2 places / Bathroom 1 tsubo or more / 2-story / Double-glazing / All living room flooring / Dish washing dryer 省エネルギー対策 /高気密高断熱住宅 /駐車2台可 /2沿線以上利用可 /システムキッチン /駅まで平坦 /LDK15畳以上 /和室 /対面式キッチン /トイレ2ヶ所 /浴室1坪以上 /2階建 /複層ガラス /全居室フローリング /食器洗乾燥機 | Price 価格 | | 31,100,000 yen 3110万円 | Floor plan 間取り | | 4LDK 4LDK | Units sold 販売戸数 | | 1 units 1戸 | Total units 総戸数 | | 1 units 1戸 | Land area 土地面積 | | 100.21 sq m (30.31 tsubo) (Registration) 100.21m2(30.31坪)(登記) | Building area 建物面積 | | 97.71 sq m (29.55 tsubo) (Registration) 97.71m2(29.55坪)(登記) | Driveway burden-road 私道負担・道路 | | Nothing, East 4m width 無、東4m幅 | Completion date 完成時期(築年月) | | September 2012 2012年9月 | Address 住所 | | Osaka Prefecture Matsubara Amaminishi 1 大阪府松原市天美西1 | Traffic 交通 | | Kintetsu Minami-Osaka Line "Amami Kawachi" walk 8 minutes Subway Midosuji Line "Kitahanada" walk 22 minutes Kintetsu Minami-Osaka Line "Nunose" walk 20 minutes 近鉄南大阪線「河内天美」歩8分 地下鉄御堂筋線「北花田」歩22分 近鉄南大阪線「布忍」歩20分
| Person in charge 担当者より | | [Regarding this property.] Parking Lot, You can park two cars! 【この物件について】駐車場、車2台駐車できます! | Contact お問い合せ先 | | TEL: 0800-808-5293 [Toll free] mobile phone ・ Also available from PHS Caller ID is not notified Please contact the "saw SUUMO (Sumo)" If it does not lead, If the real estate company TEL:0800-808-5293【通話料無料】携帯電話・PHSからもご利用いただけます 発信者番号は通知されません 「SUUMO(スーモ)を見た」と問い合わせください つながらない方、不動産会社の方は
| Building coverage, floor area ratio 建ぺい率・容積率 | | 60% ・ 200% 60%・200% | Land of the right form 土地の権利形態 | | Ownership 所有権 | Structure and method of construction 構造・工法 | | Wooden 2-story (2 × 4 construction method) 木造2階建(2×4工法) | Use district 用途地域 | | One dwelling 1種住居 | Overview and notices その他概要・特記事項 | | Facilities: Public Water Supply, This sewage, City gas, Parking: Garage 設備:公営水道、本下水、都市ガス、駐車場:車庫 | Company profile 会社概要 | | <Marketing alliance (agency)> Minister of Land, Infrastructure and Transport (1) No. 008193 (Ltd.) Excel Home Matsubara branch Yubinbango580-0016 Osaka Matsubara Ueda 1-4-3 <販売提携(代理)>国土交通大臣(1)第008193号(株)エクセルホーム松原支店〒580-0016 大阪府松原市上田1-4-3 |
Local appearance photo現地外観写真  Frontage is widely very bright Property
間口が広く大変明るい物件です
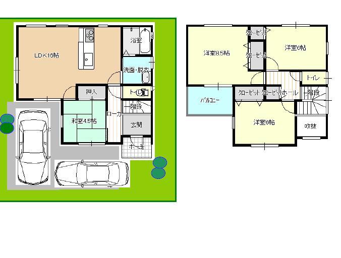
Floor plan間取り図  31,100,000 yen, 4LDK, Land area 100.21 sq m , Building area 97.71 sq m car park Car two is possible
3110万円、4LDK、土地面積100.21m2、建物面積97.71m2 駐車場 お車2台可能です
Kitchenキッチン  Face-to-face kitchen. It also attached dishwasher washing machine
対面キッチン。食器洗い洗浄機もついてますよ
Livingリビング  16 Pledge of LDK, Momentum even talk face-to-face kitchen
16帖のLDK、対面キッチンで会話もはずみます
Bathroom浴室  Spacious unit bus one tsubo type
一坪タイプの広々ユニットバスです
Entrance玄関  It is a blow of toward the stairs from the front door
玄関から階段にかけての吹抜けです
Location
|