New Homes » Kansai » Osaka prefecture » Songyuan
 
| | Osaka Prefecture Matsubara 大阪府松原市 |
| Kintetsu Minami-Osaka Line "Amami Kawachi" walk 9 minutes 近鉄南大阪線「河内天美」歩9分 |
| ◇ ◆ ◇ new condominium start! ! ◇ ◆ ◇ ◆ Peaceful new life to fulfill in a quiet residential area ◆ ◇◆◇新規分譲開始!!◇◆◇◆閑静な住宅地で叶える穏やかな新生活◆ |
Features pickup 特徴ピックアップ | | Super close / Yang per good / City gas スーパーが近い /陽当り良好 /都市ガス | Price 価格 | | 10,150,000 yen 1015万円 | Building coverage, floor area ratio 建ぺい率・容積率 | | 60% ・ 200% 60%・200% | Sales compartment 販売区画数 | | 1 compartment 1区画 | Total number of compartments 総区画数 | | 1 compartment 1区画 | Land area 土地面積 | | 73.02 sq m 73.02m2 | Driveway burden-road 私道負担・道路 | | Nothing, West 4m width 無、西4m幅 | Land situation 土地状況 | | Vacant lot 更地 | Address 住所 | | Osaka Prefecture Matsubara Amamihigashi 9 大阪府松原市天美東9 | Traffic 交通 | | Kintetsu Minami-Osaka Line "Amami Kawachi" walk 9 minutes Kintetsu Minami-Osaka Line "Nunose" walk 24 minutes Kintetsu Minami-Osaka Line "Yada" walk 25 minutes 近鉄南大阪線「河内天美」歩9分 近鉄南大阪線「布忍」歩24分 近鉄南大阪線「矢田」歩25分
| Related links 関連リンク | | [Related Sites of this company] 【この会社の関連サイト】 | Contact お問い合せ先 | | TEL: 0800-603-3326 [Toll free] mobile phone ・ Also available from PHS Caller ID is not notified Please contact the "saw SUUMO (Sumo)" If it does not lead, If the real estate company TEL:0800-603-3326【通話料無料】携帯電話・PHSからもご利用いただけます 発信者番号は通知されません 「SUUMO(スーモ)を見た」と問い合わせください つながらない方、不動産会社の方は
| Land of the right form 土地の権利形態 | | Ownership 所有権 | Building condition 建築条件 | | With 付 | Time delivery 引き渡し時期 | | Consultation 相談 | Land category 地目 | | Residential land 宅地 | Use district 用途地域 | | Two mid-high 2種中高 | Other limitations その他制限事項 | | Quasi-fire zones 準防火地域 | Overview and notices その他概要・特記事項 | | Facilities: Public Water Supply, This sewage, City gas 設備:公営水道、本下水、都市ガス | Company profile 会社概要 | | <Marketing alliance (agency)> Minister of Land, Infrastructure and Transport (2) the first 006,276 No. Marusan Housing Corporation Yubinbango580-0026 Osaka Matsubara Amamigado 7-434 <販売提携(代理)>国土交通大臣(2)第006276号丸三住宅(株)〒580-0026 大阪府松原市天美我堂7-434 |
Construction completion expected view造成完了予想図  Construction completion expected view ☆ Our construction
造成完了予想図☆当社施工
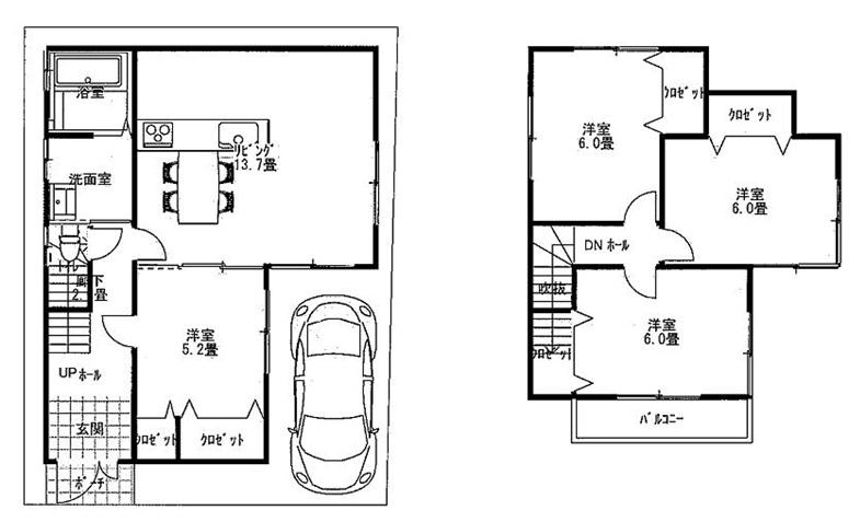
Building plan example (floor plan)建物プラン例(間取り図)  Building plan example
建物プラン例
Model house photoモデルハウス写真  Our model house
当社モデルハウス
Local land photo現地土地写真  Local (11 May 2013) Shooting
現地(2013年11月)撮影
Local photos, including front road前面道路含む現地写真  Local (11 May 2013) Shooting
現地(2013年11月)撮影
Model house photoモデルハウス写真  Our model house
当社モデルハウス
 Our model house
当社モデルハウス
Construction completion expected view造成完了予想図  Construction completion expected view ☆ Our construction
造成完了予想図☆当社施工
Model house photoモデルハウス写真  Our model house
当社モデルハウス
 Our model house
当社モデルハウス
Primary school小学校  539m to Matsubara Municipal Amami Elementary School
松原市立天美小学校まで539m
Junior high school中学校  1587m to Matsubara Municipal Matsubara fifth junior high school
松原市立松原第五中学校まで1587m
Supermarketスーパー  953m until Bandai Amami shop
万代天美店まで953m
 853m to supermarket KINSHO Amami shop
スーパーマーケットKINSHO天美店まで853m
Drug storeドラッグストア  Drugstore until the server Matsubara Amamigado shop 1525m
ドラッグストアサーバ松原天美我堂店まで1525m
Hospital病院  Medical Law virtue Zhuzhou Board Matsubara Tokushu Board 654m to the hospital
医療法人徳洲会松原徳洲会病院まで654m
Location
|