New Homes » Kansai » Osaka prefecture » Songyuan


Osaka Prefecture Matsubara
Kintetsu Minami-Osaka Line "Kawachi Matsubara" walk 15 minutes
Immediate delivery Allowed, Super close, Yang per good, Flat to the station, Corner lot, Shaping land, Maintained sidewalk, Flat terrain, Development subdivision in, Building plan example there
Immediate delivery Allowed, Super close, Yang per good, Flat to the station, Corner lot, Shaping land, Maintained sidewalk, Flat terrain, Development subdivision in, Building plan example there
Features pickup
Immediate delivery Allowed / Super close / Yang per good / Flat to the station / Corner lot / Shaping land / Maintained sidewalk / Flat terrain / Development subdivision in / Building plan example there
Price
12.5 million yen
Building coverage, floor area ratio
60% ・ 200%
Sales compartment
1 compartment
Total number of compartments
5 compartment
Land area
81.63 sq m (registration)
Driveway burden-road
Nothing, East 4.7m width (contact the road width 12.5m), North 4.7m width (contact the road width 4.9m)
Land situation
Vacant lot
Address
Osaka Prefecture Matsubara Shindo 1
Traffic
Kintetsu Minami-Osaka Line "Kawachi Matsubara" walk 15 minutes
Kintetsu Minami-Osaka Line "Takaminosato" walk 12 minutes
Kintetsu Minami-Osaka Line "Nunose" walk 23 minutes
Related links
[Related Sites of this company]
Person in charge
[Regarding this property.] Living facilities is also a good location that is rich in the vicinity! ! Corner lot is this price! !
Contact
J Home Partners (Ltd.) TEL: 0800-805-6549 [Toll free] mobile phone ・ Also available from PHS
Caller ID is not notified
Please contact the "saw SUUMO (Sumo)"
If it does not lead, If the real estate company
Land of the right form
Ownership
Building condition
With
Time delivery
Consultation
Land category
Residential land
Use district
Two mid-high
Overview and notices
Facilities: Public Water Supply, This sewage, All-electric
Company profile
<Mediation> Osaka governor paragraph (1) J Home Partners Ltd. Yubinbango599-8276 Osaka FuSakai City, Naka-ku, the first 056,579 Kosaka 337-2


Local photos, including front road

Local photos, including front road. Local (12 May 2013) Shooting
Local (12 May 2013) Shooting

Local land photo

Local land photo. Local (12 May 2013) Shooting
Local (12 May 2013) Shooting

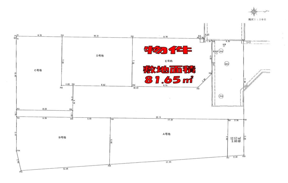
The entire compartment Figure

The entire compartment Figure. Compartment figure
Compartment figure

Compartment figure

Compartment figure. Land price 12.5 million yen, Land area 81.63 sq m
Land price 12.5 million yen, Land area 81.63 sq m

Building plan example (exterior photos)

Building plan example (exterior photos). Our construction cases
Our construction cases

Building plan example (introspection photo)

Building plan example (introspection photo). Our construction cases
Our construction cases

Building plan example (introspection photo). Our construction cases
Our construction cases

Building plan example (introspection photo). Our construction cases
Our construction cases

Building plan example (introspection photo). Our construction cases
Our construction cases

Building plan example (introspection photo). Our construction cases
Our construction cases

Building plan example (introspection photo). Our construction cases
Our construction cases

Building plan example (introspection photo). Our construction cases
Our construction cases

Building plan example (introspection photo). Our construction cases
Our construction cases

Building plan example (introspection photo). Our construction cases
Our construction cases

Building plan example (introspection photo). Our construction cases
Our construction cases

Building plan example (introspection photo). Our construction cases
Our construction cases



Location