|
|
Osaka Prefecture Mino
大阪府箕面市
|
|
Hankyu Takarazuka Line "Ishibashi" walk 12 minutes
阪急宝塚線「石橋」歩12分
|
|
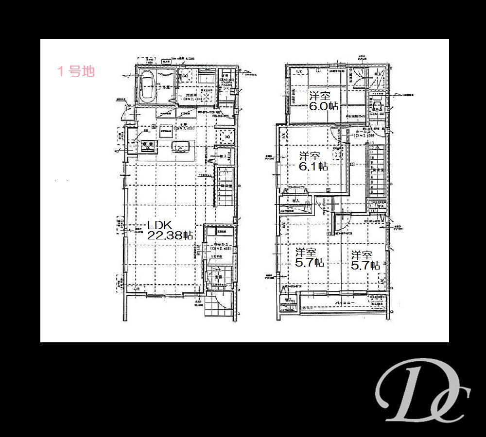
■ Not tenants ■ Misawa Homes of house No. 1 destination ~ Southwest corner lot! ! Ventilation is good per yang ~ Bright LDK is spacious 22 quires more! !
■未入居■ミサワホームの家 1号地 ~ 南西角地!!陽当たり通風良好です ~ 明るいLDKはゆったり22帖以上です!!
|
|
■ Parking two possible! ■ March 2011 completed properties! Standard equipment is also enriched! ~ It is ready-to-move-in ~ My home in the lush environment!
■駐車2台可能!■平成23年3月完成物件!標準設備も充実です! ~ 即入居可能です ~ 緑豊かな環境でマイホームを!
|
Features pickup 特徴ピックアップ | | Parking two Allowed / Immediate Available / LDK20 tatami mats or more / Facing south / System kitchen / Yang per good / Siemens south road / Corner lot / 2-story / Underfloor Storage / TV monitor interphone / Leafy residential area / City gas 駐車2台可 /即入居可 /LDK20畳以上 /南向き /システムキッチン /陽当り良好 /南側道路面す /角地 /2階建 /床下収納 /TVモニタ付インターホン /緑豊かな住宅地 /都市ガス |
Price 価格 | | 52,800,000 yen 5280万円 |
Floor plan 間取り | | 4LDK 4LDK |
Units sold 販売戸数 | | 1 units 1戸 |
Total units 総戸数 | | 2 units 2戸 |
Land area 土地面積 | | 121.31 sq m (registration) 121.31m2(登記) |
Building area 建物面積 | | 102.78 sq m (registration) 102.78m2(登記) |
Driveway burden-road 私道負担・道路 | | Nothing, South 6m width, West 3.8m width 無、南6m幅、西3.8m幅 |
Completion date 完成時期(築年月) | | March 2012 2012年3月 |
Address 住所 | | Osaka Prefecture Mino Segawa 2 大阪府箕面市瀬川2 |
Traffic 交通 | | Hankyu Takarazuka Line "Ishibashi" walk 12 minutes 阪急宝塚線「石橋」歩12分
|
Related links 関連リンク | | [Related Sites of this company] 【この会社の関連サイト】 |
Contact お問い合せ先 | | TEL: 0800-603-9325 [Toll free] mobile phone ・ Also available from PHS Caller ID is not notified Please contact the "saw SUUMO (Sumo)" If it does not lead, If the real estate company TEL:0800-603-9325【通話料無料】携帯電話・PHSからもご利用いただけます 発信者番号は通知されません 「SUUMO(スーモ)を見た」と問い合わせください つながらない方、不動産会社の方は
|
Building coverage, floor area ratio 建ぺい率・容積率 | | 60% ・ 200% 60%・200% |
Time residents 入居時期 | | Immediate available 即入居可 |
Land of the right form 土地の権利形態 | | Ownership 所有権 |
Structure and method of construction 構造・工法 | | Wooden 2-story 木造2階建 |
Use district 用途地域 | | One middle and high 1種中高 |
Overview and notices その他概要・特記事項 | | Facilities: Public Water Supply, This sewage, City gas, Building confirmation number: No. ERI11050097, Parking: car space 設備:公営水道、本下水、都市ガス、建築確認番号:第ERI11050097号、駐車場:カースペース |
Company profile 会社概要 | | <Mediation> governor of Osaka (2) No. 054110 (stock) Yamato Corporation Yubinbango564-0001 Suita, Osaka Prefecture Kishibekita 5-12-15 <仲介>大阪府知事(2)第054110号(株)大和コーポレーション〒564-0001 大阪府吹田市岸部北5-12-15 |