New Homes » Kansai » Osaka prefecture » Mino


Osaka Prefecture Mino
Hankyu Senri Line "Kitasenri" walk 25 minutes
Solar power standard. Limited in a quiet residential 7 buildings sale.
Minoo Market Park Visora ​​within walking distance! Large development site in a quiet residential area, Limited 7 buildings sale! Access to the Osaka city good! LDK spacious specification!
Features pickup
Eco-point target housing / Corresponding to the flat-35S / Solar power system / Pre-ground survey / Year Available / Parking two Allowed / See the mountain / It is close to the city / Facing south / System kitchen / Bathroom Dryer / Yang per good / All room storage / Siemens south road / A quiet residential area / LDK15 tatami mats or more / Around traffic fewer / Corner lot / Japanese-style room / Shaping land / Wide balcony / Bathroom 1 tsubo or more / 2-story / South balcony / Double-glazing / Underfloor Storage / Leafy residential area / Ventilation good / Built garage / Walk-in closet / All room 6 tatami mats or more / Water filter / A large gap between the neighboring house / Maintained sidewalk / Flat terrain / Development subdivision in
Price
33,500,000 yen
Floor plan
4LDK
Units sold
5 units
Total units
7 units
Land area
100.01 sq m ~ 124.4 sq m (30.25 tsubo ~ 37.63 tsubo) (measured)
Building area
94.36 sq m ~ 98.82 sq m (28.54 tsubo ~ 29.89 tsubo) (Registration)
Driveway burden-road
Road width: 4.6m ~ 6.6m, Concrete pavement
Completion date
2013 Late July
Address
Osaka Prefecture Mino Imamiya 3-20 No. 3
Traffic
Hankyu Senri Line "Kitasenri" walk 25 minutes
Osaka Monorail Saito line "Toyokawa" walk 34 minutes
Northern Osaka Express "Senri" walk 39 minutes
Related links
[Related Sites of this company]
Person in charge
Rep wins Akihiro Age: 40 Daigyokai experience: the motto of 20 years "Spartan principle" we are allowed to direct guests. We will respond to empathically request. here you go, Please feel free to contact us.
Contact
TEL: 0800-603-2993 [Toll free] mobile phone ・ Also available from PHS
Caller ID is not notified
Please contact the "saw SUUMO (Sumo)"
If it does not lead, If the real estate company
Building coverage, floor area ratio
Kenpei rate: 60%, Volume ratio: 200%
Time residents
Consultation
Land of the right form
Ownership
Structure and method of construction
Wooden 2-story
Use district
Two mid-high
Land category
Residential land
Overview and notices
Contact: wins Akihiro, Building confirmation number: 12-5403
Company profile
<Mediation> governor of Osaka Prefecture (1) Yamato, Building Products Yubinbango532-0011 Osaka Yodogawa-ku, Osaka No. 056463 ​​Nishinakajima 6-6-5


Local appearance photo

Local appearance photo. Local (April 2013) since before shooting is fields sunny
Local (April 2013) since before shooting is fields sunny

Local appearance photo. Local (April 2013) Shooting Take a look at this day. Also spacious !! before road
Local (April 2013) Shooting Take a look at this day. Also spacious !! before road

Rendering (appearance)

Rendering (appearance). Room (May 2013) Shooting Example of construction
Room (May 2013) Shooting Example of construction

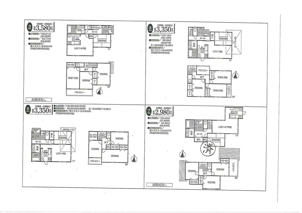
Floor plan

Floor plan. (No. 3 locations), Price 33,500,000 yen, 4LDK, Land area 106.19 sq m , Building area 95.58 sq m
(No. 3 locations), Price 33,500,000 yen, 4LDK, Land area 106.19 sq m , Building area 95.58 sq m

Living

Living. Room (May 2013) Shooting Example of construction
Room (May 2013) Shooting Example of construction

Bathroom

Bathroom. Room (May 2013) Shooting
Room (May 2013) Shooting

Kitchen

Kitchen. Indoor (April 2013) Shooting
Indoor (April 2013) Shooting

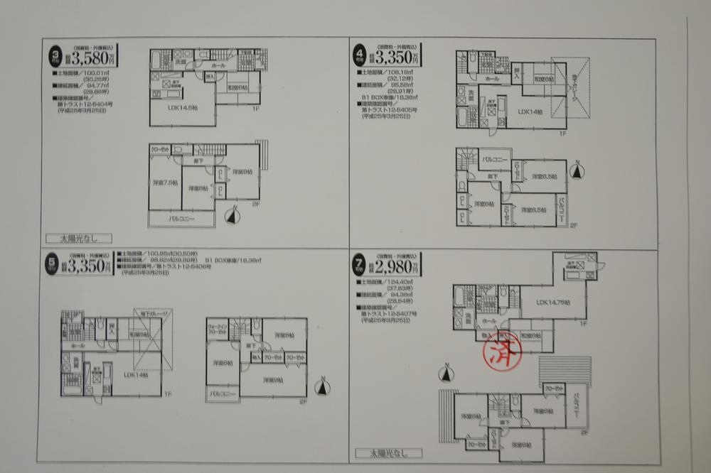
The entire compartment Figure

The entire compartment Figure. The remaining 3 compartment
The remaining 3 compartment

Other

Other. Each floor plan
Each floor plan



Location