New Homes » Kansai » Osaka prefecture » Mino
 
| | Osaka Prefecture Mino 大阪府箕面市 |
| Hankyū Minoo Line "Sakurai" walk 8 minutes 阪急箕面線「桜井」歩8分 |
| Your preview until ace home sales in the community 21 years! Pick you up until your local when there is hope. Please feel free to tell us! Sumo until dedicated dial 0800-603-3015! ご内覧は地域密着21年のエース住宅販売まで!ご希望がございましたらお近くまでお迎えにあがります。お気軽にお申し付けください!スーモ専用ダイヤル0800-603-3015まで! |
Features pickup 特徴ピックアップ | | Solar power system / System kitchen / 2-story 太陽光発電システム /システムキッチン /2階建 | Price 価格 | | 30,800,000 yen ・ 32,800,000 yen 3080万円・3280万円 | Floor plan 間取り | | 4LDK 4LDK | Units sold 販売戸数 | | 2 units 2戸 | Total units 総戸数 | | 2 units 2戸 | Land area 土地面積 | | 100.01 sq m ・ 118.4 sq m 100.01m2・118.4m2 | Building area 建物面積 | | 91.53 sq m ・ 94.77 sq m 91.53m2・94.77m2 | Completion date 完成時期(築年月) | | 2013 Late July 2013年7月下旬 | Address 住所 | | Osaka Prefecture Mino Sakurai 3-7 大阪府箕面市桜井3-7 | Traffic 交通 | | Hankyū Minoo Line "Sakurai" walk 8 minutes 阪急箕面線「桜井」歩8分
| Related links 関連リンク | | [Related Sites of this company] 【この会社の関連サイト】 | Person in charge 担当者より | | Rep Kiyohara Yusuke Age: born 30s Kyoto is Kiyohara (Kiyohara). Purchase of you live, I think that it is a great buy in my life. An important shopping for customers, As you can in the satisfactory, I will my best to help. 担当者清原 裕介年齢:30代京都府出身の清原(きよはら)です。お住まいのご購入は、人生の中で大きな買い物だと思います。お客様にとって大切な買い物を、満足のいくものにしていただけるよう、精一杯お手伝いさせていただきます。 | Contact お問い合せ先 | | TEL: 0800-603-3015 [Toll free] mobile phone ・ Also available from PHS Caller ID is not notified Please contact the "saw SUUMO (Sumo)" If it does not lead, If the real estate company TEL:0800-603-3015【通話料無料】携帯電話・PHSからもご利用いただけます 発信者番号は通知されません 「SUUMO(スーモ)を見た」と問い合わせください つながらない方、不動産会社の方は
| Building coverage, floor area ratio 建ぺい率・容積率 | | Kenpei rate: 60%, Volume ratio: 200% 建ペい率:60%、容積率:200% | Time residents 入居時期 | | Consultation 相談 | Land of the right form 土地の権利形態 | | Ownership 所有権 | Structure and method of construction 構造・工法 | | Wooden 2-story 木造2階建 | Use district 用途地域 | | One middle and high 1種中高 | Land category 地目 | | Residential land 宅地 | Overview and notices その他概要・特記事項 | | Contact: Kiyohara Yusuke, Building confirmation number: No. Trust 13-0108 ~ 0110 担当者:清原 裕介、建築確認番号:第トラスト13-0108 ~ 0110 | Company profile 会社概要 | | <Mediation> governor of Osaka Prefecture (5) No. 042046 ace home sales (Ltd.) Yubinbango563-0032 Osaka Ikeda Ishibashi 1-23-13 <仲介>大阪府知事(5)第042046号エース住宅販売(株)〒563-0032 大阪府池田市石橋1-23-13 |
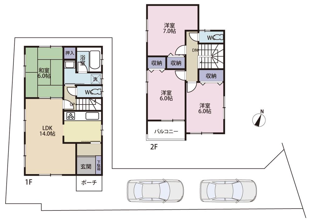
Floor plan間取り図  (No. 1 point), Price 32,800,000 yen, 4LDK, Land area 100.01 sq m , Building area 94.77 sq m
(1号地)、価格3280万円、4LDK、土地面積100.01m2、建物面積94.77m2
 (No. 3 locations), Price 30,800,000 yen, 4LDK, Land area 118.4 sq m , Building area 91.53 sq m
(3号地)、価格3080万円、4LDK、土地面積118.4m2、建物面積91.53m2
Location
|