New Homes » Kansai » Osaka prefecture » Mino
 
| | Osaka Prefecture Mino 大阪府箕面市 |
| Northern Osaka Express "Senri" 15 minutes Ayumi Shin'ie 5 minutes by bus 北大阪急行「千里中央」バス15分新家歩5分 |
| South road Car space two possible (by car) There is housing performance evaluation system 南道路 カースペース2台可(車種による) 住宅性能評価制度あり |
Features pickup 特徴ピックアップ | | Design house performance with evaluation / Facing south / System kitchen / All room storage / Siemens south road / Or more before road 6m / Shaping land / Face-to-face kitchen / Bathroom 1 tsubo or more / 2-story / City gas / Storeroom 設計住宅性能評価付 /南向き /システムキッチン /全居室収納 /南側道路面す /前道6m以上 /整形地 /対面式キッチン /浴室1坪以上 /2階建 /都市ガス /納戸 | Price 価格 | | 33,800,000 yen 3380万円 | Floor plan 間取り | | 3LDK + S (storeroom) 3LDK+S(納戸) | Units sold 販売戸数 | | 1 units 1戸 | Total units 総戸数 | | 2 units 2戸 | Land area 土地面積 | | 100.24 sq m (measured) 100.24m2(実測) | Building area 建物面積 | | 91.08 sq m (measured) 91.08m2(実測) | Driveway burden-road 私道負担・道路 | | Nothing, South 7.8m width 無、南7.8m幅 | Completion date 完成時期(築年月) | | January 2014 2014年1月 | Address 住所 | | Osaka Prefecture Mino Aogein 1 大阪府箕面市粟生外院1 | Traffic 交通 | | Northern Osaka Express "Senri" 15 minutes Ayumi Shin'ie 5 minutes by bus 北大阪急行「千里中央」バス15分新家歩5分
| Contact お問い合せ先 | | TEL: 0800-601-5255 [Toll free] mobile phone ・ Also available from PHS Caller ID is not notified Please contact the "saw SUUMO (Sumo)" If it does not lead, If the real estate company TEL:0800-601-5255【通話料無料】携帯電話・PHSからもご利用いただけます 発信者番号は通知されません 「SUUMO(スーモ)を見た」と問い合わせください つながらない方、不動産会社の方は
| Building coverage, floor area ratio 建ぺい率・容積率 | | 60% ・ 200% 60%・200% | Time residents 入居時期 | | Consultation 相談 | Land of the right form 土地の権利形態 | | Ownership 所有権 | Structure and method of construction 構造・工法 | | Wooden 2-story 木造2階建 | Use district 用途地域 | | Two mid-high 2種中高 | Overview and notices その他概要・特記事項 | | Facilities: Public Water Supply, This sewage, City gas, Building confirmation number: No. KS113-6110-00271, Parking: car space 設備:公営水道、本下水、都市ガス、建築確認番号:第KS113-6110‐00271号、駐車場:カースペース | Company profile 会社概要 | | <Mediation> Minister of Land, Infrastructure and Transport (6) No. 004224 (Ltd.) Towa House Takatsuki store Yubinbango569-0071 Osaka Takatsuki Johoku cho 2-4-5 ODA building Johoku-cho, first floor <仲介>国土交通大臣(6)第004224号(株)藤和ハウス高槻店〒569-0071 大阪府高槻市城北町2-4-5 ODAビル城北町1階 |
Floor plan間取り図  33,800,000 yen, 3LDK+S, Land area 100.24 sq m , Building area 91.08 sq m Mino Aogein 1-chome between 2 Building floor plan
3380万円、3LDK+S、土地面積100.24m2、建物面積91.08m2 箕面市粟生外院1丁目2号棟間取図
 Other
その他
Compartment figure区画図  33,800,000 yen, 3LDK+S, Land area 100.24 sq m , Building area 91.08 sq m Mino Aogein 1-chome compartment view
3380万円、3LDK+S、土地面積100.24m2、建物面積91.08m2 箕面市粟生外院1丁目区画図
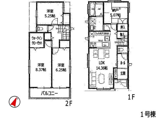
Floor plan間取り図  33,800,000 yen, 3LDK+S, Land area 100.24 sq m , Building area 91.08 sq m Mino Aogein 1-chome 1 Building floor plan
3380万円、3LDK+S、土地面積100.24m2、建物面積91.08m2 箕面市粟生外院1丁目1号棟間取図
Location
|