New Homes » Kansai » Osaka prefecture » Mino


Osaka Prefecture Mino
Hankyu Takarazuka Line "Ishibashi" walk 10 minutes
Features pickup
Super close / It is close to the city / Yang per good / Flat to the station / A quiet residential area / Shaping land / City gas / Flat terrain
Price
Undecided
Building coverage, floor area ratio
Ken pay ratio of 60, Volume rate of 200%
Sales compartment
1 compartment
Total number of compartments
1 compartment
Land area
65.73 sq m
Land situation
Vacant lot
Address
Osaka Prefecture Mino Segawa 2
Traffic
Hankyu Takarazuka Line "Ishibashi" walk 10 minutes
Related links
[Related Sites of this company]
Contact
Co., Ltd. Home bank services TEL: 0800-808-7892 [Toll free] mobile phone ・ Also available from PHS
Caller ID is not notified
Please contact the "saw SUUMO (Sumo)"
If it does not lead, If the real estate company
Sale schedule
Regard sale timing, We will report as soon as they are determined.
Land of the right form
Ownership
Building condition
With
Land category
Residential land
Use district
One middle and high
Overview and notices
Facilities: Kansai Electric Power Co., Public Water Supply, This sewage, City gas
Company profile
<Mediation> Governor of Hyogo Prefecture (1) No. 204150 (Ltd.) Home bank services Yubinbango663-8214 Nishinomiya, Hyogo Prefecture Imazuakebono cho 2-20


Local land photo

Local land photo. Local (12 May 2013) Shooting
Local (12 May 2013) Shooting

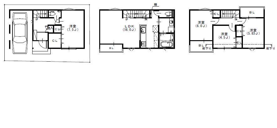
Building plan example (Perth ・ appearance)

Building plan example (Perth ・ appearance). Building plan example (image Perth)
Building plan example (image Perth)

Building plan example (Perth ・ Introspection)

Building plan example (Perth ・ Introspection). Building plan example
Building plan example

Building plan example (introspection photo)

Building plan example (introspection photo). Example of construction
Example of construction

Building plan example (introspection photo). Example of construction
Example of construction



Location