|
|
Osaka Prefecture Mino
大阪府箕面市
|
|
Hankyū Minoo Line "Sakurai" walk 10 minutes
阪急箕面線「桜井」歩10分
|
|
Home style [Mediation ・ Renovation ・ Architecture ・ Finance ・ Financial Plan] It is a company that is doing a comprehensive proposal of!
ホームスタイルは【仲介・リフォーム・建築・金融・ファイナンシャルプラン】の総合提案を行っている会社です!
|
|
Selection of properties of while watching the life plan and market conditions to suit your ⇒ we have been suggestions ⇒ guidance. ◆ Consumption tax hike before and after the tax increase What happens? ◆ From accumulating your down payment, Or buy? Buy Now, Which is Best? ◆ Rent and Which of the person's the good buy? ・ ・ ・ ・
お客様に合ったライフプランと市況を見ながらの物件の選定⇒ご提案⇒ご案内をさせて頂いております。◆消費税増税前と増税後 どうなるの?◆頭金を貯めてから、購入か? 今すぐ購入で、どっちがお得?◆賃貸と購入どっちの方がいいの?安心と不安を調査etc・・・・
|
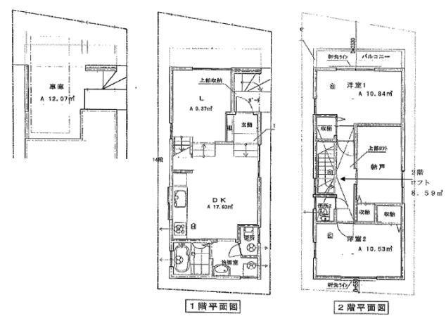
Features pickup 特徴ピックアップ | | Toilet 2 places / 2-story / loft トイレ2ヶ所 /2階建 /ロフト |
Price 価格 | | 26.5 million yen 2650万円 |
Floor plan 間取り | | 3DK 3DK |
Units sold 販売戸数 | | 1 units 1戸 |
Total units 総戸数 | | 1 units 1戸 |
Land area 土地面積 | | 66.04 sq m (registration) 66.04m2(登記) |
Building area 建物面積 | | 91.39 sq m , Among the first floor garage 12.07 sq m 91.39m2、うち1階車庫12.07m2 |
Driveway burden-road 私道負担・道路 | | Nothing, East 4m width (contact the road width 5.1m) 無、東4m幅(接道幅5.1m) |
Completion date 完成時期(築年月) | | April 2013 2013年4月 |
Address 住所 | | Osaka Prefecture Mino Hanmachi 4 大阪府箕面市半町4 |
Traffic 交通 | | Hankyū Minoo Line "Sakurai" walk 10 minutes 阪急箕面線「桜井」歩10分
|
Related links 関連リンク | | [Related Sites of this company] 【この会社の関連サイト】 |
Person in charge 担当者より | | Rep Miyaji For 30's customers: Hideaki age, It supports every effort to look for better properties. 担当者宮地 秀明年齢:30代お客様にとって、より良い物件探しを全力でサポートします。 |
Contact お問い合せ先 | | TEL: 0800-603-3479 [Toll free] mobile phone ・ Also available from PHS Caller ID is not notified Please contact the "saw SUUMO (Sumo)" If it does not lead, If the real estate company TEL:0800-603-3479【通話料無料】携帯電話・PHSからもご利用いただけます 発信者番号は通知されません 「SUUMO(スーモ)を見た」と問い合わせください つながらない方、不動産会社の方は
|
Building coverage, floor area ratio 建ぺい率・容積率 | | 60% ・ 200% 60%・200% |
Time residents 入居時期 | | Immediate available 即入居可 |
Land of the right form 土地の権利形態 | | Ownership 所有権 |
Structure and method of construction 構造・工法 | | Wooden 2-story part RC 木造2階建一部RC |
Construction 施工 | | (Ltd.) Osugi builders (株)大杉工務店 |
Use district 用途地域 | | One middle and high 1種中高 |
Overview and notices その他概要・特記事項 | | Contact: Miyaji Hideaki, Facilities: Public Water Supply, This sewage, City gas, Building confirmation number: KKK01204616, Parking: Garage 担当者:宮地 秀明、設備:公営水道、本下水、都市ガス、建築確認番号:KKK01204616、駐車場:車庫 |
Company profile 会社概要 | | <Mediation> governor of Osaka (2) No. 050720 (Corporation) All Japan Real Estate Association (Corporation) Kinki district Real Estate Fair Trade Council member Century 21 Home style (Ltd.) Yubinbango564-0062 Suita, Osaka Prefecture Tarumi-cho 3-35-12 <仲介>大阪府知事(2)第050720号(公社)全日本不動産協会会員 (公社)近畿地区不動産公正取引協議会加盟センチュリー21ホームスタイル(株)〒564-0062 大阪府吹田市垂水町3-35-12 |