2013October
32,800,000 yen, 4LDK, 94.77 sq m
New Homes » Kansai » Osaka prefecture » Mino

| | Osaka Prefecture Mino 大阪府箕面市 |
| Hankyū Minoo Line "Sakurai" walk 8 minutes 阪急箕面線「桜井」歩8分 |
| Sakurai 3-chome No. 1 destination 桜井3丁目 1号地 |
| [School information] South Elementary School ・ Third junior high school 【学校情報】南小学校・第3中学校 |
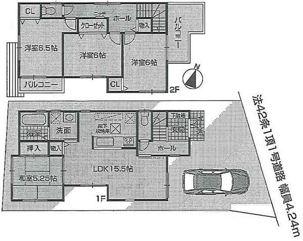
Features pickup 特徴ピックアップ | | System kitchen / Bathroom Dryer / LDK15 tatami mats or more / Japanese-style room / Face-to-face kitchen / Toilet 2 places / Bathroom 1 tsubo or more / 2-story / 2 or more sides balcony / Double-glazing / Otobasu / Underfloor Storage / TV monitor interphone / Water filter / City gas システムキッチン /浴室乾燥機 /LDK15畳以上 /和室 /対面式キッチン /トイレ2ヶ所 /浴室1坪以上 /2階建 /2面以上バルコニー /複層ガラス /オートバス /床下収納 /TVモニタ付インターホン /浄水器 /都市ガス | Price 価格 | | 32,800,000 yen 3280万円 | Floor plan 間取り | | 4LDK 4LDK | Units sold 販売戸数 | | 1 units 1戸 | Land area 土地面積 | | 100.01 sq m (registration) 100.01m2(登記) | Building area 建物面積 | | 94.77 sq m 94.77m2 | Driveway burden-road 私道負担・道路 | | Nothing, Northeast 4.2m width 無、北東4.2m幅 | Completion date 完成時期(築年月) | | October 2013 2013年10月 | Address 住所 | | Osaka Prefecture Mino Sakurai 3 大阪府箕面市桜井3 | Traffic 交通 | | Hankyū Minoo Line "Sakurai" walk 8 minutes 阪急箕面線「桜井」歩8分
| Related links 関連リンク | | [Related Sites of this company] 【この会社の関連サイト】 | Contact お問い合せ先 | | TEL: 0800-601-0849 [Toll free] mobile phone ・ Also available from PHS Caller ID is not notified Please contact the "saw SUUMO (Sumo)" If it does not lead, If the real estate company TEL:0800-601-0849【通話料無料】携帯電話・PHSからもご利用いただけます 発信者番号は通知されません 「SUUMO(スーモ)を見た」と問い合わせください つながらない方、不動産会社の方は
| Building coverage, floor area ratio 建ぺい率・容積率 | | 60% ・ 200% 60%・200% | Time residents 入居時期 | | Consultation 相談 | Land of the right form 土地の権利形態 | | Ownership 所有権 | Structure and method of construction 構造・工法 | | Wooden 2-story 木造2階建 | Use district 用途地域 | | One middle and high 1種中高 | Overview and notices その他概要・特記事項 | | Facilities: Public Water Supply, This sewage, City gas, Building confirmation number: No. Trust 13-1421 設備:公営水道、本下水、都市ガス、建築確認番号:第トラスト13-1421号 | Company profile 会社概要 | | <Mediation> governor of Osaka (2) the first 053,245 No. Century 21 Smart Home Ltd. Yubinbango564-0063 Suita, Osaka Esaka-cho 3-17-9 <仲介>大阪府知事(2)第053245号センチュリー21スマートホーム(株)〒564-0063 大阪府吹田市江坂町3-17-9 |
Floor plan間取り図  32,800,000 yen, 4LDK, Land area 100.01 sq m , Building area 94.77 sq m
3280万円、4LDK、土地面積100.01m2、建物面積94.77m2
Location
|