|
|
Osaka Prefecture Neyagawa
大阪府寝屋川市
|
|
Keihan "Neyagawa" walk 17 minutes
京阪本線「寝屋川市」歩17分
|
|
● All rooms are equipped with LED lighting! ● There is spacious feeling of freedom in the ceiling height of 2.5m! ● all-electric homes! ● children peace of mind in a 4-minute walk from Nishi Elementary School!
●全室LED照明付き!●天井高2.5mで広々解放感あり!●オール電化住宅!●西小学校まで徒歩4分でお子様安心!
|
|
Insulation energy saving in the aqua form ・ CO2 reduction! Eco-carat (deodorant ・ Using an anti-humidity)!
断熱材はアクアフォームで省エネ・CO2削減!エコカラット(消臭・消湿)を使用!
|
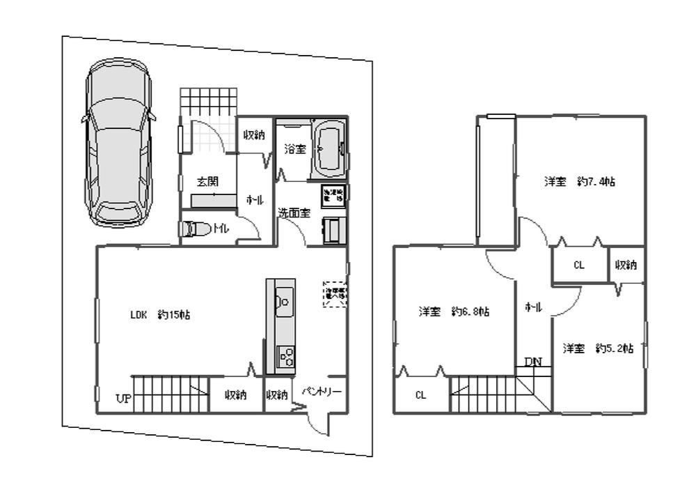
Features pickup 特徴ピックアップ | | Airtight high insulated houses / System kitchen / All room storage / Flat to the station / Washbasin with shower / Face-to-face kitchen / Barrier-free / Bathroom 1 tsubo or more / 2-story / Double-glazing / Warm water washing toilet seat / Underfloor Storage / The window in the bathroom / TV monitor interphone / All living room flooring / IH cooking heater / Or more ceiling height 2.5m / Water filter / All-electric / All rooms are two-sided lighting / Flat terrain 高気密高断熱住宅 /システムキッチン /全居室収納 /駅まで平坦 /シャワー付洗面台 /対面式キッチン /バリアフリー /浴室1坪以上 /2階建 /複層ガラス /温水洗浄便座 /床下収納 /浴室に窓 /TVモニタ付インターホン /全居室フローリング /IHクッキングヒーター /天井高2.5m以上 /浄水器 /オール電化 /全室2面採光 /平坦地 |
Price 価格 | | 24,900,000 yen 2490万円 |
Floor plan 間取り | | 3LDK 3LDK |
Units sold 販売戸数 | | 1 units 1戸 |
Land area 土地面積 | | 103.55 sq m (registration) 103.55m2(登記) |
Building area 建物面積 | | 87.24 sq m (registration) 87.24m2(登記) |
Driveway burden-road 私道負担・道路 | | 13.23 sq m , Northeast 4m width (contact the road width 8.3m) 13.23m2、北東4m幅(接道幅8.3m) |
Completion date 完成時期(築年月) | | March 2013 2013年3月 |
Address 住所 | | Osaka Prefecture Neyagawa Kasuga-cho 大阪府寝屋川市春日町 |
Traffic 交通 | | Keihan "Neyagawa" walk 17 minutes 京阪本線「寝屋川市」歩17分
|
Related links 関連リンク | | [Related Sites of this company] 【この会社の関連サイト】 |
Contact お問い合せ先 | | (Ltd.) pylon TEL: 072-381-6351 Please inquire as "saw SUUMO (Sumo)" (株)パイロンTEL:072-381-6351「SUUMO(スーモ)を見た」と問い合わせください |
Building coverage, floor area ratio 建ぺい率・容積率 | | 60% ・ 200% 60%・200% |
Time residents 入居時期 | | Consultation 相談 |
Land of the right form 土地の権利形態 | | Ownership 所有権 |
Structure and method of construction 構造・工法 | | Wooden 2-story 木造2階建 |
Use district 用途地域 | | One dwelling 1種住居 |
Other limitations その他制限事項 | | Regulations have by the Landscape Act, Quasi-fire zones 景観法による規制有、準防火地域 |
Overview and notices その他概要・特記事項 | | Facilities: Public Water Supply, This sewage, City gas, Building confirmation number: H24-PLN 奈支 1254, Parking: car space 設備:公営水道、本下水、都市ガス、建築確認番号:H24-PLN奈支1254、駐車場:カースペース |
Company profile 会社概要 | | <Mediation> governor of Osaka Prefecture (1) No. 055301 (Ltd.) pylon Yubinbango572-0080 Osaka Neyagawa Korikitano cho 17-6-101 <仲介>大阪府知事(1)第055301号(株)パイロン〒572-0080 大阪府寝屋川市香里北之町17-6-101 |