|
|
Osaka Prefecture Neyagawa
大阪府寝屋川市
|
|
Keihan "Korien" walk 15 minutes
京阪本線「香里園」歩15分
|
|
[Yamada ・ Esubaieru home of newly built single-family] Condominiums with regular leasehold. "You still time. Consumption tax 5% of the residents "* The Property can be your delivery by the end of March.
【ヤマダ・エスバイエルホームの新築一戸建て】定期借地権付分譲住宅。「まだ間に合います。消費税5%の入居」*本物件は3月末までにお引渡しが可能です。
|
|
- "You still time. Consumption tax 5% of the residents "* The Property can be your delivery by the end of March. --
--「まだ間に合います。消費税5%の入居」*本物件は3月末までにお引渡しが可能です。--
|
Features pickup 特徴ピックアップ | | Corresponding to the flat-35S / Immediate Available / Super close / Bathroom Dryer / Flat to the station / Japanese-style room / Shaping land / Washbasin with shower / Face-to-face kitchen / Wide balcony / Barrier-free / Toilet 2 places / Bathroom 1 tsubo or more / 2-story / Water filter / Flat terrain フラット35Sに対応 /即入居可 /スーパーが近い /浴室乾燥機 /駅まで平坦 /和室 /整形地 /シャワー付洗面台 /対面式キッチン /ワイドバルコニー /バリアフリー /トイレ2ヶ所 /浴室1坪以上 /2階建 /浄水器 /平坦地 |
Event information イベント情報 | | Open House (Please visitors to direct local) schedule / Every Saturday and Sunday time / 10:00 ~ 17:00 オープンハウス(直接現地へご来場ください)日程/毎週土日時間/10:00 ~ 17:00 |
Price 価格 | | 16.5 million yen 1650万円 |
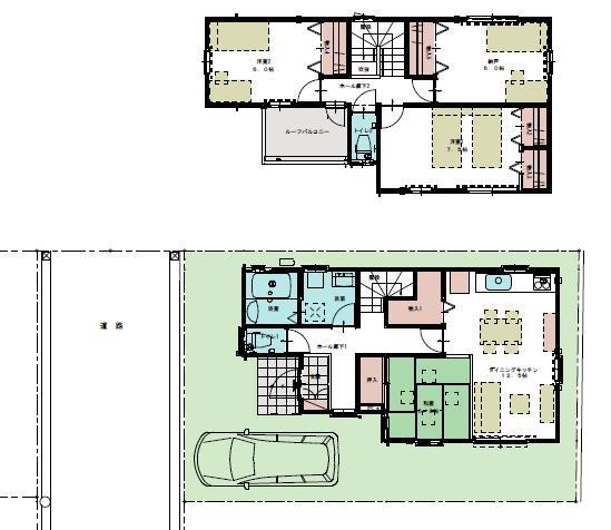
Floor plan 間取り | | 4LDK 4LDK |
Units sold 販売戸数 | | 1 units 1戸 |
Total units 総戸数 | | 2 units 2戸 |
Land area 土地面積 | | 100.21 sq m (measured) 100.21m2(実測) |
Building area 建物面積 | | 93.15 sq m (measured) 93.15m2(実測) |
Driveway burden-road 私道負担・道路 | | Nothing, West 4.7m width 無、西4.7m幅 |
Completion date 完成時期(築年月) | | December 2012 2012年12月 |
Address 住所 | | Osaka Prefecture Neyagawa Tai-cho, 43 大阪府寝屋川市田井町43 |
Traffic 交通 | | Keihan "Korien" walk 15 minutes 京阪本線「香里園」歩15分
|
Related links 関連リンク | | [Related Sites of this company] 【この会社の関連サイト】 |
Person in charge 担当者より | | Rep Konishi 担当者小西 |
Contact お問い合せ先 | | (Ltd.) Yamada ・ Esubaieru Home Osaka Branch TEL: 0800-809-8699 [Toll free] mobile phone ・ Also available from PHS Caller ID is not notified Please contact the "saw SUUMO (Sumo)" If it does not lead, If the real estate company (株)ヤマダ・エスバイエルホーム大阪支店TEL:0800-809-8699【通話料無料】携帯電話・PHSからもご利用いただけます 発信者番号は通知されません 「SUUMO(スーモ)を見た」と問い合わせください つながらない方、不動産会社の方は
|
Expenses 諸費用 | | Deposit: 2 million yen, Rent: 21,100 yen / Month 保証金:200万円、地代:2万1100円/月 |
Building coverage, floor area ratio 建ぺい率・容積率 | | 60% ・ 188 percent 60%・188% |
Time residents 入居時期 | | Immediate available 即入居可 |
Land of the right form 土地の権利形態 | | General leasehold (leasehold), Leasehold period new 50 years, Leasehold setting registration Allowed, Rent revisions are revised every three years, Rents According to the official revised, Transfer of leasehold ・ Sublease Allowed (landowner consent, Consent required, Consent fee required) 一般定期借地権(賃借権)、借地期間新規50年、借地権設定登記可、賃料改定は3年毎に改定、改定後賃料は公式による、借地権の譲渡・転貸可(地主承諾、承諾要、承諾料不要) |
Structure and method of construction 構造・工法 | | SxL Construction 2-story (panel method) SxL構法2階建(パネル工法) |
Construction 施工 | | Co., Ltd. Yamada ・ Esubaieru Home 株式会社ヤマダ・エスバイエルホーム |
Use district 用途地域 | | Two mid-high 2種中高 |
Other limitations その他制限事項 | | Regulations have by the Law for the Protection of Cultural Properties, Regulations have by the Landscape Act, Height district, Shade limit Yes 文化財保護法による規制有、景観法による規制有、高度地区、日影制限有 |
Overview and notices その他概要・特記事項 | | Contact: Konishi, Facilities: Public Water Supply, This sewage, City gas, Parking: Garage 担当者:小西、設備:公営水道、本下水、都市ガス、駐車場:車庫 |
Company profile 会社概要 | | <Building seller ・ Land lessor> Minister of Land, Infrastructure and Transport (14) No. 000382 (one company) Property distribution management Association (Corporation) metropolitan area real estate Fair Trade Council member (Ltd.) Yamada ・ Esubaieru Home Osaka branch Yubinbango532-0002 Osaka-shi, Osaka Yodogawa Higashimikuni 6-1-30 Kobori Higashimikuni 201 <建物売主・土地貸主>国土交通大臣(14)第000382号(一社)不動産流通経営協会会員 (公社)首都圏不動産公正取引協議会加盟(株)ヤマダ・エスバイエルホーム大阪支店〒532-0002 大阪府大阪市淀川区東三国6-1-30コボリ東三国201 |