|
|
Osaka Prefecture Neyagawa
大阪府寝屋川市
|
|
Keihan "Neyagawa" 10 minutes Asahi hill house walk 3 minutes by bus
京阪本線「寝屋川市」バス10分あさひ丘住宅歩3分
|
|
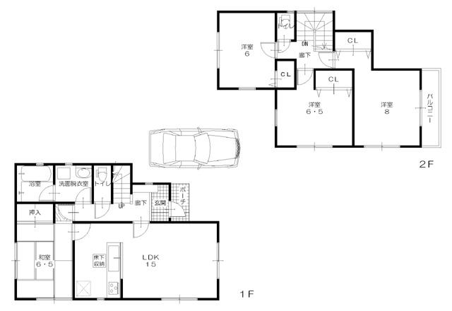
▼ 4LDK + parking ▼ all-electric housing ▼ All rooms 6 quires more ・ Easy-to-use floor plans ▼ first kind low-rise residential dedicated a quiet residential area with all rooms housed
▼4LDK+駐車場▼オール電化住宅▼全室6帖以上・全室収納付きで使い勝手の良い間取り▼第1種低層住居専用の閑静な住宅街
|
|
▼ wide balcony ▼ Higashi Elementary School 9 minute walk, The first junior high school Walk 13 minutes <standard equipment> ・ System kitchen (water purifier integrated faucet) ・ Unit bus with Air Heating dryer ・ Shower toilet (1F ・ 2F) ・ Shower Dresser ・ Porch light with motion sensors ・ TV monitor with intercom ・ Picking measures with entrance door ・ All room pair glass
▼ワイドバルコニー▼東小学校 徒歩9分、第一中学校 徒歩13分<標準装備>・システムキッチン(浄水器一体型水栓)・換気暖房乾燥機付ユニットバス・シャワートイレ(1F・2F)・シャワードレッサー・人感センサー付き玄関灯・TVモニター付きインターホン・ピッキング対策付き玄関ドア・全居室ペアガラス
|
Features pickup 特徴ピックアップ | | System kitchen / Bathroom Dryer / All room storage / A quiet residential area / LDK15 tatami mats or more / Japanese-style room / Washbasin with shower / Face-to-face kitchen / Wide balcony / Toilet 2 places / Bathroom 1 tsubo or more / 2-story / Warm water washing toilet seat / The window in the bathroom / TV monitor interphone / All room 6 tatami mats or more / Water filter / All-electric / All rooms are two-sided lighting システムキッチン /浴室乾燥機 /全居室収納 /閑静な住宅地 /LDK15畳以上 /和室 /シャワー付洗面台 /対面式キッチン /ワイドバルコニー /トイレ2ヶ所 /浴室1坪以上 /2階建 /温水洗浄便座 /浴室に窓 /TVモニタ付インターホン /全居室6畳以上 /浄水器 /オール電化 /全室2面採光 |
Price 価格 | | 28.8 million yen 2880万円 |
Floor plan 間取り | | 4LDK 4LDK |
Units sold 販売戸数 | | 1 units 1戸 |
Total units 総戸数 | | 4 units 4戸 |
Land area 土地面積 | | 120.01 sq m 120.01m2 |
Building area 建物面積 | | 95.58 sq m 95.58m2 |
Driveway burden-road 私道負担・道路 | | Nothing, East 4.7m width 無、東4.7m幅 |
Completion date 完成時期(築年月) | | December 2013 2013年12月 |
Address 住所 | | Osaka Prefecture Neyagawa Takamiya Asahi hill 大阪府寝屋川市高宮あさひ丘 |
Traffic 交通 | | Keihan "Neyagawa" 10 minutes Asahi hill house walk 3 minutes by bus JR katamachi line "Higashineyagawa" walk 20 minutes JR katamachi line "Shinobukeoka" walk 25 minutes 京阪本線「寝屋川市」バス10分あさひ丘住宅歩3分 JR片町線「東寝屋川」歩20分 JR片町線「忍ケ丘」歩25分
|
Contact お問い合せ先 | | (Ltd.) Nakatomi building contractors TEL: 0800-603-1649 [Toll free] mobile phone ・ Also available from PHS Caller ID is not notified Please contact the "saw SUUMO (Sumo)" If it does not lead, If the real estate company (株)中富工務店TEL:0800-603-1649【通話料無料】携帯電話・PHSからもご利用いただけます 発信者番号は通知されません 「SUUMO(スーモ)を見た」と問い合わせください つながらない方、不動産会社の方は
|
Building coverage, floor area ratio 建ぺい率・容積率 | | Fifty percent ・ Hundred percent 50%・100% |
Time residents 入居時期 | | Consultation 相談 |
Land of the right form 土地の権利形態 | | Ownership 所有権 |
Structure and method of construction 構造・工法 | | Wooden 2-story 木造2階建 |
Use district 用途地域 | | One low-rise 1種低層 |
Overview and notices その他概要・特記事項 | | Facilities: Public Water Supply, This sewage, All-electric, Building confirmation number: H25SHC114984, Parking: car space 設備:公営水道、本下水、オール電化、建築確認番号:H25SHC114984、駐車場:カースペース |
Company profile 会社概要 | | <Mediation> governor of Osaka (6) No. 033657 (Ltd.) Nakatomi builders Yubinbango575-0063 Osaka shijonawate Seiryu 18-11 <仲介>大阪府知事(6)第033657号(株)中富工務店〒575-0063 大阪府四條畷市清瀧18-11 |