New Homes » Kansai » Osaka prefecture » Higashi Sumiyoshi Ward


Osaka-shi, Osaka Higashi Sumiyoshi Ward
Kintetsu Minami-Osaka Line "Harinakano" walk 2 minutes
[Art Town Harinakano] From land-denominated set ¥ 2780 yen
Price
12.8 million yen
Building coverage, floor area ratio
60% ・ 200%
Sales compartment
1 compartment
Land area
66.19 sq m
Driveway burden-road
Nothing, North 4m width
Land situation
Vacant lot
Address
Osaka-shi, Osaka Higashi Sumiyoshi Ward Harinakano 3
Traffic
Kintetsu Minami-Osaka Line "Harinakano" walk 2 minutes
Subway Tanimachi Line "Komagawa Nakano" walk 8 minutes
Related links
[Related Sites of this company]
Contact
TEL: 0120-666570 [Toll free] Please contact the "saw SUUMO (Sumo)"
Land of the right form
Ownership
Building condition
With
Time delivery
Consultation
Land category
Residential land
Use district
Two mid-high
Overview and notices
Facilities: Public Water Supply, City gas
Company profile
<Mediation> governor of Osaka Prefecture (1) the first 056,131 No. Art Home Ltd. Yubinbango543-0043 Osaka Tennoji-ku, Katsuyama 1-9-16


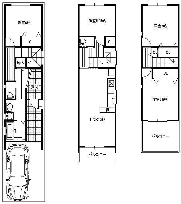
Compartment view + building plan example

Compartment view + building plan example. Building plan example, Land price 12.8 million yen, Land area 66.19 sq m , Building price 15 million yen, Building area 101.28 sq m
Building plan example, Land price 12.8 million yen, Land area 66.19 sq m , Building price 15 million yen, Building area 101.28 sq m



Location