2013May
28.8 million yen, 3LDK, 92.82 sq m
New Homes » Kansai » Osaka prefecture » Higashi Sumiyoshi Ward
 
| | Osaka-shi, Osaka Higashi Sumiyoshi Ward 大阪府大阪市東住吉区 |
| Subway Tanimachi Line "Komagawa Nakano" walk 4 minutes 地下鉄谷町線「駒川中野」歩4分 |
Features pickup 特徴ピックアップ | | City gas 都市ガス | Price 価格 | | 28.8 million yen 2880万円 | Floor plan 間取り | | 3LDK 3LDK | Units sold 販売戸数 | | 1 units 1戸 | Land area 土地面積 | | 59.2 sq m 59.2m2 | Building area 建物面積 | | 92.82 sq m 92.82m2 | Driveway burden-road 私道負担・道路 | | Nothing, West 4m width (contact the road width 4m) 無、西4m幅(接道幅4m) | Completion date 完成時期(築年月) | | May 2013 2013年5月 | Address 住所 | | Osaka-shi, Osaka Higashi Sumiyoshi Ward Nishiimagawa 4 大阪府大阪市東住吉区西今川4 | Traffic 交通 | | Subway Tanimachi Line "Komagawa Nakano" walk 4 minutes Kintetsu Minami-Osaka Line "Imagawa" walk 9 minutes 地下鉄谷町線「駒川中野」歩4分 近鉄南大阪線「今川」歩9分
| Related links 関連リンク | | [Related Sites of this company] 【この会社の関連サイト】 | Contact お問い合せ先 | | TEL: 0120-666570 [Toll free] Please contact the "saw SUUMO (Sumo)" TEL:0120-666570【通話料無料】「SUUMO(スーモ)を見た」と問い合わせください | Building coverage, floor area ratio 建ぺい率・容積率 | | 80% ・ 200% 80%・200% | Land of the right form 土地の権利形態 | | Ownership 所有権 | Structure and method of construction 構造・工法 | | Wooden three-story 木造3階建 | Use district 用途地域 | | One dwelling 1種住居 | Overview and notices その他概要・特記事項 | | Facilities: Public Water Supply, This sewage, City gas 設備:公営水道、本下水、都市ガス | Company profile 会社概要 | | <Mediation> governor of Osaka Prefecture (1) the first 056,131 No. Art Home Ltd. Yubinbango543-0043 Osaka Tennoji-ku, Katsuyama 1-9-16 <仲介>大阪府知事(1)第056131号アートホーム(株)〒543-0043 大阪府大阪市天王寺区勝山1-9-16 |
Local appearance photo現地外観写真  Local (August 2013) Shooting
現地(2013年8月)撮影
Local photos, including front road前面道路含む現地写真  Local (August 2013) Shooting
現地(2013年8月)撮影
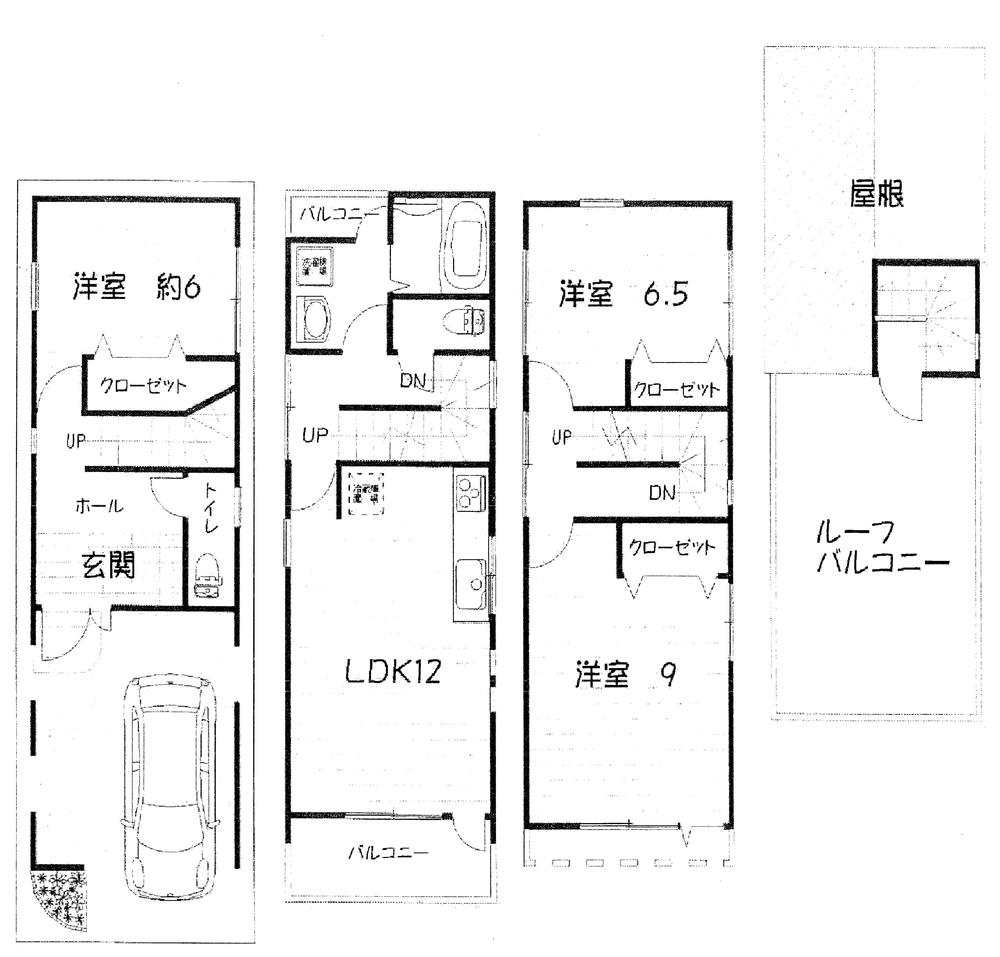
Floor plan間取り図  28.8 million yen, 3LDK, Land area 59.2 sq m , Building area 92.82 sq m
2880万円、3LDK、土地面積59.2m2、建物面積92.82m2
Location
|