New Homes » Kansai » Osaka prefecture » Higashi Sumiyoshi Ward
 
| | Osaka-shi, Osaka Higashi Sumiyoshi Ward 大阪府大阪市東住吉区 |
| Subway Midosuji Line "Abiko" walk 14 minutes 地下鉄御堂筋線「あびこ」歩14分 |
| New construction Ichinohe Ken of 2-story 4 compartment appeared. From land with 29.25 square meters, Wide compartment is equipped with 37.93 square meters. Local completion scheduled, 2014 January that because, We can guide you to the model house in our company. 2階建の新築一戸建が4区画登場。土地29.25坪付から、広い区画は37.93坪付です。現地完成予定は、平成26年1月なので、当社ではモデルハウスへのご案内が可能です。 |
| Pre-ground survey, South balcony, LDK15 tatami mats or more, Face-to-face kitchen, Yang per good, 2-story, 2 along the line more accessible, System kitchen, Bathroom Dryer, All room storage, Flat to the station, A quiet residential area, Around traffic fewer, garden, Washbasin with shower, Wide balcony, Toilet 2 places, Bathroom 1 tsubo or more, Double-glazing, Warm water washing toilet seat, Underfloor Storage, The window in the bathroom, TV monitor interphone, Ventilation good, Good view, Walk-in closet, All room 6 tatami mats or more, Water filter, City gas, A large gap between the neighboring house, Flat terrain, 2 family house 地盤調査済、南面バルコニー、LDK15畳以上、対面式キッチン、陽当り良好、2階建、2沿線以上利用可、システムキッチン、浴室乾燥機、全居室収納、駅まで平坦、閑静な住宅地、周辺交通量少なめ、庭、シャワー付洗面台、ワイドバルコニー、トイレ2ヶ所、浴室1坪以上、複層ガラス、温水洗浄便座、床下収納、浴室に窓、TVモニタ付インターホン、通風良好、眺望良好、ウォークインクロゼット、全居室6畳以上、浄水器、都市ガス、隣家との間隔が大きい、平坦地、2世帯住宅 |
Features pickup 特徴ピックアップ | | Pre-ground survey / 2 along the line more accessible / System kitchen / Bathroom Dryer / Yang per good / All room storage / Flat to the station / A quiet residential area / LDK15 tatami mats or more / Around traffic fewer / garden / Washbasin with shower / Face-to-face kitchen / Wide balcony / Toilet 2 places / Bathroom 1 tsubo or more / 2-story / South balcony / Double-glazing / Warm water washing toilet seat / Underfloor Storage / The window in the bathroom / TV monitor interphone / Ventilation good / Good view / Walk-in closet / All room 6 tatami mats or more / Water filter / City gas / A large gap between the neighboring house / Flat terrain / 2 family house 地盤調査済 /2沿線以上利用可 /システムキッチン /浴室乾燥機 /陽当り良好 /全居室収納 /駅まで平坦 /閑静な住宅地 /LDK15畳以上 /周辺交通量少なめ /庭 /シャワー付洗面台 /対面式キッチン /ワイドバルコニー /トイレ2ヶ所 /浴室1坪以上 /2階建 /南面バルコニー /複層ガラス /温水洗浄便座 /床下収納 /浴室に窓 /TVモニタ付インターホン /通風良好 /眺望良好 /ウォークインクロゼット /全居室6畳以上 /浄水器 /都市ガス /隣家との間隔が大きい /平坦地 /2世帯住宅 | Event information イベント情報 | | Local guide Board (Please be sure to ask in advance) schedule / During the public time / 9:00 ~ 21:00 現地案内会(事前に必ずお問い合わせください)日程/公開中時間/9:00 ~ 21:00 | Price 価格 | | 22,800,000 yen ~ 23.8 million yen 2280万円 ~ 2380万円 | Floor plan 間取り | | 4LDK 4LDK | Units sold 販売戸数 | | 4 units 4戸 | Total units 総戸数 | | 4 units 4戸 | Land area 土地面積 | | 96.71 sq m ~ 125.42 sq m (29.25 tsubo ~ 37.93 tsubo) (Registration) 96.71m2 ~ 125.42m2(29.25坪 ~ 37.93坪)(登記) | Building area 建物面積 | | 93.82 sq m ~ 105.3 sq m (28.38 tsubo ~ 31.85 tsubo) (Registration) 93.82m2 ~ 105.3m2(28.38坪 ~ 31.85坪)(登記) | Driveway burden-road 私道負担・道路 | | West 5m, Asphalt paving of North 5m width 西5m、北5m幅のアスファルト舗装 | Completion date 完成時期(築年月) | | January 2014 early schedule 2014年1月初旬予定 | Address 住所 | | Osaka-shi, Osaka Higashi Sumiyoshi Ward Koenminamiyata 4 大阪府大阪市東住吉区公園南矢田4 | Traffic 交通 | | Subway Midosuji Line "Abiko" walk 14 minutes Kintetsu Minami-Osaka Line "Yada" walk 21 minutes JR Hanwa Line "Abikocho" walk 22 minutes 地下鉄御堂筋線「あびこ」歩14分 近鉄南大阪線「矢田」歩21分 JR阪和線「我孫子町」歩22分
| Related links 関連リンク | | [Related Sites of this company] 【この会社の関連サイト】 | Person in charge 担当者より | | Person in charge of real-estate and building Yamamoto Power Age: 40 Daigyokai Experience: 23 years 担当者宅建山本 力年齢:40代業界経験:23年 | Contact お問い合せ先 | | TEL: 0120-734771 [Toll free] Please contact the "saw SUUMO (Sumo)" TEL:0120-734771【通話料無料】「SUUMO(スーモ)を見た」と問い合わせください | Building coverage, floor area ratio 建ぺい率・容積率 | | Kenpei rate: 80%, Volume ratio: 200% 建ペい率:80%、容積率:200% | Time residents 入居時期 | | 2 months after the contract 契約後2ヶ月 | Land of the right form 土地の権利形態 | | Ownership 所有権 | Structure and method of construction 構造・工法 | | Wooden 2-story 木造2階建 | Use district 用途地域 | | One dwelling 1種住居 | Land category 地目 | | Residential land 宅地 | Overview and notices その他概要・特記事項 | | Contact: Yamamoto Power, Building confirmation number: No. 25SHC116411 担当者:山本 力、建築確認番号:第25SHC116411号 | Company profile 会社概要 | | <Mediation> governor of Osaka (2) No. 052787 (with) First step real estate sales Yubinbango537-0021 Osaka-shi, Osaka Higashinari-ku Higashinakamoto 3-19-23 <仲介>大阪府知事(2)第052787号(有)ファーストステップ不動産販売〒537-0021 大阪府大阪市東成区東中本3-19-23 |
Same specifications photos (appearance)同仕様写真(外観)  The company construction cases
同社施工例
Otherその他  The company construction cases
同社施工例
 The company construction cases
同社施工例
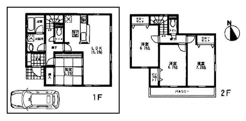
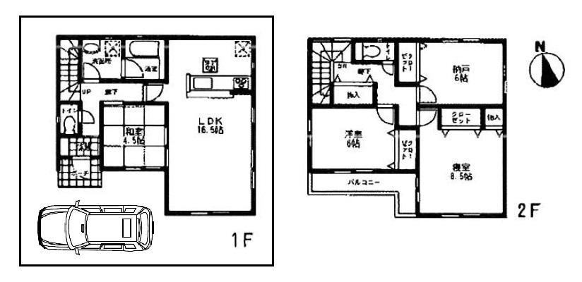
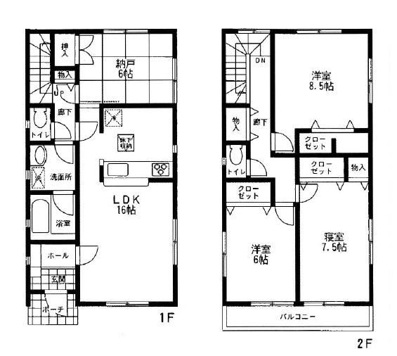
 Building 2: 23.8 million yen
2号棟:2380万円
 1 Building: 23.8 million yen
1号棟:2380万円
 Building 3: 22.8 million yen
3号棟:2280万円
 4 Building: 22,800,000 yen
4号棟:2280万円
 Compartment figure
区画図
 The company construction cases
同社施工例
 The company construction cases
同社施工例
 The company construction cases
同社施工例
 The company construction cases
同社施工例
 The company construction cases
同社施工例
 The company construction cases
同社施工例
 The company construction cases
同社施工例
 The company construction cases
同社施工例
 The company construction cases
同社施工例
Local appearance photo現地外観写真  Local (12 May 2013) Shooting
現地(2013年12月)撮影
 Local (11 May 2013) Shooting
現地(2013年11月)撮影
 Local (11 May 2013) Shooting
現地(2013年11月)撮影
 1 Building
1号棟
 Building 2
2号棟
 4 Building
4号棟
 4 Building
4号棟
 4 Building
4号棟
 1 Building
1号棟
 Building 2
2号棟
Location
|