New Homes » Kansai » Osaka prefecture » Joto-ku
 
| | Osaka-shi, Osaka Joto-ku, 大阪府大阪市城東区 |
| Subway Chuo Line "Fukaebashi" walk 8 minutes 地下鉄中央線「深江橋」歩8分 |
| Achieve a comfortable space with the latest standard equipment 最新標準設備で快適空間を実現 |
| ・ A free plan Mato free ・ Power Board outer wall with excellent thermal insulation ・ Seismic Grade 3 ・フリープランで間取は自由・外壁は断熱性に優れたパワーボード・耐震等級3 |
Features pickup 特徴ピックアップ | | Airtight high insulated houses / Vibration Control ・ Seismic isolation ・ Earthquake resistant / 2 along the line more accessible / LDK18 tatami mats or more / Fiscal year Available / Super close / System kitchen / Bathroom Dryer / All room storage / Japanese-style room / Washbasin with shower / Face-to-face kitchen / Toilet 2 places / Bathroom 1 tsubo or more / Double-glazing / Otobasu / Warm water washing toilet seat / TV with bathroom / The window in the bathroom / TV monitor interphone / High-function toilet / Urban neighborhood / Dish washing dryer / Water filter / Three-story or more / City gas / Floor heating / Audio bus 高気密高断熱住宅 /制震・免震・耐震 /2沿線以上利用可 /LDK18畳以上 /年度内入居可 /スーパーが近い /システムキッチン /浴室乾燥機 /全居室収納 /和室 /シャワー付洗面台 /対面式キッチン /トイレ2ヶ所 /浴室1坪以上 /複層ガラス /オートバス /温水洗浄便座 /TV付浴室 /浴室に窓 /TVモニタ付インターホン /高機能トイレ /都市近郊 /食器洗乾燥機 /浄水器 /3階建以上 /都市ガス /床暖房 /オーディオバス | Event information イベント情報 | | Local tours (Please be sure to ask in advance) schedule / Every Saturday, Sunday and public holidays time / 10:00 ~ 17:30 First actually tour the local! ! Please contact us by all means feel free to. 現地見学会(事前に必ずお問い合わせください)日程/毎週土日祝時間/10:00 ~ 17:30まずは実際に現地を見学!!是非お気軽にお問合せ下さい。 | Price 価格 | | 29,800,000 yen 2980万円 | Floor plan 間取り | | 4LDK 4LDK | Units sold 販売戸数 | | 1 units 1戸 | Total units 総戸数 | | 2 units 2戸 | Land area 土地面積 | | 59.29 sq m 59.29m2 | Building area 建物面積 | | 127.98 sq m 127.98m2 | Driveway burden-road 私道負担・道路 | | Nothing 無 | Completion date 完成時期(築年月) | | 7 months after the contract 契約後7ヶ月 | Address 住所 | | Osaka-shi, Osaka Joto-ku Higashinakahama 9 大阪府大阪市城東区東中浜9 | Traffic 交通 | | Subway Chuo Line "Fukaebashi" walk 8 minutes Metro center line "Green Bridge" walk 13 minutes JR katamachi line "release" walk 21 minutes 地下鉄中央線「深江橋」歩8分 地下鉄中央線「緑橋」歩13分 JR片町線「放出」歩21分
| Related links 関連リンク | | [Related Sites of this company] 【この会社の関連サイト】 | Person in charge 担当者より | | [Regarding this property.] Available upon consultation of the mortgage. Of the model house preview is also available! Please contact us by all means once. 【この物件について】住宅ローンのご相談承ります。モデルハウスの内覧も可能です!!是非一度お問合せください。 | Contact お問い合せ先 | | (Ltd.) creation TEL: 0800-603-8605 [Toll free] mobile phone ・ Also available from PHS Caller ID is not notified Please contact the "saw SUUMO (Sumo)" If it does not lead, If the real estate company (株)創造TEL:0800-603-8605【通話料無料】携帯電話・PHSからもご利用いただけます 発信者番号は通知されません 「SUUMO(スーモ)を見た」と問い合わせください つながらない方、不動産会社の方は
| Building coverage, floor area ratio 建ぺい率・容積率 | | 80% ・ 200% 80%・200% | Time residents 入居時期 | | 7 months after the contract 契約後7ヶ月 | Land of the right form 土地の権利形態 | | Ownership 所有権 | Structure and method of construction 構造・工法 | | Wooden three-story 木造3階建 | Use district 用途地域 | | Semi-industrial 準工業 | Overview and notices その他概要・特記事項 | | Facilities: Public Water Supply, This sewage, City gas, Building confirmation number: HK12-0457, Parking: car space 設備:公営水道、本下水、都市ガス、建築確認番号:HK12-0457、駐車場:カースペース | Company profile 会社概要 | | <Seller> governor of Osaka (2) No. 053790 (Ltd.) creation Yubinbango540-0024, Chuo-ku, Osaka-shi Minamishin cho 1-2-4 <売主>大阪府知事(2)第053790号(株)創造〒540-0024 大阪府大阪市中央区南新町1-2-4 |
Rendering (appearance)完成予想図(外観)  Image Perth
イメージパース
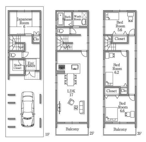
Floor plan間取り図  29,800,000 yen, 4LDK, Land area 59.29 sq m , Floor free per building area 127.98 sq m reference plan
2980万円、4LDK、土地面積59.29m2、建物面積127.98m2 参考プランにつき間取りは自由
Same specifications photos (living)同仕様写真(リビング)  Living High-quality living space to bring a contented life
リビング 満ち足りた暮らしをもたらす上質な住空間
Same specifications photo (bathroom)同仕様写真(浴室)  Bathroom Commitment to comfort, It is a bathroom to help you spend more comfortable moments.
浴室 心地よさにこだわり、より快適なひとときを過ごしていただくためのバスルームです。
Same specifications photo (kitchen)同仕様写真(キッチン)  System kitchen A spacious work top is an open face-to-face kitchen of charm. Design that does not block the line of sight, Kitchen and living room, Dining will make a heck of space.
システムキッチン ゆったりと広いワークトップが魅力のオープン対面キッチンです。 視線をさえぎらないデザインで、キッチンとリビング、ダイニングが一体の空間をつくります。
Same specifications photos (Other introspection)同仕様写真(その他内観)  Wash
洗面
 Toilet
トイレ
 Joinery ・ TV Board
建具・テレビボード
 floor
フロア
 Japanese style room
和室
Otherその他  Entrance door
玄関ドア
 sash
サッシ
Kindergarten ・ Nursery幼稚園・保育園  750m to Osaka Municipal Higashinakamoto nursery
大阪市立東中本保育所まで750m
Primary school小学校  550m to Osaka Municipal Higashinakahama Elementary School
大阪市立東中浜小学校まで550m
Junior high school中学校  260m to Osaka Municipal Joto Junior High School
大阪市立城東中学校まで260m
Park公園  900m to Kanji park
神路公園まで900m
Hospital病院  1100m until Kondo pediatric clinic
近藤小児科クリニックまで1100m
Drug storeドラッグストア  600m until cedar pharmacy Joto Higashinakahama shop
スギ薬局城東東中浜店まで600m
Bank銀行  Osaka credit union 350m until the green Bridge Branch
大阪信用金庫緑橋支店まで350m
Local guide map現地案内図  Local briefing !! (because the weekday of correspondence is also possible, Please contact us by all means once. )
現地説明会開催!!(平日の対応も可能ですので、是非一度お問合せください。)
Otherその他  Model house ・ Entrance door (March 2013 shooting)
モデルハウス・玄関扉(平成25年3月撮影)
 Model house ・ Entrance (March 2013 shooting)
モデルハウス・玄関(平成25年3月撮影)
 Model house ・ Dining (March 2013 shooting)
モデルハウス・ダイニング(平成25年3月撮影)
 Model house ・ Living (March 2013 shooting)
モデルハウス・リビング(平成25年3月撮影)
 Model house ・ Bathroom (March 2013 shooting)
モデルハウス・浴室(平成25年3月撮影)
 Model house ・ Basin (March 2013 shooting)
モデルハウス・洗面(平成25年3月撮影)
 Model house ・ Toilet (March 2013 shooting)
モデルハウス・トイレ(平成25年3月撮影)
You will receive this brochureこんなパンフレットが届きます  You will receive a listing of the concept and a detailed floor plan plan. Now Request!
物件のコンセプトや詳細な間取りプランが届きます。今すぐ資料請求!
Location
|