New Homes » Kansai » Osaka prefecture » Joto-ku


Osaka-shi, Osaka Joto-ku,
JR Tozai Line "Kyobashi" walk 10 minutes
Seismic Grade 3, Ceiling is a special sale furnished two-storey model house of height 2.6m. Spacious three-story new wide frontage was also lineup.
■ In a good location of Kyobashi a 10-minute walk, 30 compartments Big Town ■ Peace of mind, comfortable, Birth stylish new city block
Seller comments
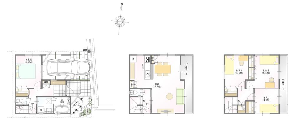
No. 21 place
Local guide map
Local guide map
Features pickup
Measures to conserve energy / Corresponding to the flat-35S / 2 along the line more accessible / Super close / It is close to the city / Bathroom Dryer / All room storage / A quiet residential area / LDK15 tatami mats or more / Corner lot / Shaping land / Face-to-face kitchen / Barrier-free / Bathroom 1 tsubo or more / Double-glazing / Dish washing dryer / Or more ceiling height 2.5m / Water filter
Event information
Model house (Please be sure to ask in advance) schedule / During the public time / 10:00 ~ 19:00 seismic grade 3, Ceiling is a special sale furnished two-storey model house of height 2.6m. Spacious three-story new wide frontage was also lineup.
Property name
Stoke Garden Kyobashi
Price
32.7 million yen ~ 42,800,000 yen
Floor plan
3LDK + S (storeroom) ~ 4LDK
Units sold
3 units
Total units
30 units
Land area
62.66 sq m ・ 80.54 sq m (registration)
Building area
93.95 sq m ・ 109.48 sq m (measured)
Driveway burden-road
Road width: 4.54m, 4.0m asphalt pavement
Completion date
Early August 2013
Address
Osaka-shi, Osaka Joto-ku Shiginonishi 2-13
Traffic
JR Tozai Line "Kyobashi" walk 10 minutes
JR Osaka Loop Line "Castle Park" walk 8 minutes
Subway Imazato muscle line "Shigino" walk 11 minutes
Related links
[Related Sites of this company]
Contact
Local sales center TEL: 0120-31-3255 [Toll free] (mobile phone ・ Also available from PHS. ) Please contact the "saw SUUMO (Sumo)"
Sale schedule
We will sell the model house. furniture ・ lighting equipment ・ In air-conditioned is profitable.
Building coverage, floor area ratio
Kenpei rate: 60%, Volume ratio: 200%
Time residents
Consultation
Land of the right form
Ownership
Structure and method of construction
2-story wooden, Wooden three-story
Use district
Semi-industrial
Land category
Residential land
Other limitations
Regulations have by the Aviation Law, Quasi-fire zones, Shade limit Yes
Overview and notices
Building confirmation number: No. Trust 12-5532, The Trust No. 13-3604, The Trust No. 13-4191
Company profile
<Seller> Minister of Land, Infrastructure and Transport (11) No. 001672 (one company) National Housing Industry Association (Corporation) metropolitan area real estate Fair Trade Council member Showa Housing Corporation Osaka Branch Yubinbango530-0001 Osaka-shi, Osaka, Kita-ku Umeda 1-1-3 Osaka Station third building 10 floors 1020


Local appearance photo

Local appearance photo. Local (August 2013) Shooting
Local (August 2013) Shooting

Kitchen

Kitchen. Open kitchen has to produce a more spread. We have established the cupboard.
Open kitchen has to produce a more spread. We have established the cupboard.

Local photos, including front road

Local photos, including front road. Sale of rare corner lot. Guests experience the light and wind.
Sale of rare corner lot. Guests experience the light and wind.

Living

Living. Trey ceiling will feel the comfort of the ceiling height 2.6m. Pro will be sold with furniture that was coordinated.
Trey ceiling will feel the comfort of the ceiling height 2.6m. Pro will be sold with furniture that was coordinated.

Floor plan

Floor plan. (No. 27 locations), Price 42,800,000 yen, 3LDK+S, Land area 80.54 sq m , Building area 93.95 sq m
(No. 27 locations), Price 42,800,000 yen, 3LDK+S, Land area 80.54 sq m , Building area 93.95 sq m

Rendering (appearance)

Rendering (appearance). We design the appearance timeless tones and white with cleanliness.
We design the appearance timeless tones and white with cleanliness.

Bathroom

Bathroom. In warm bathtub adopted, It kept to a temperature decrease of 2 ℃ in 5 hours.
In warm bathtub adopted, It kept to a temperature decrease of 2 ℃ in 5 hours.

Balcony

Balcony. 2.25m × the roof wide balcony of 3.6m.
2.25m × the roof wide balcony of 3.6m.

Station

station. 800m to JR Kyobashi
800m to JR Kyobashi

Model house photo

Model house photo. 7.5 tatami mat of the main bedroom. It is directly connected to the wide balcony of 2.25m × 3.6m.
7.5 tatami mat of the main bedroom. It is directly connected to the wide balcony of 2.25m × 3.6m.

The entire compartment Figure

The entire compartment Figure. All 30 House Big Town
All 30 House Big Town

Local guide map

Local guide map. JR Kyobashi Station 10-minute walk, JR Shigino ・ Subway Tsurumi-ryokuchi Line Shigino Station walk 11 minutes, JR Osaka Castle Park Station 8 min. Walk.
JR Kyobashi Station 10-minute walk, JR Shigino ・ Subway Tsurumi-ryokuchi Line Shigino Station walk 11 minutes, JR Osaka Castle Park Station 8 min. Walk.

Cityscape Rendering

Cityscape Rendering. While located in the Kyobashi 10 minutes area, 30 compartments Big scale of. There is a scarcity value.
While located in the Kyobashi 10 minutes area, 30 compartments Big scale of. There is a scarcity value.

Access view
Access view

Floor plan

Floor plan. (No. 21 locations), Price 32.7 million yen, 4LDK, Land area 63.92 sq m , Building area 101.04 sq m
(No. 21 locations), Price 32.7 million yen, 4LDK, Land area 63.92 sq m , Building area 101.04 sq m

Local appearance photo

Local appearance photo. Local (August 2013) Shooting
Local (August 2013) Shooting

Primary school

Primary school. Municipal Shigino 300m up to elementary school
Municipal Shigino 300m up to elementary school

Floor plan

Floor plan. (No. 22 locations), Price 36,100,000 yen, 4LDK, Land area 62.66 sq m , Building area 109.48 sq m
(No. 22 locations), Price 36,100,000 yen, 4LDK, Land area 62.66 sq m , Building area 109.48 sq m

Junior high school

Junior high school. City Chengyang until junior high school 650m
City Chengyang until junior high school 650m

Supermarket

Supermarket. Nakagawa up to 350m
Nakagawa up to 350m

Park

park. 300m until Shigino park
300m until Shigino park

park. 700m to Osaka Castle Park
700m to Osaka Castle Park

Other

Other. Rare location rich in life convenience.
Rare location rich in life convenience.

Other. comfortable, Convenient good location.
comfortable, Convenient good location.



Location