|
|
Osaka-shi, Osaka Joto-ku,
大阪府大阪市城東区
|
|
JR katamachi line "Shigino" walk 7 minutes
JR片町線「鴫野」歩7分
|
|
2 along the line more accessible, Facing south, Starting station, All room storageese-style room, Toilet 2 places, 2-story, South balcony
2沿線以上利用可、南向き、始発駅、全居室収納、和室、トイレ2ヶ所、2階建、南面バルコニー
|
|
2 along the line more accessible, Facing south, Starting station, All room storageese-style room, Toilet 2 places, 2-story, South balcony
2沿線以上利用可、南向き、始発駅、全居室収納、和室、トイレ2ヶ所、2階建、南面バルコニー
|
Features pickup 特徴ピックアップ | | 2 along the line more accessible / Facing south / All room storage / Japanese-style room / Starting station / Toilet 2 places / 2-story / South balcony 2沿線以上利用可 /南向き /全居室収納 /和室 /始発駅 /トイレ2ヶ所 /2階建 /南面バルコニー |
Event information イベント情報 | | Local tours (Please be sure to ask in advance) schedule / Now open 現地見学会(事前に必ずお問い合わせください)日程/公開中 |
Price 価格 | | 30,800,000 yen 3080万円 |
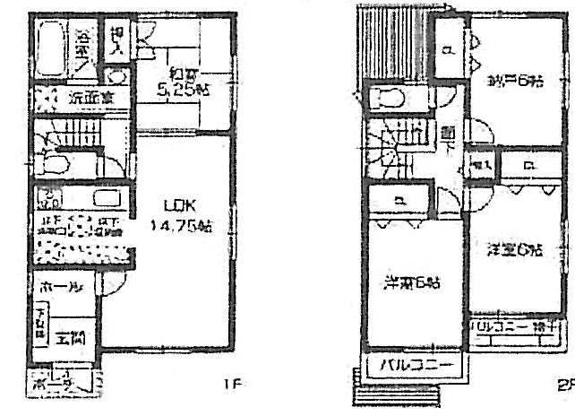
Floor plan 間取り | | 4LDK 4LDK |
Units sold 販売戸数 | | 1 units 1戸 |
Land area 土地面積 | | 112.32 sq m (33.97 tsubo) (measured) 112.32m2(33.97坪)(実測) |
Building area 建物面積 | | 92.34 sq m (27.93 tsubo) (measured) 92.34m2(27.93坪)(実測) |
Driveway burden-road 私道負担・道路 | | Nothing 無 |
Completion date 完成時期(築年月) | | October 2013 2013年10月 |
Address 住所 | | Osaka-shi, Osaka Joto-ku Shigitahigashi 1 大阪府大阪市城東区新喜多東1 |
Traffic 交通 | | JR katamachi line "Shigino" walk 7 minutes Subway Nagahori Tsurumi-ryokuchi Line "Gamo Yonchome" walk 8 minutes JR Osaka Loop Line "Kyobashi" walk 15 minutes JR片町線「鴫野」歩7分 地下鉄長堀鶴見緑地線「蒲生四丁目」歩8分 JR大阪環状線「京橋」歩15分
|
Related links 関連リンク | | [Related Sites of this company] 【この会社の関連サイト】 |
Contact お問い合せ先 | | (Ltd.) lifestyle TEL: 0120-239800 [Toll free] Please contact the "saw SUUMO (Sumo)" (株)ライフスタイルTEL:0120-239800【通話料無料】「SUUMO(スーモ)を見た」と問い合わせください |
Building coverage, floor area ratio 建ぺい率・容積率 | | 60% ・ 200% 60%・200% |
Time residents 入居時期 | | Consultation 相談 |
Land of the right form 土地の権利形態 | | Ownership 所有権 |
Structure and method of construction 構造・工法 | | Wooden three-story (framing method) 木造3階建(軸組工法) |
Overview and notices その他概要・特記事項 | | Facilities: Public Water Supply, This sewage, City gas, Building confirmation number: No. Trust 13-1391, Parking: Garage 設備:公営水道、本下水、都市ガス、建築確認番号:第トラスト13-1391号、駐車場:車庫 |
Company profile 会社概要 | | <Mediation> governor of Osaka (2) No. 053137 (Ltd.) lifestyle Yubinbango571-0030 Osaka Prefecture Kadoma Suehiro-cho, 10-6 <仲介>大阪府知事(2)第053137号(株)ライフスタイル〒571-0030 大阪府門真市末広町10-6 |