New Homes » Kansai » Osaka prefecture » Konohana Ward


Osaka-shi, Osaka Konohana Ward
Hanshin Namba Line "staggered Bridge" walk 12 minutes
Features pickup
Immediate Available / 2 along the line more accessible / Bathroom Dryer / All room storage / Face-to-face kitchen / Toilet 2 places / Double-glazing / The window in the bathroom / All living room flooring / Dish washing dryer / Three-story or more / City gas / Floor heating
Price
26,800,000 yen
Floor plan
4LDK
Units sold
1 units
Land area
56.18 sq m
Building area
102.47 sq m
Driveway burden-road
Nothing, North 5.3m width
Completion date
August 2013
Address
Osaka-shi, Osaka Konohana Ward Kasugadekita 2
Traffic
Hanshin Namba Line "staggered Bridge" walk 12 minutes
Hanshin Namba Line "bullying" walk 13 minutes
Related links
[Related Sites of this company]
Contact
(Ltd.) YumeSo housing TEL: 0800-603-7943 [Toll free] mobile phone ・ Also available from PHS
Caller ID is not notified
Please contact the "saw SUUMO (Sumo)"
If it does not lead, If the real estate company
Building coverage, floor area ratio
80% ・ 200%
Time residents
Immediate available
Land of the right form
Ownership
Structure and method of construction
Wooden three-story
Use district
One dwelling
Overview and notices
Parking: Car Port
Company profile
<Marketing alliance (mediated)> governor of Osaka (2) No. 053187 (Ltd.) YumeSo housing Yubinbango550-0002 Osaka-shi, Osaka, Nishi-ku, Edobori 2-1-1 Edobori Center Building, 13th floor


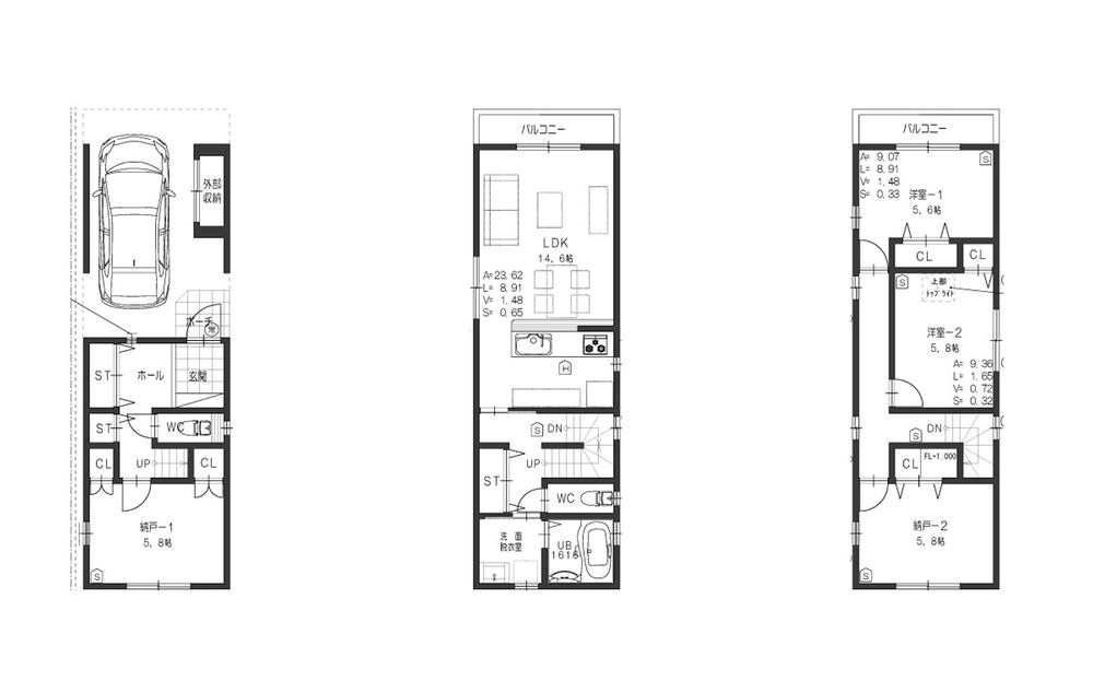
Floor plan

Floor plan. 26,800,000 yen, 4LDK, Land area 56.18 sq m , Building area 102.47 sq m floor plan
26,800,000 yen, 4LDK, Land area 56.18 sq m , Building area 102.47 sq m floor plan



Location