New Homes » Kansai » Osaka prefecture » Nishi-ku
 
| | Osaka-shi, Osaka, Nishi-ku, 大阪府大阪市西区 |
| Subway Chuo Line "Kujo" walk 8 minutes 地下鉄中央線「九条」歩8分 |
| ◆ ◆ Garage House to co-living and hobby ◆ ◆ ◆◆趣味と共住するガレージハウス◆◆ |
| ● garage shutter of peace of mind ... umbrella No need for a rainy day because the Add to be directly home from the garage. ● in the depths of the secret base ?? garage of adult Doma, Big success as a hobby room. ● a good day of weather is at home in the inner terrace. ● It is both sides of the building is bright because the road brighter at the top light to capture the nature of light. ● There is just fine in the kitchen. Storage is abundant. ●安心のシャッター付きガレージ…このガレージからも直接お家へ入れるので雨の日も傘いらず。●オトナの秘密基地??ガレージの奥には土間、ホビールームとして大活躍。●お天気の良い日はインナーテラスでくつろいで。●建物の両面が道路なので明るいです自然の光を取り込むトップライトで更に明るく。●キッチンにもちゃんとあります。収納豊富です。 |
Features pickup 特徴ピックアップ | | LDK18 tatami mats or more / System kitchen / Face-to-face kitchen / Shutter - garage / Toilet 2 places / Warm water washing toilet seat / TV monitor interphone / City gas / Storeroom / terrace LDK18畳以上 /システムキッチン /対面式キッチン /シャッタ-車庫 /トイレ2ヶ所 /温水洗浄便座 /TVモニタ付インターホン /都市ガス /納戸 /テラス | Price 価格 | | 37,800,000 yen 3780万円 | Floor plan 間取り | | 3LDK + S (storeroom) 3LDK+S(納戸) | Units sold 販売戸数 | | 1 units 1戸 | Land area 土地面積 | | 67.29 sq m (20.35 square meters) 67.29m2(20.35坪) | Building area 建物面積 | | 101.87 sq m (30.81 square meters) 101.87m2(30.81坪) | Driveway burden-road 私道負担・道路 | | Nothing 無 | Completion date 完成時期(築年月) | | November 2013 2013年11月 | Address 住所 | | Osaka-shi, Osaka, Nishi-ku, Honda 4-10-7 大阪府大阪市西区本田4-10-7 | Traffic 交通 | | Subway Chuo Line "Kujo" walk 8 minutes Hanshin Namba Line "Nishikujo" walk 11 minutes Subway Nagahori Tsurumi-ryokuchi Line "dome before Chiyozaki" walk 16 minutes 地下鉄中央線「九条」歩8分 阪神なんば線「西九条」歩11分 地下鉄長堀鶴見緑地線「ドーム前千代崎」歩16分
| Related links 関連リンク | | [Related Sites of this company] 【この会社の関連サイト】 | Person in charge 担当者より | | Rep Muraishi Eri Age: As you think that it was good to come to the 30's K's Home, Wholeheartedly welcomes you. 担当者村石 恵理年齢:30代ケーズホームに来て良かったと思っていただけるよう、心をこめてお客様をお迎えいたします。 | Contact お問い合せ先 | | TEL: 0800-603-9391 [Toll free] mobile phone ・ Also available from PHS Caller ID is not notified Please contact the "saw SUUMO (Sumo)" If it does not lead, If the real estate company TEL:0800-603-9391【通話料無料】携帯電話・PHSからもご利用いただけます 発信者番号は通知されません 「SUUMO(スーモ)を見た」と問い合わせください つながらない方、不動産会社の方は
| Building coverage, floor area ratio 建ぺい率・容積率 | | 80% ・ 400% 80%・400% | Time residents 入居時期 | | Consultation 相談 | Land of the right form 土地の権利形態 | | Ownership 所有権 | Structure and method of construction 構造・工法 | | Wooden three-story 木造3階建 | Use district 用途地域 | | Commerce 商業 | Other limitations その他制限事項 | | Quasi-fire zones 準防火地域 | Overview and notices その他概要・特記事項 | | Contact: Muraishi Eri, Facilities: Public Water Supply, This sewage, City gas, Building confirmation number: No. HK13-0345, Parking: Garage 担当者:村石 恵理、設備:公営水道、本下水、都市ガス、建築確認番号:HK13-0345号、駐車場:車庫 | Company profile 会社概要 | | <Mediation> governor of Osaka Prefecture (1) No. 054552 Century 21 (Ltd.) K's home Yubinbango538-0053 Osaka-shi, Osaka Tsurumi-ku Tsurumi 5-1-10 <仲介>大阪府知事(1)第054552号センチュリー21(株)ケーズホーム〒538-0053 大阪府大阪市鶴見区鶴見5-1-10 |
 Living
リビング
 Local appearance photo
現地外観写真
 Bathroom
浴室
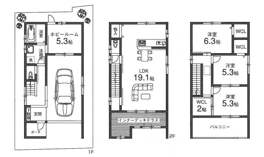
Floor plan間取り図  37,800,000 yen, 3LDK + S (storeroom), Land area 67.29 sq m , Building area 101.87 sq m
3780万円、3LDK+S(納戸)、土地面積67.29m2、建物面積101.87m2
 Local appearance photo
現地外観写真
 Kitchen
キッチン
 Balcony
バルコニー
Shopping centreショッピングセンター  Shopping street that begins from where it past the 625m Kujo Station to Nine Mall shopping street. There is a lively!
ナインモール商店街まで625m 九条駅を過ぎたところから始まる商店街。活気があります!
 Straight walk about 4 minutes from the 522m house to Killala Kujo shopping street, It is followed by mall to Kujo Station.
キララ九条商店街まで522m お家からまっすぐ徒歩約4分、九条駅まで続く商店街です。
Kindergarten ・ Nursery幼稚園・保育園  435m to Osaka Municipal Kujo kindergarten
大阪市立九条幼稚園まで435m
Post office郵便局  228m to Osaka Minami Ajigawa post office
大阪南安治川郵便局まで228m
Park公園  426m until Kujohigashi park
九条東公園まで426m
Primary school小学校  1194m to Osaka Municipal Honda Elementary School
大阪市立本田小学校まで1194m
Junior high school中学校  2127m to Osaka Tachibana Suginoi junior high school
大阪市立花乃井中学校まで2127m
Location
|