New Homes » Kansai » Osaka prefecture » Nishiyodogawa
 
| | Osaka-shi, Osaka Nishiyodogawa 大阪府大阪市西淀川区 |
| Hanshin "Himejima" walk 5 minutes 阪神本線「姫島」歩5分 |
| With rooftop garden! Hanshin Himejima Station A 5-minute walk of the good location! It is convenient living facilities has been enhanced. 屋上庭園付き!阪神本線 姫島駅 徒歩5分の好立地!生活施設が充実しており便利です。 |
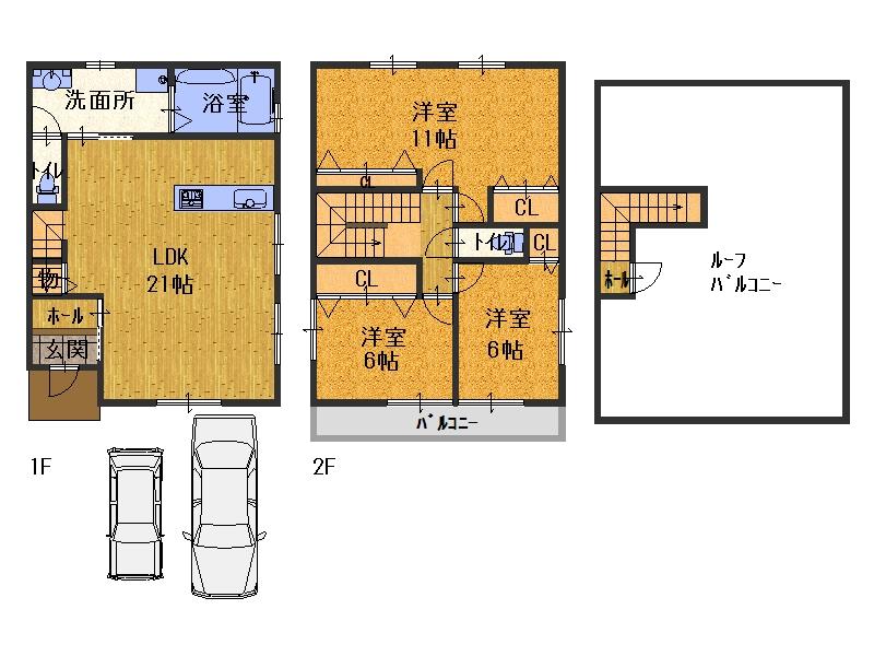
Features pickup 特徴ピックアップ | | Parking two Allowed / 2 along the line more accessible / LDK18 tatami mats or more / Super close / It is close to the city / Yang per good / All room storage / Flat to the station / 2-story / All rooms are two-sided lighting / roof balcony 駐車2台可 /2沿線以上利用可 /LDK18畳以上 /スーパーが近い /市街地が近い /陽当り良好 /全居室収納 /駅まで平坦 /2階建 /全室2面採光 /ルーフバルコニー | Price 価格 | | 26,800,000 yen 2680万円 | Floor plan 間取り | | 4LDK 4LDK | Units sold 販売戸数 | | 1 units 1戸 | Land area 土地面積 | | 112.67 sq m (registration) 112.67m2(登記) | Building area 建物面積 | | 90 sq m 90m2 | Driveway burden-road 私道負担・道路 | | Nothing, East 4m width 無、東4m幅 | Completion date 完成時期(築年月) | | December 2013 2013年12月 | Address 住所 | | Osaka-shi, Osaka Nishiyodogawa Himejima 1 大阪府大阪市西淀川区姫島1 | Traffic 交通 | | Hanshin "Himejima" walk 5 minutes JR Tozai Line "Mitejima" walk 17 minutes Hanshin Namba Line "Fuku" walk 18 minutes 阪神本線「姫島」歩5分 JR東西線「御幣島」歩17分 阪神なんば線「福」歩18分
| Related links 関連リンク | | [Related Sites of this company] 【この会社の関連サイト】 | Contact お問い合せ先 | | (Corporation) Shinsei realistic Estate TEL: 0800-602-4933 [Toll free] mobile phone ・ Also available from PHS Caller ID is not notified Please contact the "saw SUUMO (Sumo)" If it does not lead, If the real estate company (株)新生リアルエステートTEL:0800-602-4933【通話料無料】携帯電話・PHSからもご利用いただけます 発信者番号は通知されません 「SUUMO(スーモ)を見た」と問い合わせください つながらない方、不動産会社の方は
| Building coverage, floor area ratio 建ぺい率・容積率 | | 80% ・ 200% 80%・200% | Time residents 入居時期 | | Three months after the contract 契約後3ヶ月 | Land of the right form 土地の権利形態 | | Ownership 所有権 | Structure and method of construction 構造・工法 | | Wooden 2-story 木造2階建 | Use district 用途地域 | | One dwelling 1種住居 | Other limitations その他制限事項 | | Quasi-fire zones 準防火地域 | Overview and notices その他概要・特記事項 | | Facilities: Public Water Supply, This sewage, City gas, Building confirmation number: No., Parking: Garage 設備:公営水道、本下水、都市ガス、建築確認番号:第、駐車場:車庫 | Company profile 会社概要 | | <Seller> governor of Osaka Prefecture (1) No. 055134 (Corporation) Shinsei realistic Estate Yubinbango532-0026 Yodogawa Tsukamoto Osaka-shi, Osaka 2-2-23 <売主>大阪府知事(1)第055134号(株)新生リアルエステート〒532-0026 大阪府大阪市淀川区塚本2-2-23 |
Floor plan間取り図  26,800,000 yen, 4LDK, Land area 112.67 sq m , Building area 90 sq m
2680万円、4LDK、土地面積112.67m2、建物面積90m2
Other localその他現地  kindergarten
幼稚園
 Primary school
小学校
Shopping centreショッピングセンター  Across Plaza until Chifune 849m
アクロスプラザ千舟まで849m
Other localその他現地  Junior high school
中学校
Home centerホームセンター  1605m until EDION Mitejima shop
エディオンみてじま店まで1605m
Other localその他現地  Government office
役所
Kindergarten ・ Nursery幼稚園・保育園  108m to Osaka Municipal Himejima kindergarten
大阪市立姫島幼稚園まで108m
Other localその他現地  station
駅
Kindergarten ・ Nursery幼稚園・保育園  Himejima 826m to the south nursery school
姫島南保育園まで826m
Hospital病院  Noka 793m to the hospital
苗加病院まで793m
Government office役所  1215m to Osaka City Nishiyodogawa ward office
大阪市西淀川区役所まで1215m
Park公園  Until Nishiyodo park 904m
西淀公園まで904m
Location
|