New Homes » Kansai » Osaka prefecture » Nishiyodogawa


Osaka-shi, Osaka Nishiyodogawa
Hanshin Namba Line "Fuku" walk 13 minutes
Himejima 4-chome 2-story room in the city Land and buildings set reference price 32,850,000 yen
■ Before eyes are Ono promenade! ! ■ Two-way interview road sunlight from the south is plenty of ■ Land with 27 square meters! !
Features pickup
2 along the line more accessible / Super close / It is close to the city / Yang per good / Flat to the station / Siemens south road / A quiet residential area / Or more before road 6m / Leafy residential area / City gas / Maintained sidewalk / Flat terrain
Price
17,970,000 yen
Building coverage, floor area ratio
Kenpei rate: 80%, Volume ratio: 200% (first-class residential area)
Sales compartment
1 compartment
Total number of compartments
1 compartment
Land area
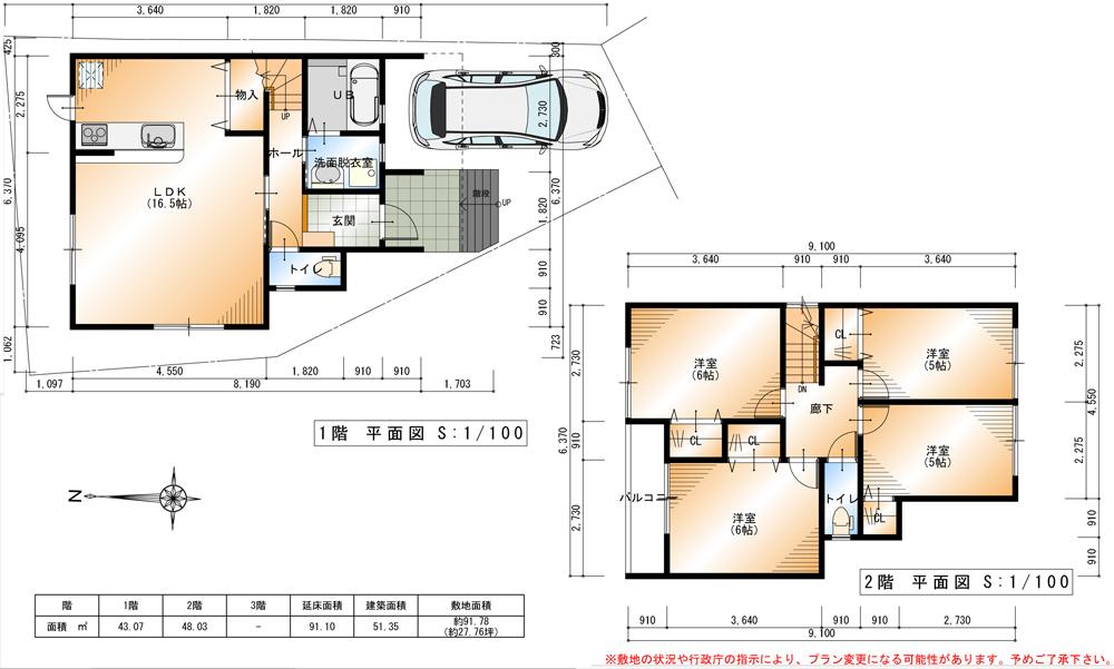
91.78 sq m (27.76 tsubo) (Registration)
Driveway burden-road
Road width: 3.2m ~ 8m, Asphaltic pavement, To Seddo to two-way of the southeast and southwest
Land situation
Vacant lot
Address
Osaka-shi, Osaka Nishiyodogawa Himejima 4-22-21
Traffic
Hanshin Namba Line "Fuku" walk 13 minutes
Hanshin "Himejima" walk 13 minutes
JR Tozai Line "Mitejima" walk 17 minutes
Related links
[Related Sites of this company]
Contact
Sun house (Ltd.) TEL: 0800-600-8106 [Toll free] mobile phone ・ Also available from PHS
Caller ID is not notified
Please contact the "saw SUUMO (Sumo)"
If it does not lead, If the real estate company
Land of the right form
Ownership
Building condition
With
Time delivery
Consultation
Land category
Residential land
Use district
One dwelling
Other limitations
Regulations have by the Aviation Law, Quasi-fire zones
Overview and notices
Facilities: Public Water Supply, This sewage, City gas
Company profile
<Seller> governor of Osaka Prefecture (5) Article 042565 No. sun house (Ltd.) Yubinbango550-0027 Osaka-shi, Osaka, Nishi-ku, Kujo 2-14-16


Local land photo

Local land photo. December 2013 local shooting
December 2013 local shooting

Building plan example (Perth ・ appearance)

Building plan example (Perth ・ appearance). Building plan example Building price 14,880,000 yen Building area 91.10 sq m
Building plan example Building price 14,880,000 yen Building area 91.10 sq m

Building plan example (Perth ・ Introspection)

Building plan example (Perth ・ Introspection). Building plan example Building price 14,880,000 yen Building area 91.10 sq m
Building plan example Building price 14,880,000 yen Building area 91.10 sq m

Local land photo

Local land photo. December 2013 local shooting
December 2013 local shooting

Local photos, including front road

Local photos, including front road. December 2013 local shooting
December 2013 local shooting

Other building plan example

Other building plan example. Solar housing construction cases (kitchen)
Solar housing construction cases (kitchen)

Station

station. Hanshin Electric Railway main line 830m Hanshin Electric Railway main line to Himejima Station Himejima Station
Hanshin Electric Railway main line 830m Hanshin Electric Railway main line to Himejima Station Himejima Station

The entire compartment Figure

The entire compartment Figure. Himejima 4-chome All one compartment
Himejima 4-chome All one compartment

Local guide map

Local guide map. Himejima 4-chome Information map
Himejima 4-chome Information map

Streets around

Streets around. Ono 10m Ono promenade to promenade
Ono 10m Ono promenade to promenade

Other

Other. Solar housing construction cases (housing facilities)
Solar housing construction cases (housing facilities)

Local photos, including front road

Local photos, including front road. December 2013 local shooting
December 2013 local shooting

Building plan example (Perth ・ appearance)

Building plan example (Perth ・ appearance). Solar housing construction cases (kitchen)
Solar housing construction cases (kitchen)

Park

park. Himejima 320m Himejima park to the park
Himejima 320m Himejima park to the park

Local guide map

Local guide map. Solar housing headquarters location map
Solar housing headquarters location map

Other

Other. Solar housing construction cases (housing facilities)
Solar housing construction cases (housing facilities)

Other building plan example

Other building plan example. Solar housing construction cases (kitchen)
Solar housing construction cases (kitchen)

Shopping centre

Shopping centre. 180m Kansai Super until Kansai Super Owada store Owada store
180m Kansai Super until Kansai Super Owada store Owada store

Other

Other. Solar housing construction cases (housing facilities)
Solar housing construction cases (housing facilities)

Building plan example (introspection photo)

Building plan example (introspection photo). Solar housing construction cases (kitchen)
Solar housing construction cases (kitchen)

Drug store

Drug store. Cedar pharmacy 40m cedar pharmacy to Himejima shop Himejima shop
Cedar pharmacy 40m cedar pharmacy to Himejima shop Himejima shop



Location