New Homes » Kansai » Osaka prefecture » Suminoe-ku


Osaka-shi, Osaka Suminoe-ku,
Nankai Main Line "Kohama" walk 2 minutes
LDK15 tatami mats or more, Face-to-face kitchen, Toilet 2 places, South balcony, Warm water washing toilet seat, City gas
LDK15 tatami mats or more, Face-to-face kitchen, Toilet 2 places, South balcony, Warm water washing toilet seat, City gas
Features pickup
LDK15 tatami mats or more / Face-to-face kitchen / Toilet 2 places / South balcony / Warm water washing toilet seat / City gas
Price
29,800,000 yen
Floor plan
4LDK
Units sold
1 units
Land area
63.09 sq m (19.08 tsubo) (Registration)
Building area
98.82 sq m (29.89 tsubo) (Registration)
Driveway burden-road
Nothing
Completion date
October 2013
Address
Osaka-shi, Osaka Suminoe-ku, Kohama 1
Traffic
Nankai Main Line "Kohama" walk 2 minutes
Subway Yotsubashi Line "Tamade" walk 8 minutes
Hankai Line "Higashikohama" walk 8 minutes
Related links
[Related Sites of this company]
Contact
Backup (Ltd.) TEL: 0800-603-9860 [Toll free] mobile phone ・ Also available from PHS
Caller ID is not notified
Please contact the "saw SUUMO (Sumo)"
If it does not lead, If the real estate company
Time residents
Immediate available
Land of the right form
Ownership
Structure and method of construction
Wooden three-story
Overview and notices
Facilities: Public Water Supply, This sewage, City gas, Building confirmation number: kkk-45-3314, Parking: Garage
Company profile
<Mediation> governor of Osaka (2) No. 052713 backup Co. Yubinbango530-0043 Tenma Osaka-shi, Osaka, Kita-ku, 2-2-21


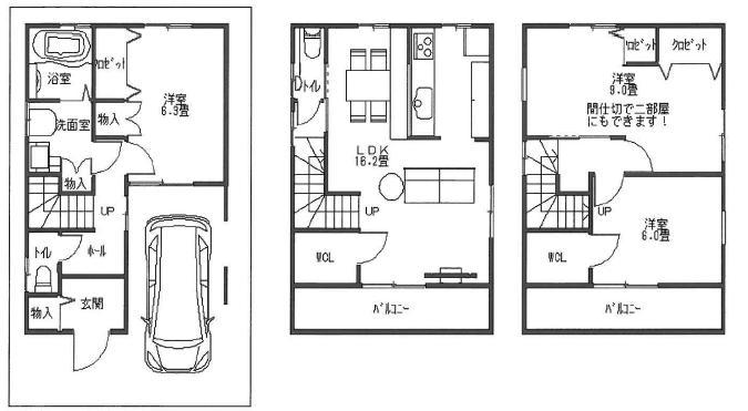
Floor plan

Floor plan. 29,800,000 yen, 4LDK, Land area 63.09 sq m , Building area 98.82 sq m
29,800,000 yen, 4LDK, Land area 63.09 sq m , Building area 98.82 sq m

Other
Other

Local appearance photo

Local appearance photo. Local (06 May 2013) Shooting
Local (06 May 2013) Shooting

Local appearance photo. Local (06 May 2013) Shooting
Local (06 May 2013) Shooting

Local appearance photo. Local (06 May 2013) Shooting
Local (06 May 2013) Shooting



Location