New Homes » Kansai » Osaka prefecture » Suminoe-ku
 
| | Osaka-shi, Osaka Suminoe-ku, 大阪府大阪市住之江区 |
| Subway Yotsubashi Line "Kitakagaya" walk 15 minutes 地下鉄四つ橋線「北加賀屋」歩15分 |
| Parking two possible new construction single-family, 2-story with land 28.9 pyeong was imposing completed. Since your guide can immediately First of all please feel free to contact us. 駐車2台可能な新築一戸建て、土地28.9坪付きの2階建てが堂々完成しました。ご案内はすぐ出来ますので先ずはお気軽にお問い合わせ下さい。 |
Features pickup 特徴ピックアップ | | Parking two Allowed / System kitchen / 2-story / Ventilation good / City gas 駐車2台可 /システムキッチン /2階建 /通風良好 /都市ガス | Price 価格 | | 25,500,000 yen 2550万円 | Floor plan 間取り | | 4LDK 4LDK | Units sold 販売戸数 | | 1 units 1戸 | Land area 土地面積 | | 95.66 sq m (registration) 95.66m2(登記) | Building area 建物面積 | | 95.57 sq m (registration) 95.57m2(登記) | Driveway burden-road 私道負担・道路 | | Nothing 無 | Completion date 完成時期(築年月) | | October 2013 2013年10月 | Address 住所 | | Osaka-shi, Osaka Suminoe-ku, Shibatani 2 大阪府大阪市住之江区柴谷2 | Traffic 交通 | | Subway Yotsubashi Line "Kitakagaya" walk 15 minutes 地下鉄四つ橋線「北加賀屋」歩15分
| Contact お問い合せ先 | | Backup (Ltd.) TEL: 0800-603-9860 [Toll free] mobile phone ・ Also available from PHS Caller ID is not notified Please contact the "saw SUUMO (Sumo)" If it does not lead, If the real estate company バックアップ(株)TEL:0800-603-9860【通話料無料】携帯電話・PHSからもご利用いただけます 発信者番号は通知されません 「SUUMO(スーモ)を見た」と問い合わせください つながらない方、不動産会社の方は
| Building coverage, floor area ratio 建ぺい率・容積率 | | 60% ・ 200% 60%・200% | Time residents 入居時期 | | Immediate available 即入居可 | Land of the right form 土地の権利形態 | | Ownership 所有権 | Structure and method of construction 構造・工法 | | Wooden 2-story 木造2階建 | Other limitations その他制限事項 | | Quasi-fire zones 準防火地域 | Overview and notices その他概要・特記事項 | | Parking: Garage 駐車場:車庫 | Company profile 会社概要 | | <Mediation> governor of Osaka (2) No. 052713 backup Co. Yubinbango530-0043 Tenma Osaka-shi, Osaka, Kita-ku, 2-2-21 <仲介>大阪府知事(2)第052713号バックアップ(株)〒530-0043 大阪府大阪市北区天満2-2-21 |
Local appearance photo現地外観写真  2-story newly built single-family Imposing completed! You can same day guidance.
2階建て新築一戸建て 堂々完成!即日ご案内できます。
Local photos, including front road前面道路含む現地写真  This price certainly once please check on the second floor stand in Osaka city.
大阪市内で2階立てでこのお値段是非一度ご確認下さい。
Kitchenキッチン  This may be a bright open kitchen counter.
オープンカウンターキッチン明るくて良いですよ。
Livingリビング  It is safe can have small children because the living room overlooking from the kitchen
キッチンからリビングが見渡せるので小さなお子様がいても安心ですね
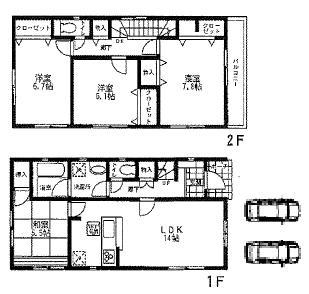
Floor plan間取り図  25,500,000 yen, 4LDK, Land area 95.66 sq m , Newly built single-family building area 95.57 sq m already completed, Please check all means once.
2550万円、4LDK、土地面積95.66m2、建物面積95.57m2 完成済みの新築一戸建て、是非一度ご確認下さい。
 Local appearance photo
現地外観写真
Bathroom浴室  Also comes with the bath bathroom dry easy-to-use
使い勝手の良いお風呂浴室乾燥もついていますよ
Non-living roomリビング以外の居室  Bright spacious Western-style 7.8 Pledge
明るい広々洋室7.8帖
Wash basin, toilet洗面台・洗面所  This basin.
洗面です。
Receipt収納  It is a shoebox. There is also a small window.
下駄箱です。小窓もあります。
Toiletトイレ  With Washlet function.
ウオシュレット機能付き。
 Balcony
バルコニー
 Other
その他
Bathroom浴室  It is spacious bathroom.
ゆったり浴室です。
Non-living roomリビング以外の居室  Is Ryukyu tatami Japanese-style
琉球畳の和室です
Receipt収納  It is there and glad stairs under storage.
あると嬉しい階段下収納です。
 Other
その他
Bathroom浴室  Bathroom Dryer, There are many yesterday.
浴室乾燥、いろいろ昨日あります。
Otherその他  Entrance automatic sensor light
玄関自動センサーライト
 Footlights
フットライト
 Color intercom
カラーインターフォン
Location
|