New Homes » Kansai » Osaka prefecture » Suminoe-ku


Osaka-shi, Osaka Suminoe-ku,
Nankai Main Line "Suminoe" walk 5 minutes
Large corner lot with frontage. South Ventilation from the west face, Lighting is also rich.
■ Is a corner lot. ■ Frontage is wide. ■ South is facing. ■ In a quiet residential area, Shopping is also convenient. ■ Walk up to Suminoe Station 4 minutes
Features pickup
Pre-ground survey / 2 along the line more accessible / Super close / It is close to the city / Yang per good / Siemens south road / A quiet residential area / Around traffic fewer / Or more before road 6m / Corner lot / Shaping land / City gas / Flat terrain
Price
16,050,000 yen
Building coverage, floor area ratio
70% ・ 200%
Sales compartment
1 compartment
Total number of compartments
4 compartments
Land area
55.4 sq m (registration)
Driveway burden-road
Nothing, South 6m width (contact the road width 8.1m), West 4m width (contact the road width 6.9m)
Land situation
Vacant lot
Address
Osaka-shi, Osaka Suminoe-ku, Suminoe 2-5 No.
Traffic
Nankai Main Line "Suminoe" walk 5 minutes
Hankai Line "Abiko road" walking 5 minutes
Person in charge
[Regarding this property.] Southwest of the corner lot. South Widely lighting has frontage on both the west face, Ventilation is rich.
Contact
Baba House Industry (Inc.) TEL: 0800-808-7178 [Toll free] mobile phone ・ Also available from PHS
Caller ID is not notified
Please contact the "saw SUUMO (Sumo)"
If it does not lead, If the real estate company
Land of the right form
Ownership
Building condition
With
Time delivery
Immediate delivery allowed
Land category
Residential land
Use district
Two mid-high
Other limitations
Set-back: already
Overview and notices
Facilities: Public Water Supply, This sewage, City gas
Company profile
<Seller> governor of Osaka (2) Baba House Industry Co., Ltd. Yubinbango558-0022 Osaka Sumiyoshi-ku, No. 053144 Sugimoto 1-2-4


Building plan example (Perth ・ appearance)

Building plan example (Perth ・ appearance). Building plan example (A No. land) Building price 15,750,000 yen Building area 102.07 sq m
Building plan example (A No. land) Building price 15,750,000 yen Building area 102.07 sq m

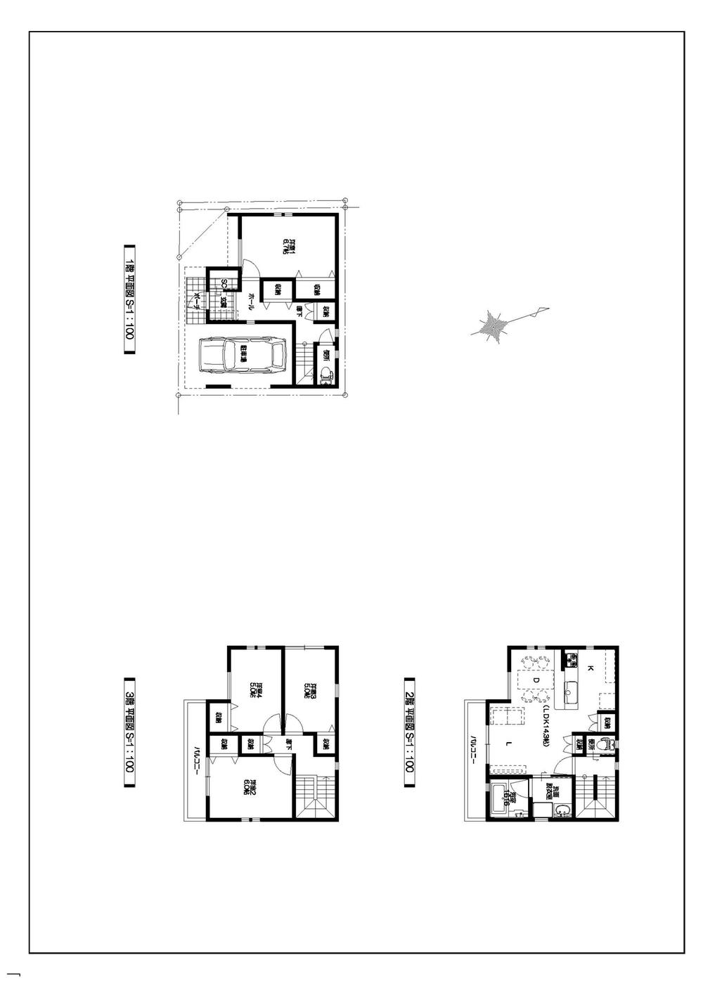
Building plan example (floor plan)

Building plan example (floor plan). Building plan example (A No. land) Building price 15,750,000 yen Building area 102.07 sq m
Building plan example (A No. land) Building price 15,750,000 yen Building area 102.07 sq m



Location