|
|
Osaka-shi, Osaka Taisho Ward
大阪府大阪市大正区
|
|
Subway Nagahori Tsurumi-ryokuchi Line "Taisho" walk 3 minutes
地下鉄長堀鶴見緑地線「大正」歩3分
|
|
Within 5 minutes from each line "Taisho Station". Since the station proximity, Also has very substantial surrounding facilities. There are parking two parking possible issue areas. Designer houses all mansion free design
各線「大正駅」から5分圏内。駅近なので、周辺施設も大変充実しています。駐車場2台駐車可能号地あります。デザイナーズ住宅が全邸自由設計
|
|
Close to Taisho Station, Access to each district is also very convenient location. Around is very rich, There is nothing to trouble in the living area. The building itself also has a commitment to the appearance and equipment, etc., While a designer house, Listen to your voice is both to create up to go free design of the property. Nearby there is also a "Kyocera Dome", There is also also spread to enjoy the holiday various events.
大正駅に近く、各方面へのアクセスも大変便利な立地。周辺はとても充実しており、生活圏内で困るものはありません。建物自体は外観や設備等にもこだわりを持ち、デザイナーズ住宅でありながら、お客様の声を聞き共に創り上げていく自由設計の物件です。近隣には「京セラドーム」もあり、色々なイベントもあり休日の楽しみ方も広がります。
|
Features pickup 特徴ピックアップ | | Corresponding to the flat-35S / Year Available / Parking two Allowed / 2 along the line more accessible / LDK20 tatami mats or more / Super close / It is close to the city / Facing south / System kitchen / Bathroom Dryer / All room storage / Flat to the station / Siemens south road / Mist sauna / Washbasin with shower / Face-to-face kitchen / Security enhancement / Toilet 2 places / Bathroom 1 tsubo or more / 2 or more sides balcony / South balcony / Double-glazing / Otobasu / Warm water washing toilet seat / TV with bathroom / The window in the bathroom / TV monitor interphone / All living room flooring / Dish washing dryer / Walk-in closet / Water filter / Three-story or more / City gas / roof balcony / Attic storage / Floor heating フラット35Sに対応 /年内入居可 /駐車2台可 /2沿線以上利用可 /LDK20畳以上 /スーパーが近い /市街地が近い /南向き /システムキッチン /浴室乾燥機 /全居室収納 /駅まで平坦 /南側道路面す /ミストサウナ /シャワー付洗面台 /対面式キッチン /セキュリティ充実 /トイレ2ヶ所 /浴室1坪以上 /2面以上バルコニー /南面バルコニー /複層ガラス /オートバス /温水洗浄便座 /TV付浴室 /浴室に窓 /TVモニタ付インターホン /全居室フローリング /食器洗乾燥機 /ウォークインクロゼット /浄水器 /3階建以上 /都市ガス /ルーフバルコニー /屋根裏収納 /床暖房 |
Event information イベント情報 | | Model house (Please be sure to ask in advance) schedule / Now open モデルハウス(事前に必ずお問い合わせください)日程/公開中 |
Price 価格 | | 32,800,000 yen ~ 38,600,000 yen 3280万円 ~ 3860万円 |
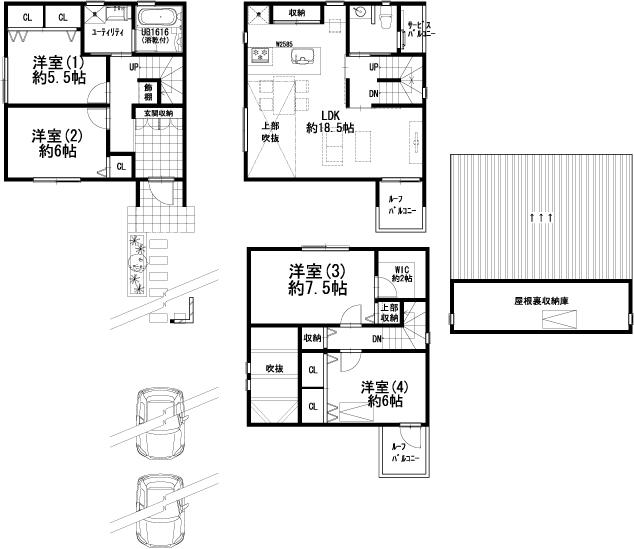
Floor plan 間取り | | 4LDK 4LDK |
Units sold 販売戸数 | | 5 units 5戸 |
Total units 総戸数 | | 5 units 5戸 |
Land area 土地面積 | | 59.22 sq m ~ 102.46 sq m (17.91 tsubo ~ 30.99 square meters) 59.22m2 ~ 102.46m2(17.91坪 ~ 30.99坪) |
Building area 建物面積 | | 108.01 sq m ~ 119.26 sq m (32.67 tsubo ~ 36.07 square meters) 108.01m2 ~ 119.26m2(32.67坪 ~ 36.07坪) |
Driveway burden-road 私道負担・道路 | | Road width: 4m, Asphaltic pavement 道路幅:4m、アスファルト舗装 |
Completion date 完成時期(築年月) | | 6 months after the contract 契約後6ヶ月 |
Address 住所 | | Osaka-shi, Osaka Taisho Ward Sangen'yanishi 1 大阪府大阪市大正区三軒家西1 |
Traffic 交通 | | Subway Nagahori Tsurumi-ryokuchi Line "Taisho" walk 3 minutes JR Osaka Loop Line "Taisho" walk 4 minutes Hanshin Namba Line "before the dome" walk 9 minutes 地下鉄長堀鶴見緑地線「大正」歩3分 JR大阪環状線「大正」歩4分 阪神なんば線「ドーム前」歩9分
|
Related links 関連リンク | | [Related Sites of this company] 【この会社の関連サイト】 |
Person in charge 担当者より | | [Regarding this property.] Within 5 minutes from each line "Taisho Station". Since the station proximity, Also has very substantial surrounding facilities. There are parking two parking possible issue areas. 【この物件について】各線「大正駅」から5分圏内。駅近なので、周辺施設も大変充実しています。駐車場2台駐車可能号地あります。 |
Contact お問い合せ先 | | La beads Home for Sale (Ltd.) TEL: 0800-603-8229 [Toll free] mobile phone ・ Also available from PHS Caller ID is not notified Please contact the "saw SUUMO (Sumo)" If it does not lead, If the real estate company ラビーズホーム販売(株)TEL:0800-603-8229【通話料無料】携帯電話・PHSからもご利用いただけます 発信者番号は通知されません 「SUUMO(スーモ)を見た」と問い合わせください つながらない方、不動産会社の方は
|
Most price range 最多価格帯 | | 33 million yen (3 units) 3300万円台(3戸) |
Building coverage, floor area ratio 建ぺい率・容積率 | | Kenpei rate: 80%, Volume ratio: 240% 建ペい率:80%、容積率:240% |
Time residents 入居時期 | | 6 months after the contract 契約後6ヶ月 |
Land of the right form 土地の権利形態 | | Ownership 所有権 |
Structure and method of construction 構造・工法 | | Wooden Galvalume steel Itabuki three-story (framing method) 木造ガルバリウム鋼板葺3階建(軸組工法) |
Use district 用途地域 | | Two dwellings 2種住居 |
Land category 地目 | | Residential land 宅地 |
Other limitations その他制限事項 | | Quasi-fire zones 準防火地域 |
Overview and notices その他概要・特記事項 | | Building confirmation number: KKK 建築確認番号:KKK |
Company profile 会社概要 | | <Mediation> governor of Osaka (2) Article 052 746 No. La beads Home Sales Co., Ltd. Yubinbango530-0041 Osaka-shi, Osaka, Kita-ku, Tenjinbashi 1-15-4 RhbL Tenjin third floor <仲介>大阪府知事(2)第052746号ラビーズホーム販売(株)〒530-0041 大阪府大阪市北区天神橋1-15-4 RhbL天神3階 |