New Homes » Kansai » Osaka prefecture » Sakai city north district
 
| | Sakai, Osaka, Kita-ku, 大阪府堺市北区 |
| Subway Midosuji Line "Shinkanaoka" walk 25 minutes 地下鉄御堂筋線「新金岡」歩25分 |
| Life live house, It should also stick to the area! Sakai city north district address and popularity of subway Midosuji available, Also attractive you can select the elementary and junior high schools! Plenty of structural frame and equipment enhancement of the plan considering the earthquake resistance 生涯住まう家は、エリアにもこだわりたい!堺市北区アドレス&人気の地下鉄御堂筋線が利用可能、小中学校を選択できるのも魅力!耐震性を考えた構造躯体や設備充実のプランも豊富 |
| ■ Subway Midosuji Line "Shinkanaoka" & Nankai Koya Line "Hatsushiba" 2 wayside Available station ■ Household fuel cell [ENE-FARM] + Double power generation of photovoltaic power generation system! ! ■地下鉄御堂筋線「新金岡」&南海高野線「初芝」駅の2沿線利用可■家庭用燃料電池【エネファーム】+太陽光発電システムのダブル発電!! |
Features pickup 特徴ピックアップ | | 2 along the line more accessible / Corner lot / Shaping land / City gas / Building plan example there / Readjustment land within 2沿線以上利用可 /角地 /整形地 /都市ガス /建物プラン例有り /区画整理地内 | Price 価格 | | 17.7 million yen 1770万円 | Building coverage, floor area ratio 建ぺい率・容積率 | | Kenpei rate: 60%, Volume ratio: 200% 建ペい率:60%、容積率:200% | Sales compartment 販売区画数 | | 1 compartment 1区画 | Total number of compartments 総区画数 | | 13 compartment 13区画 | Land area 土地面積 | | 120.95 sq m (36.58 tsubo) (Registration) 120.95m2(36.58坪)(登記) | Land situation 土地状況 | | Vacant lot 更地 | Address 住所 | | Sakai, Osaka, Kita-ku, Kanaoka-cho, 2574 No. 7 大阪府堺市北区金岡町2574番7他 | Traffic 交通 | | Subway Midosuji Line "Shinkanaoka" walk 25 minutes Nankai Koya Line "Hatsushiba" walk 15 minutes Subway Midosuji Line "Nakamozu" walk 19 minutes 地下鉄御堂筋線「新金岡」歩25分 南海高野線「初芝」歩15分 地下鉄御堂筋線「なかもず」歩19分
| Related links 関連リンク | | [Related Sites of this company] 【この会社の関連サイト】 | Contact お問い合せ先 | | TEL: 0800-808-9036 [Toll free] mobile phone ・ Also available from PHS Caller ID is not notified Please contact the "saw SUUMO (Sumo)" If it does not lead, If the real estate company TEL:0800-808-9036【通話料無料】携帯電話・PHSからもご利用いただけます 発信者番号は通知されません 「SUUMO(スーモ)を見た」と問い合わせください つながらない方、不動産会社の方は
|
Local land photo現地土地写真  Local (August 2012) shooting
現地(2012年8月)撮影
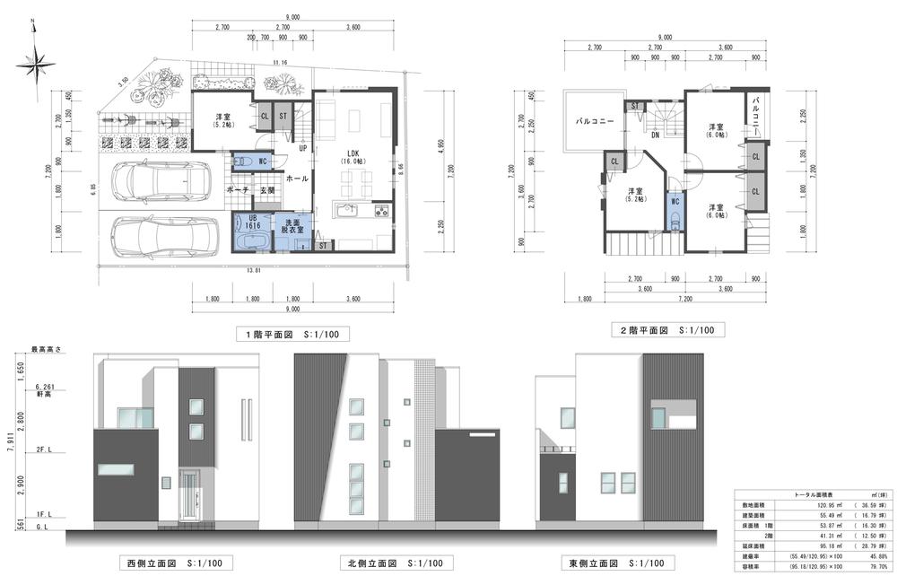
Building plan example (Perth ・ appearance)建物プラン例(パース・外観)  Parking two secured. Structural framework such as that adopted the vibration control GVA that will reduce the shaking caused by an earthquake, Try to put the rich plan to hand the only one House
駐車2台確保。地震などによる揺れを抑えてくれる制震GVAを採用した構造躯体など、豊富なプランから唯一の1邸を手に入れよう
 No. 9 areas (reference plan)
9号地(参考プラン)
Otherその他  Was born near the Kanike "smart eco-life Shinkanaoka" is rich natural spread, Environment attractive suitable for raising children and a 10-minute walk from the vast green space Oizumi. Close the central loop line, Also accessible by car convenient convenient location (local guide map)
菅池のそばに誕生した「スマートエコライフ新金岡」は豊かな自然が広がり、広大な大泉緑地へも徒歩10分と子育てに適した環境が魅力。中央環状線も近く、車でのアクセスにも便利な至便立地(現地案内図)
Primary school小学校  The Sakaishiritsu KANAOKA in the 1440m KANAOKA elementary school to elementary school every Wednesday as a "morning reading time", It also provided time to reading the time until the beginning of the first hour in the classroom, Children gives us the opportunity to touch this
堺市立金岡小学校まで1440m 金岡小学校では毎週水曜日を「朝の読書タイム」として、1時間目の開始までの時間を教室で読書をする時間も設けており、子供たちが本に触れる機会を与えてくれる
The entire compartment Figure全体区画図  The city of all 13 compartments, Site area 36 square meters ~ Ensure a breadth of 40 square meters and clear. From rich plan, Surely should own way style is found (section view)
全13区画の街は、敷地面積36坪 ~ 40坪とゆとりの広さを確保。豊富なプランから、きっと自分らしいスタイルが見つけられるはず(区画図)
Primary school小学校  Attend 400m about 370 students to Sakaishiritsu Hachishita Nishi Elementary School, Hachishita until Nishi Elementary School is a 5-minute walk. Rakuchin also commute daily if this distance
堺市立八下西小学校まで400m 約370人の生徒が通う、八下西小学校までは徒歩5分。この距離なら毎日の通学も楽ちん
Junior high school中学校  Standing beside the 640m Nagaike to Sakai City Tatsugane Okaminami junior high school, Sandwiched between the countryside and spacious and the residential area was gold Okaminami junior high school
堺市立金岡南中学校まで640m 長池のそばに立ち、住宅街と広々とした田園地帯に挟まれた金岡南中学校
 Important time to Sakaishiritsu to the south Hachishita junior high school foster and 800m autonomy. Industriously to extracurricular activities to study, Send a fulfilling student life
堺市立南八下中学校まで800m 自主性などを培う大切な時期。勉強に部活動に精を出して、充実した学生生活を送ろう
Supermarketスーパー  F MART Bodhi the town to shop 960m
F MART菩提町店まで960m
 Until Life Hatsushiba shop 1200m
ライフ初芝店まで1200m
Convenience storeコンビニ  Seven-Eleven Sakai Hikino cho 2 Chomise up to 80m
セブンイレブン堺引野町2丁店まで80m
Drug storeドラッグストア  960m to super drag Eleven Hatsushiba shop
スーパードラッグイレブン初芝店まで960m
Other Environmental Photoその他環境写真  720m to Sakai City carefree health museum
堺市立のびやか健康館まで720m
Location
|