New Homes » Kansai » Osaka prefecture » Sakai city north district
 
| | Sakai, Osaka, Kita-ku, 大阪府堺市北区 |
| Subway Midosuji Line "Shinkanaoka" bus 10 field ToAyumi 9 minutes 地下鉄御堂筋線「新金岡」バス10分野遠歩9分 |
| 1780 ~ All eight subdivisions started at 21.8 million yen! ! Newly built single-family is also available this price front road 6.7m solar panels installed detached ☆ ☆ 1780 ~ 2180万円にて全8区画分譲開始!!新築戸建がこの価格前面道路6.7m太陽光パネル設置戸建もございます☆☆ |
| ◆ ◆ Purchase with guarantee! ! ◆ ◆ Mediation and, It is a good place example you combine innovative sale method of purchase outright! 1 month ~ By providing a period of three months position, It will be sold to the general customers. If it could not be any chance sale, We will do the purchase at a price which was decided at the beginning. We especially our joy you in replacement of customers! ◆◆買取保証付!!◆◆仲介と、即金買取りの良い所えお兼ね備えた画期的な売却方法です!1ヶ月 ~ 3ヶ月位の期間を設けて、一般のお客様に販売します。万一売却出来なかった場合は、初めに決めていた価格で当社が買い取りを致します。特に買い替えのお客様にお喜び頂いています! |
Features pickup 特徴ピックアップ | | Long-term high-quality housing / Corresponding to the flat-35S / Solar power system / Pre-ground survey / Parking two Allowed / Immediate Available / 2 along the line more accessible / Fiscal year Available / Super close / It is close to the city / System kitchen / Bathroom Dryer / Yang per good / All room storage / Flat to the station / A quiet residential area / LDK15 tatami mats or more / Or more before road 6m / Corner lot / Japanese-style room / Shaping land / garden / Washbasin with shower / Face-to-face kitchen / Security enhancement / Toilet 2 places / Bathroom 1 tsubo or more / 2-story / 2 or more sides balcony / South balcony / Otobasu / High speed Internet correspondence / Warm water washing toilet seat / Underfloor Storage / The window in the bathroom / TV monitor interphone / High-function toilet / Leafy residential area / Ventilation good / Good view / Walk-in closet / All room 6 tatami mats or more / Water filter / City gas / BS ・ CS ・ CATV / Located on a hill / Maintained sidewalk / Flat terrain / Development subdivision in 長期優良住宅 /フラット35Sに対応 /太陽光発電システム /地盤調査済 /駐車2台可 /即入居可 /2沿線以上利用可 /年度内入居可 /スーパーが近い /市街地が近い /システムキッチン /浴室乾燥機 /陽当り良好 /全居室収納 /駅まで平坦 /閑静な住宅地 /LDK15畳以上 /前道6m以上 /角地 /和室 /整形地 /庭 /シャワー付洗面台 /対面式キッチン /セキュリティ充実 /トイレ2ヶ所 /浴室1坪以上 /2階建 /2面以上バルコニー /南面バルコニー /オートバス /高速ネット対応 /温水洗浄便座 /床下収納 /浴室に窓 /TVモニタ付インターホン /高機能トイレ /緑豊かな住宅地 /通風良好 /眺望良好 /ウォークインクロゼット /全居室6畳以上 /浄水器 /都市ガス /BS・CS・CATV /高台に立地 /整備された歩道 /平坦地 /開発分譲地内 | Price 価格 | | 20,600,000 yen ~ 21,800,000 yen 2060万円 ~ 2180万円 | Floor plan 間取り | | 4LDK 4LDK | Units sold 販売戸数 | | 8 units 8戸 | Total units 総戸数 | | 8 units 8戸 | Land area 土地面積 | | 100 sq m ~ 104.68 sq m (30.24 tsubo ~ 31.66 tsubo) (Registration) 100m2 ~ 104.68m2(30.24坪 ~ 31.66坪)(登記) | Building area 建物面積 | | 93.15 sq m ~ 95.58 sq m (28.17 tsubo ~ 28.91 tsubo) (Registration) 93.15m2 ~ 95.58m2(28.17坪 ~ 28.91坪)(登記) | Completion date 完成時期(築年月) | | 2013 late October 2013年10月下旬 | Address 住所 | | Sakai, Osaka, Kita-ku, Noto-cho 大阪府堺市北区野遠町 | Traffic 交通 | | Subway Midosuji Line "Shinkanaoka" bus 10 field ToAyumi 9 minutes Kintetsu Minami-Osaka Line "Takaminosato" walk 26 minutes Kintetsu Minami-Osaka Line "Nunose" walk 27 minutes 地下鉄御堂筋線「新金岡」バス10分野遠歩9分 近鉄南大阪線「高見ノ里」歩26分 近鉄南大阪線「布忍」歩27分
| Related links 関連リンク | | [Related Sites of this company] 【この会社の関連サイト】 | Contact お問い合せ先 | | TEL: 0800-602-6616 [Toll free] mobile phone ・ Also available from PHS Caller ID is not notified Please contact the "saw SUUMO (Sumo)" If it does not lead, If the real estate company TEL:0800-602-6616【通話料無料】携帯電話・PHSからもご利用いただけます 発信者番号は通知されません 「SUUMO(スーモ)を見た」と問い合わせください つながらない方、不動産会社の方は
| Building coverage, floor area ratio 建ぺい率・容積率 | | Building coverage: 60%, Volume ratio: 200% 建ぺい率:60%、容積率:200% | Time residents 入居時期 | | Immediate available 即入居可 | Land of the right form 土地の権利形態 | | Ownership 所有権 | Structure and method of construction 構造・工法 | | Wooden 2-story 木造2階建 | Use district 用途地域 | | Semi-industrial 準工業 | Land category 地目 | | Residential land 宅地 | Other limitations その他制限事項 | | Quasi-fire zones 準防火地域 | Overview and notices その他概要・特記事項 | | Building confirmation number: 1234 建築確認番号:1234 | Company profile 会社概要 | | <Mediation> governor of Osaka (2) the first 053,920 No. housing network Sales Co., Ltd. Sakai Yubinbango591-8032 Sakai-shi, Osaka, Kita-ku, Mozuume cho 3-4-4 <仲介>大阪府知事(2)第053920号ハウジングネットワーク販売(株)堺店〒591-8032 大阪府堺市北区百舌鳥梅町3-4-4 |
Local appearance photo現地外観写真  Children without any through traffic in the 10-year warranty with residential parking two possible development subdivision is also safe!
10年保証付住宅駐車2台可開発分譲地で車の通り抜けもなくお子様も安心です!
The entire compartment Figure全体区画図  1780 ~ All eight subdivisions started at 21.8 million yen!
1780 ~ 2180万円にて全8区画分譲開始!
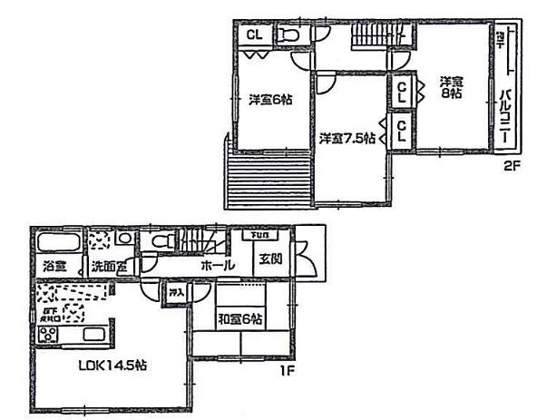
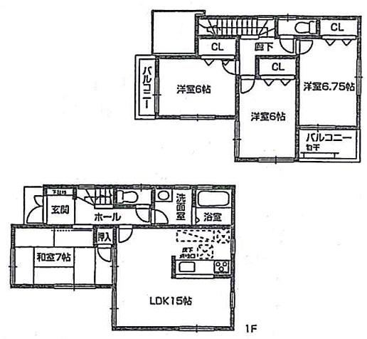
Floor plan間取り図  (No. 1 point), Price 21 million yen, 4LDK, Land area 104.68 sq m , Building area 95.58 sq m
(1号地)、価格2100万円、4LDK、土地面積104.68m2、建物面積95.58m2
 (No. 2 locations), Price 20.8 million yen, 4LDK, Land area 104.67 sq m , Building area 93.96 sq m
(2号地)、価格2080万円、4LDK、土地面積104.67m2、建物面積93.96m2
 (No. 3 locations), Price 21,800,000 yen, 4LDK, Land area 104.64 sq m , Building area 93.15 sq m
(3号地)、価格2180万円、4LDK、土地面積104.64m2、建物面積93.15m2
 (No. 4 locations), Price 21,800,000 yen, 4LDK, Land area 104.62 sq m , Building area 94.77 sq m
(4号地)、価格2180万円、4LDK、土地面積104.62m2、建物面積94.77m2
Livingリビング  Bright living room shine in gentle sunshine
優しい陽差し射し込む明るいリビングです
Kitchenキッチン  Face-to-face kitchen
対面式キッチン
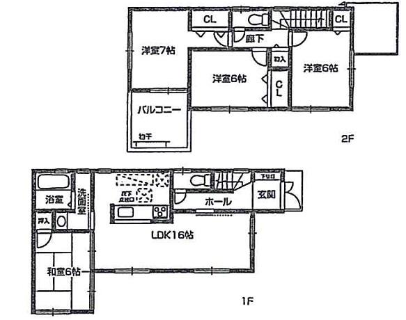
Floor plan間取り図  (No. 7 locations), Price 21.3 million yen, 4LDK, Land area 100 sq m , Building area 93.15 sq m
(7号地)、価格2130万円、4LDK、土地面積100m2、建物面積93.15m2
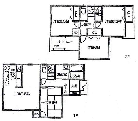
 (No. 8 locations), Price 20,600,000 yen, 4LDK, Land area 100.05 sq m , Building area 95.17 sq m
(8号地)、価格2060万円、4LDK、土地面積100.05m2、建物面積95.17m2
Livingリビング  Since it is spacious and you can put a lot of furniture
広々としてますので家具を沢山置く事が出来ます
Other introspectionその他内観  Closet can be a lot of storage there is a depth
クローゼットは奥行きがあり沢山収納出来ます
Non-living roomリビング以外の居室  Because of the two-sided lighting, Room sunshine will take care insert full
二面採光のため、お部屋いっぱいに陽差しが差し込んでくれます
Wash basin, toilet洗面台・洗面所  Shower ・ Three-sided mirror vanity adopted
シャワー付・三面鏡洗面化粧台採用
Bathroom浴室  Spacious 1616 type!
広々1616タイプです!
Non-living roomリビング以外の居室  It will calm and there is a Japanese-style room
和室があると落ちつきますね
Park公園  South Hachishita to East Park 1389m
南八下東公園まで1389m
Post office郵便局  Sakaikita Hachishita 352m to the post office
堺北八下郵便局まで352m
Hospital病院  697m until the medical corporation Iwaki Board KANAOKA Central Hospital
医療法人以和貴会金岡中央病院まで697m
Primary school小学校  Sakai Tatsukita Hachishita to elementary school 1037m
堺市立北八下小学校まで1037m
Junior high school中学校  Sakaishiritsu Hachishita until junior high school 1112m
堺市立八下中学校まで1112m
Location
|