New Homes » Kansai » Osaka prefecture » Sakai city north district
 
| | Sakai, Osaka, Kita-ku, 大阪府堺市北区 |
| Kintetsu Minami-Osaka Line "Nunose" walk 12 minutes 近鉄南大阪線「布忍」歩12分 |
| All two-compartment new subdivision! Solar panels standard installed power-saving is also expected You can also have electricity sales revenue south-facing balcony ・ Good per yang revised Building Standards Law correspondence for all rooms dihedral daylighting ・ Highest grade Property ☆ 全2区画新規分譲!太陽光パネル標準設置節電も出来て売電収入も見込めます南向きバルコニー・全室二面採光のため陽当たり良好です改正建築基準法対応・最高等級物件☆ |
| ◆ ◆ Purchase with guarantee! ! ◆ ◆ Mediation and, It is a good place example you combine innovative sale method of purchase outright! 1 month ~ By providing a period of three months position, It will be sold to the general customers. If it could not be any chance sale, We will do the purchase at a price which was decided at the beginning. We especially our joy you in replacement of customers! ◆◆買取保証付!!◆◆仲介と、即金買取りの良い所えお兼ね備えた画期的な売却方法です!1ヶ月 ~ 3ヶ月位の期間を設けて、一般のお客様に販売します。万一売却出来なかった場合は、初めに決めていた価格で当社が買い取りを致します。特に買い替えのお客様にお喜び頂いています! |
Features pickup 特徴ピックアップ | | Solar power system / Pre-ground survey / 2 along the line more accessible / Super close / It is close to the city / Facing south / System kitchen / Bathroom Dryer / Yang per good / All room storage / Flat to the station / Siemens south road / A quiet residential area / Around traffic fewer / Or more before road 6m / Corner lot / Japanese-style room / Washbasin with shower / Face-to-face kitchen / Security enhancement / Toilet 2 places / 2-story / 2 or more sides balcony / South balcony / Otobasu / Warm water washing toilet seat / Underfloor Storage / The window in the bathroom / TV monitor interphone / High-function toilet / Leafy residential area / Ventilation good / Good view / All room 6 tatami mats or more / City gas / All rooms are two-sided lighting / Maintained sidewalk / Flat terrain 太陽光発電システム /地盤調査済 /2沿線以上利用可 /スーパーが近い /市街地が近い /南向き /システムキッチン /浴室乾燥機 /陽当り良好 /全居室収納 /駅まで平坦 /南側道路面す /閑静な住宅地 /周辺交通量少なめ /前道6m以上 /角地 /和室 /シャワー付洗面台 /対面式キッチン /セキュリティ充実 /トイレ2ヶ所 /2階建 /2面以上バルコニー /南面バルコニー /オートバス /温水洗浄便座 /床下収納 /浴室に窓 /TVモニタ付インターホン /高機能トイレ /緑豊かな住宅地 /通風良好 /眺望良好 /全居室6畳以上 /都市ガス /全室2面採光 /整備された歩道 /平坦地 | Price 価格 | | 26,800,000 yen ~ 27,800,000 yen 2680万円 ~ 2780万円 | Floor plan 間取り | | 4LDK 4LDK | Units sold 販売戸数 | | 2 units 2戸 | Total units 総戸数 | | 2 units 2戸 | Land area 土地面積 | | 81.91 sq m ~ 86.2 sq m (24.77 tsubo ~ 26.07 tsubo) (Registration) 81.91m2 ~ 86.2m2(24.77坪 ~ 26.07坪)(登記) | Building area 建物面積 | | 93.15 sq m ~ 93.96 sq m (28.17 tsubo ~ 28.42 tsubo) (Registration) 93.15m2 ~ 93.96m2(28.17坪 ~ 28.42坪)(登記) | Driveway burden-road 私道負担・道路 | | Road width: 5.4m ~ 9.0m 道路幅:5.4m ~ 9.0m | Completion date 完成時期(築年月) | | February 2014 early schedule 2014年2月上旬予定 | Address 住所 | | Sakai, Osaka, Kita-ku, Minamihanada cho 大阪府堺市北区南花田町 | Traffic 交通 | | Kintetsu Minami-Osaka Line "Nunose" walk 12 minutes Subway Midosuji Line "Kitahanada" walk 21 minutes Subway Midosuji Line "Shinkanaoka" walk 23 minutes 近鉄南大阪線「布忍」歩12分 地下鉄御堂筋線「北花田」歩21分 地下鉄御堂筋線「新金岡」歩23分
| Related links 関連リンク | | [Related Sites of this company] 【この会社の関連サイト】 | Contact お問い合せ先 | | TEL: 0800-602-6616 [Toll free] mobile phone ・ Also available from PHS Caller ID is not notified Please contact the "saw SUUMO (Sumo)" If it does not lead, If the real estate company TEL:0800-602-6616【通話料無料】携帯電話・PHSからもご利用いただけます 発信者番号は通知されません 「SUUMO(スーモ)を見た」と問い合わせください つながらない方、不動産会社の方は
| Building coverage, floor area ratio 建ぺい率・容積率 | | Kenpei rate: 60%, Volume ratio: 200% 建ペい率:60%、容積率:200% | Time residents 入居時期 | | Three months after the contract 契約後3ヶ月 | Land of the right form 土地の権利形態 | | Ownership 所有権 | Use district 用途地域 | | Semi-industrial 準工業 | Land category 地目 | | Residential land 宅地 | Other limitations その他制限事項 | | Quasi-fire zones 準防火地域 | Overview and notices その他概要・特記事項 | | Building confirmation number: 1234 建築確認番号:1234 | Company profile 会社概要 | | <Mediation> governor of Osaka (2) the first 053,920 No. housing network Sales Co., Ltd. Sakai Yubinbango591-8032 Sakai-shi, Osaka, Kita-ku, Mozuume cho 3-4-4 <仲介>大阪府知事(2)第053920号ハウジングネットワーク販売(株)堺店〒591-8032 大阪府堺市北区百舌鳥梅町3-4-4 |
Local appearance photo現地外観写真  It is scheduled for completion in building construction starts 2014 March.
建築工事着工平成26年3月に完成予定です。
 There complete Models House.
完成済モデルハウスございます。
 It is in the solid foundation work. It is a 10-year warranty mortgage of peace of mind.
ベタ基礎工事中です。 安心の10年保証付住宅です。
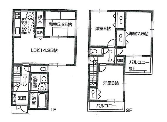
Floor plan間取り図  (Building 2), Price 27,800,000 yen, 4LDK, Land area 81.91 sq m , Building area 93.15 sq m
(2号棟)、価格2780万円、4LDK、土地面積81.91m2、建物面積93.15m2
 Local appearance photo
現地外観写真
 Local photos, including front road
前面道路含む現地写真
Convenience storeコンビニ  324m to FamilyMart Sakai Minamihanada shop
ファミリーマート堺南花田店まで324m
The entire compartment Figure全体区画図  All two-compartment new subdivision
全2区画新規分譲
Otherその他  Kintetsu Minami-Osaka Line "Nunose" station
近鉄南大阪線「布忍」駅
Floor plan間取り図  (1 Building), Price 26,800,000 yen, 4LDK, Land area 86.2 sq m , Building area 93.96 sq m
(1号棟)、価格2680万円、4LDK、土地面積86.2m2、建物面積93.96m2
 Local appearance photo
現地外観写真
 Local photos, including front road
前面道路含む現地写真
Drug storeドラッグストア  912m to super drag Eleven Shinkanaoka shop
スーパードラッグイレブン新金岡店まで912m
Otherその他  Is about 10 minutes by bike to the subway Midosuji Line "Kitahanada".
地下鉄御堂筋線「北花田」へも自転車で10分程です。
 Local appearance photo
現地外観写真
 Local photos, including front road
前面道路含む現地写真
Home centerホームセンター  677m to home improvement Konan KANAOKA Kuramae shop
ホームセンターコーナン金岡蔵前店まで677m
 Local appearance photo
現地外観写真
Kindergarten ・ Nursery幼稚園・保育園  Sakai Tatsukita Hachishita to kindergarten 523m
堺市立北八下幼稚園まで523m
 Local appearance photo
現地外観写真
 Akatsuki 613m to nursery school
あかつき保育園まで613m
Location
|