|
|
Sakai, Osaka Prefecture Mihara Ward
大阪府堺市美原区
|
|
Nankai Koya Line "Kitanoda" walk 20 minutes
南海高野線「北野田」歩20分
|
|
Parking two Allowed, Year Available, LDK15 tatami mats or more, All room 6 tatami mats or more, Face-to-face kitchen, Bathroom 1 tsubo or more, System kitchen, Bathroom Dryer, All room storageese-style room, Washbasin with shower, Toilet 2 places,
駐車2台可、年内入居可、LDK15畳以上、全居室6畳以上、対面式キッチン、浴室1坪以上、システムキッチン、浴室乾燥機、全居室収納、和室、シャワー付洗面台、トイレ2ヶ所、
|
|
Walk up to Kuroyama elementary school about 5 minutes. Mihara walk about 14 minutes until junior high school.
黒山小学校まで徒歩約5分。美原中学校まで徒歩約14分。
|
Features pickup 特徴ピックアップ | | Year Available / Parking two Allowed / System kitchen / Bathroom Dryer / All room storage / LDK15 tatami mats or more / Japanese-style room / Washbasin with shower / Face-to-face kitchen / Toilet 2 places / Bathroom 1 tsubo or more / 2-story / Warm water washing toilet seat / Underfloor Storage / The window in the bathroom / Dish washing dryer / All room 6 tatami mats or more / Water filter / City gas / roof balcony 年内入居可 /駐車2台可 /システムキッチン /浴室乾燥機 /全居室収納 /LDK15畳以上 /和室 /シャワー付洗面台 /対面式キッチン /トイレ2ヶ所 /浴室1坪以上 /2階建 /温水洗浄便座 /床下収納 /浴室に窓 /食器洗乾燥機 /全居室6畳以上 /浄水器 /都市ガス /ルーフバルコニー |
Price 価格 | | 23.8 million yen 2380万円 |
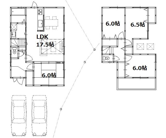
Floor plan 間取り | | 4LDK 4LDK |
Units sold 販売戸数 | | 1 units 1戸 |
Total units 総戸数 | | 3 units 3戸 |
Land area 土地面積 | | 135.03 sq m (40.84 tsubo) (measured) 135.03m2(40.84坪)(実測) |
Building area 建物面積 | | 94.77 sq m (28.66 tsubo) (measured) 94.77m2(28.66坪)(実測) |
Driveway burden-road 私道負担・道路 | | Nothing, South 3.6m width 無、南3.6m幅 |
Completion date 完成時期(築年月) | | September 2013 2013年9月 |
Address 住所 | | Sakai, Osaka Prefecture Mihara Ward Honami 21 大阪府堺市美原区阿弥21 |
Traffic 交通 | | Nankai Koya Line "Kitanoda" walk 20 minutes 南海高野線「北野田」歩20分
|
Contact お問い合せ先 | | (Corporation) Makoto Home services Hatsushiba Branch TEL: 0800-808-7072 [Toll free] mobile phone ・ Also available from PHS Caller ID is not notified Please contact the "saw SUUMO (Sumo)" If it does not lead, If the real estate company (株)誠ホームサービス初芝支店TEL:0800-808-7072【通話料無料】携帯電話・PHSからもご利用いただけます 発信者番号は通知されません 「SUUMO(スーモ)を見た」と問い合わせください つながらない方、不動産会社の方は
|
Building coverage, floor area ratio 建ぺい率・容積率 | | 60% ・ 200% 60%・200% |
Time residents 入居時期 | | Three months after the contract 契約後3ヶ月 |
Land of the right form 土地の権利形態 | | Ownership 所有権 |
Structure and method of construction 構造・工法 | | Wooden 2-story (framing method) 木造2階建(軸組工法) |
Construction 施工 | | (Corporation) Makoto construction industry (株)誠建設工業 |
Use district 用途地域 | | One dwelling 1種住居 |
Overview and notices その他概要・特記事項 | | Facilities: Public Water Supply, This sewage, City gas, Building confirmation number: 13-0492, Parking: car space 設備:公営水道、本下水、都市ガス、建築確認番号:13-0492、駐車場:カースペース |
Company profile 会社概要 | | <Mediation> governor of Osaka (2) No. 050655 (Corporation) Makoto Home services Hatsushiba branch Yubinbango599-8111 Sakai City, Osaka Prefecture, Higashi-ku, Hikishokita cho 9-10 <仲介>大阪府知事(2)第050655号(株)誠ホームサービス初芝支店〒599-8111 大阪府堺市東区日置荘北町9-10 |