New Homes » Kansai » Osaka prefecture » Naka-ku, Sakai City


Osaka FuSakai City Naka-ku,
Senboku high-speed rail "deep" bus 9 minutes Higashichugakkomae step 2 minutes
System kitchen, LDK15 tatami mats or more, Washbasin with shower, Toilet 2 places, Warm water washing toilet seat, The window in the bathroom, TV monitor interphone
System kitchen, LDK15 tatami mats or more, Washbasin with shower, Toilet 2 places, Warm water washing toilet seat, The window in the bathroom, TV monitor interphone
Features pickup
System kitchen / LDK15 tatami mats or more / Washbasin with shower / Toilet 2 places / Warm water washing toilet seat / The window in the bathroom / TV monitor interphone
Price
17.8 million yen
Floor plan
3LDK
Units sold
1 units
Total units
1 units
Land area
55.24 sq m (registration)
Building area
92.53 sq m (measured)
Driveway burden-road
Nothing, North 4m width
Completion date
Three months after the contract
Address
Osaka FuSakai City Naka-ku, rural
Traffic
Senboku high-speed rail "deep" bus 9 minutes Higashichugakkomae step 2 minutes
Senboku high-speed rail "Izumigaoka" walk 30 minutes
Nankai Koya Line "Kitanoda" walk 43 minutes
Related links
[Related Sites of this company]
Person in charge
[Regarding this property.] You can pay for unrestricted housing loan amount!
Contact
TEL: 072-258-0888 Please inquire as "saw SUUMO (Sumo)"
Building coverage, floor area ratio
60% ・ 200%
Time residents
Three months after the contract
Land of the right form
Ownership
Structure and method of construction
Wooden three-story (framing method)
Use district
One middle and high
Overview and notices
Facilities: Public Water Supply, This sewage, City gas, Building confirmation number: 25-10-29, Parking: car space
Company profile
<Mediation> governor of Osaka Prefecture (1) No. 056958 (Ltd.) Life City Yubinbango591-8032 Sakai-shi, Osaka, Kita-ku, Mozuume cho 1-2-6


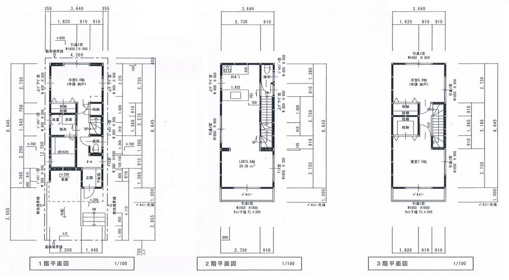
Floor plan

Floor plan. 17.8 million yen, 3LDK, Land area 55.24 sq m , Building area 92.53 sq m
17.8 million yen, 3LDK, Land area 55.24 sq m , Building area 92.53 sq m

Local appearance photo

Local appearance photo. Same specifications
Same specifications

Kitchen

Kitchen. Same specifications
Same specifications

Living

Living. Same specifications
Same specifications

Bathroom

Bathroom. Same specifications
Same specifications

Local photos, including front road

Local photos, including front road. Local (12 May 2013) shooting "
Local (12 May 2013) shooting "



Location