New Homes » Kansai » Osaka prefecture » Sakai city west district
 
| | Sakai, Osaka, Nishi-ku, 大阪府堺市西区 |
| JR Hanwa Line "Uenoshiba" walk 8 minutes JR阪和線「上野芝」歩8分 |
| ○ ● campaign held to choose the equivalent of 1 million yen New Year! ● ○ be born in the first kind low-rise exclusive residential area "legitimate Uenoshiba" all mansion complete! ○●新春100万円相当の選べるキャンペーン開催!●○第一種低層住居専用地域に誕生する「上野芝の正統」全邸完成! |
| ■ Envy of the earth, Fine mansion of Brands series leading to the birth to Uenoshiba. ■ Strong and innovative dwelling unit design that combines the North American Prairie style in 2 × 4 construction method. ■ Lighting remembering the room between the mansion ・ While ensuring the ventilation, Express the fresh green of the streets have been decorated trees. ■羨望の地、上野芝に誕生するブランズシリーズ屈指の上質な邸宅。■2×4工法に北米プレーリースタイルを組み合わせた強固で斬新な住戸デザイン。■邸宅間にゆとりをもたせ採光・通風を確保しながら、樹木に彩られた新緑の街並みを表現。 |
Local guide map 現地案内図 | | Local guide map 現地案内図 | Property name 物件名 | | Brands Garden Uenoshiba six furlongs ブランズガーデン上野芝六丁 | Price 価格 | | 47,900,000 yen ~ 55,800,000 yen 4790万円 ~ 5580万円 | Floor plan 間取り | | 4LDK ~ 4LDK + S (storeroom) 4LDK ~ 4LDK+S(納戸) | Units sold 販売戸数 | | 3 units 3戸 | Total units 総戸数 | | 11 units 11戸 | Land area 土地面積 | | 130.16 sq m ~ 134.16 sq m (39.37 tsubo ~ 40.58 square meters) 130.16m2 ~ 134.16m2(39.37坪 ~ 40.58坪) | Building area 建物面積 | | 102.43 sq m ~ 103.93 sq m (30.98 tsubo ~ 31.43 square meters) 102.43m2 ~ 103.93m2(30.98坪 ~ 31.43坪) | Completion date 完成時期(築年月) | | March 2013 2013年3月 | Address 住所 | | Sakai, Osaka, Nishi-ku, Uenoshiba-cho, 6-425 No. 18 大阪府堺市西区上野芝町6-425番18他 | Traffic 交通 | | JR Hanwa Line "Uenoshiba" walk 8 minutes JR阪和線「上野芝」歩8分
| Related links 関連リンク | | [Related Sites of this company] 【この会社の関連サイト】 | Person in charge 担当者より | | [Regarding this property.] Please enter 【この物件について】入力してください | Contact お問い合せ先 | | Brands Garden Uenoshiba Local sales center TEL: 0120-109-644 [Toll free] (mobile phone ・ Also available from PHS. ) Please contact the "saw SUUMO (Sumo)" ブランズガーデン上野芝 現地販売センターTEL:0120-109-644【通話料無料】(携帯電話・PHSからもご利用いただけます。)「SUUMO(スーモ)を見た」と問い合わせください | Sale schedule 販売スケジュール | | First-come-first-served basis Application start accepting. ※ One during the sign-up is, Seal (Shachihata impossibility), Those that can prove the income of the previous two years (withholding tax, etc.), Identification card (driver's license, Please bring your health insurance card, etc.). 先着順申込受付開始。※お申込みの際には、印鑑(シャチハタ不可)、直近2年分の所得を証明できるもの(源泉徴収票等)、身分証明書(運転免許証、健康保険証等)をご持参下さい。 | Event information イベント情報 | | Model house (please make a reservation beforehand) schedule / During the public time / 10:00 ~ 15: 0012 May 28 (Friday) ~ Between January 3 (gold), We will consider it as the year-end and New Year holiday period. Beginning of the year will be business as usual from January 4 (Saturday). Document request received during the holiday period ・ Regarding inquiry, I will support you in the new year early. Although in everyone We apologize for the inconvenience, I would like to humbly thank you. Actually look offer your experience serving model home touch. Please do put your tour by all means once. モデルハウス(事前に必ず予約してください)日程/公開中時間/10:00 ~ 15:0012月28日(金) ~ 1月3日(金)の間、年末年始休業期間とさせていただきます。 年始は1月4日(土)より通常通り営業致します。休業期間中に頂きました資料請求・お問い合わせにつきましては、年明け早々にご対応させていただきます。 皆様にはご迷惑をおかけいたしますが、何卒宜しくお願い申し上げます。実際に見て触れてご体感いただけるモデルホームをご用意。ぜひ一度ご見学においでください。 | Most price range 最多価格帯 | | If the Supplementary Information, Please enter 補足事項はあれば、入力してください | Expenses 諸費用 | | Home security use fee: 3150 yen / Month ホームセキュリティ利用料:3150円/月 | Building coverage, floor area ratio 建ぺい率・容積率 | | Building coverage: 40%, Volume ratio: 80% 建ぺい率:40%、容積率:80% | Time residents 入居時期 | | Consultation 相談 | Land of the right form 土地の権利形態 | | Ownership 所有権 | Structure and method of construction 構造・工法 | | Wooden framework wall method The ground two-story 木造枠組み壁工法 地上2階建て | Construction 施工 | | Co., Ltd. Showa builders 株式会社昭和工務店 | Use district 用途地域 | | One low-rise 1種低層 | Land category 地目 | | Residential land 宅地 | Other limitations その他制限事項 | | Regulations have by the Landscape Act, If there are other restrictions, please fill in less than 150 characters 景観法による規制有、その他の制限事項がある場合は150字以内で記入してください | Overview and notices その他概要・特記事項 | | Building confirmation number: No. KKK01204875 (2012 November 15 date) 建築確認番号:第KKK01204875号(平成24年11月15日付) | Company profile 会社概要 | | <Seller> Minister of Land, Infrastructure and Transport (14) No. 000045 (one company) Real Estate Association (Corporation) metropolitan area real estate Fair Trade Council member Tokyu Land Corp. Kansai branch Yubinbango542-0081, Chuo-ku, Osaka-shi Minamisenba 4-4-3 Shinsaibashi Tokyu building <marketing alliance (agency)> Governor of Hyogo Prefecture (3) <売主>国土交通大臣(14)第000045号(一社)不動産協会会員 (公社)首都圏不動産公正取引協議会加盟東急不動産(株)関西支店〒542-0081 大阪府大阪市中央区南船場4-4-3 心斎橋東急ビル<販売提携(代理)>兵庫県知事(3)第203437号(株)シーズ不動産販売〒650-0034 兵庫県神戸市中央区京町72 新クレセントビル6F |
Local appearance photo現地外観写真  Adjacent to the Daisen parkland, Lush calm streets of the first kind low-rise exclusive residential area. ※ Appearance (08 May 2013) Shooting
大仙風致地区に隣接した、第一種低層住居専用地域の緑あふれる落ち着いた街並み。※外観(2013年08月)撮影
Livingリビング  Combined living staircase and atrium, Realize the space with a bright sense of liberation. ※ Indoor (08 May 2013) Shooting
リビング階段と吹抜けを併せ、明るく解放感のある空間を実現。※室内(2013年08月)撮影
Local appearance photo現地外観写真  North American Prairie style of design reflects the unity and depth of the city, Richly create a beautiful landscape arranged green. ※ Appearance (08 May 2013) Shooting
北米プレーリースタイルのデザインが街の統一感と奥行きを映し、豊かに緑を配し美しい景観を創出。※外観(2013年08月)撮影
Livingリビング  Living room decor blow that morning sun plug. ※ Indoor (08 May 2013) Shooting
朝日が差し込む吹抜けを配したリビング。※室内(2013年08月)撮影
Garden庭  It planned also to adjacent land dwelling unit, Day, The flow of the wind, Consideration to privacy. ※ Appearance (08 May 2013) Shooting
隣接地住戸も併せて計画し、日当たり、風の流れ、プライバシーに配慮。※外観(2013年08月)撮影
The entire compartment Figure全体区画図  About the road width of the city wards 6.7m. And widely provided, Also by the continuous placement of the adjacent car port, It was achieved with plenty of lighting and ventilation of goodness.
街区内の道路幅員を約6.7m.と広く設け、また隣接カーポートの連続配置により、たっぷりの採光と風通しのよさを実現しました。
Primary school小学校  Until the wise School Elementary School 950m
賢明学院小学校まで950m
Supermarketスーパー  Until Life Ishizu shop 910m
ライフ石津店まで910m
Home centerホームセンター  780m to home improvement Konan Sakai
ホームセンターコーナン堺店まで780m
Park公園  1060m to Daisen Park
大仙公園まで1060m
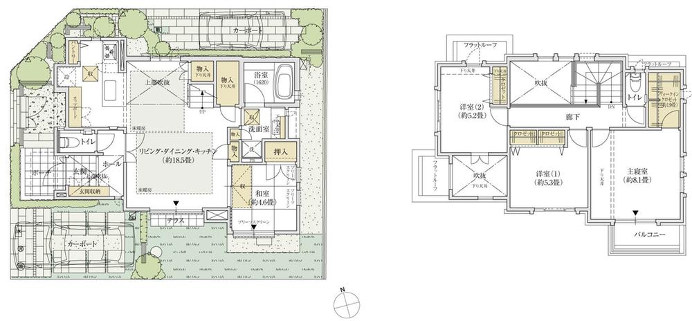
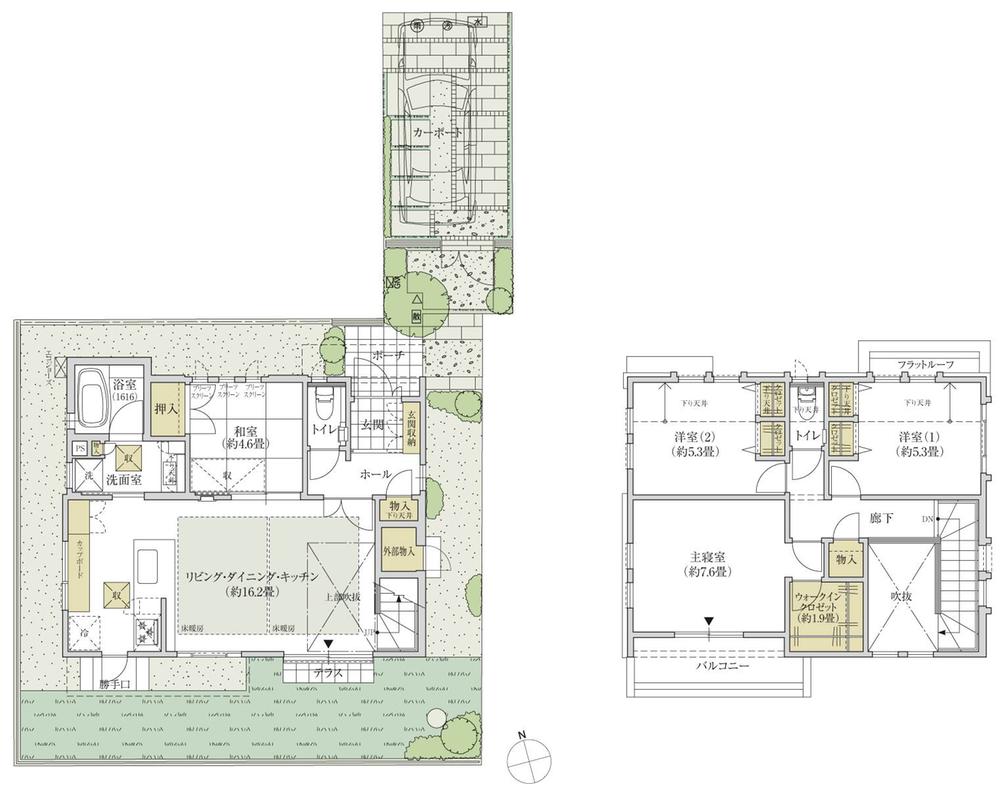
Floor plan間取り図  (No. 7 land ・ Model home), Price 55,800,000 yen, 4LDK+S, Land area 130.16 sq m , Building area 103.93 sq m
(7号地・モデルホーム)、価格5580万円、4LDK+S、土地面積130.16m2、建物面積103.93m2
Other Equipmentその他設備  Since the electric storage, Switch one easy operation. We are emphasizing design the amount of storage.
電動収納なので、スィッチひとつで簡単操作。収納量を重視した設計です。
Bathroom浴室  TOTO unit bus (size 1620)
TOTOのユニットバス(1620サイズ)
Kitchenキッチン  Hanssem manufactured system Kitchen
ハンセム社製システムキッチン
Construction ・ Construction method ・ specification構造・工法・仕様  Two-by-four construction method of the housing to exert a superior earthquake resistance. The secret is in the box structure consisting of 6 tetrahedrons. Efficiency weighted less likely to be deformed because the catch in the entire surface of an external force such as an earthquake well dispersed ・ To absorb.
優れた耐震性を発揮するツーバイフォー工法の住宅。その秘密は6面体からなるボックス構造にあります。地震などの外力を面全体で受け止めるので変形しにくく加重を効率よく分散・吸収します。
 About 1 thermal conductivity of the wood iron / 350, Of concrete 1 / 13. Matatsu - Baifo houses that make up the entire building in terms, To reduce the outflow of indoor air, High thermal insulation, Achieve high air-tightness.
木材の熱伝導率は鉄の約1/350、コンクリートの1/13。またツ-バイフォー住宅は建物全体を面で構成することで、室内の空気の流出を低減し、高断熱、高気密性を実現。
 Ground survey ・ On top of the improvement, Subjected to a reinforcement from the start-up part of the foundation to the floor over the entire surface, Adopt a robust "solid foundation", which hit the reinforced concrete with a thickness of about 180mm. Also excellent moisture resistance to the construction of the moisture-proof sheet.
地盤調査・改良の上に、基礎の立ち上げ部分から床下全面にまで配筋を施し、厚さ約180mmの鉄筋コンクリートを打った強固な「ベタ基礎」を採用。また防湿シートを施工し優れた防湿性を発揮。
 Housing performance evaluation report is, An evaluation by a third party evaluation organization that country to specify, Is intended to display an easy-to-understand the performance of the housing in the numbers and grade. In the "Brands Garden Uenoshiba 6 chome", A summary of the evaluation of the design stage "design Housing Performance Evaluation Report", And the construction stage and the test results are summarized the "construction Housing Performance Evaluation Report" at the time of completion both acquired.
住宅性能評価書は、国が指定する第三者評価機関による評価を、住宅の性能を数値や等級で分かりやすく表示するものです。「ブランズガーデン上野芝6丁」では、設計段階の評価をまとめた「設計住宅性能評価書」、および施工段階と竣工時の検査結果をまとめた「建設住宅性能評価書」共に取得済み。
Livingリビング  Living-dining trappings warm relaxation of off-time.
くつろぎのオフタイムを温かく彩るリビングダイニング。
Floor plan間取り図  (No. 10 locations), Price 47,900,000 yen, 4LDK+S, Land area 134.01 sq m , Building area 103.4 sq m
(10号地)、価格4790万円、4LDK+S、土地面積134.01m2、建物面積103.4m2
 (No. 6 locations), Price 52,800,000 yen, 4LDK+S, Land area 133.81 sq m , Building area 102.43 sq m
(6号地)、価格5280万円、4LDK+S、土地面積133.81m2、建物面積102.43m2
Shopping centreショッピングセンター  Seiyu, Ltd. 1000m to Uenoshiba shop
西友 上野芝店まで1000m
Home centerホームセンター  910m until EDION Sakai Ishizu shop
エディオン堺石津店まで910m
Security equipment防犯設備  Women and children also easy to open and close with one switch. Adopt an electric shutter on the first floor sweep opening.
女性やお子様もスィッチひとつで簡単開閉。1階掃き出し口には電動シャッターを採用。
 card ・ Only bring the seal, Firmly locking and unlocking the two keys in easy operation of one action.
カード・シールを近づけるだけ、ワンアクションの簡単操作で2つのカギをしっかり施解錠。
Local guide map現地案内図  JR Hanwa Line "Uenoshiba" 8 minutes flat access walk from the station.
JR阪和線「上野芝」駅よりフラットアクセス徒歩8分。
Access view交通アクセス図  JR "Tennoji" 14 minutes to the station.
JR「天王寺」駅へ14分。
Presentプレゼント  ○ ● campaign held to choose the equivalent of 1 million yen New Year! ● ○ 1 / 4 (Sat) ~ 2 / 2 (Sun) 1 million yen worth of furniture to customers that your conclusion of a contract were only during the period ・ Curtain Ya, Eco appliances, Expenses such as gifts in accordance with the purchase! (Limited 2 House) ※ For more information, please contact the toll-free.
○●新春100万円相当の選べるキャンペーン開催!●○1/4(土) ~ 2/2(日)期間中にご成約をただいたお客様に100万円相当の家具・カーテンや、エコ電化製品、購入にかかる諸費用などプレゼント!(限定2邸)※詳しくはフリーコールまでお問合せ下さい。
Other Equipmentその他設備  Standard established a cupboard where you can enjoy a coordinating conjunction with system kitchen and Menzai. Since the fixed type that is a lower risk of falling during an earthquake.
システムキッチンと面材を併せコーディネートをお楽しみいただけるカップボードを標準設置。固定式なので地震時に転倒する危険性も低いです。
 Milling the natural stone ・ Molded the, Adopted Quartz engineers Stone that the natural crystal containing 90% or more. Elegant and natural texture, It combines the durability of more than natural stone.
天然石を粉砕・成型した、天然水晶を90%以上含有したクォーツエンジニアストーンを採用。上品で自然な風合いと、天然石を超える耐久性を併せ持ちます。
Power generation ・ Hot water equipment発電・温水設備  Adopt the electric car correspondence of outdoor power outlet in the parking lot. Charging the 24-hour.
駐車場に電気自動車対応の屋外電源コンセントを採用。充電は24時間対応。
Primary school小学校  Sakaishiritsu Uenoshiba until elementary school 790m
堺市立上野芝小学校まで790m
Hospital病院  Yamagata 190m to clinic
山県クリニックまで190m
Park公園  240m until Kasumigaoka park
霞ケ丘公園まで240m
Location
|