New Homes » Kansai » Osaka prefecture » Settsu
 
| | Osaka Prefecture Settsu 大阪府摂津市 |
| Hankyu Kyoto Line "Shojaku" walk 11 minutes 阪急京都線「正雀」歩11分 |
| ■ Southwestward! ! ■南西向き!! |
Features pickup 特徴ピックアップ | | A quiet residential area 閑静な住宅地 | Price 価格 | | 23,900,000 yen 2390万円 | Floor plan 間取り | | 3LDK 3LDK | Units sold 販売戸数 | | 1 units 1戸 | Total units 総戸数 | | 1 units 1戸 | Land area 土地面積 | | 70.51 sq m (21.32 tsubo) (measured) 70.51m2(21.32坪)(実測) | Building area 建物面積 | | 91.39 sq m (27.64 tsubo) (Registration) 91.39m2(27.64坪)(登記) | Completion date 完成時期(築年月) | | Three months after the contract 契約後3ヶ月 | Address 住所 | | Osaka Prefecture Settsu Mishima 3 大阪府摂津市三島3 | Traffic 交通 | | Hankyu Kyoto Line "Shojaku" walk 11 minutes JR Tokaido Line "shore" walk 18 minutes 阪急京都線「正雀」歩11分 JR東海道本線「岸辺」歩18分
| Related links 関連リンク | | [Related Sites of this company] 【この会社の関連サイト】 | Person in charge 担当者より | | Person in charge of real-estate and building Morii Osamu Age: 40s 担当者宅建森井 修年齢:40代 | Contact お問い合せ先 | | TEL: 072-652-0170 Please inquire as "saw SUUMO (Sumo)" TEL:072-652-0170「SUUMO(スーモ)を見た」と問い合わせください | Building coverage, floor area ratio 建ぺい率・容積率 | | 60% 200% 60% 200% | Time residents 入居時期 | | Three months after the contract 契約後3ヶ月 | Land of the right form 土地の権利形態 | | Ownership 所有権 | Structure and method of construction 構造・工法 | | Wooden three-story 木造3階建 | Use district 用途地域 | | Two mid-high 2種中高 | Land category 地目 | | Residential land 宅地 | Other limitations その他制限事項 | | Quasi-fire zones 準防火地域 | Overview and notices その他概要・特記事項 | | Contact: Morii Osamu, Building confirmation number 担当者:森井 修、建築確認番号: | Company profile 会社概要 | | <Mediation> governor of Osaka Prefecture (1) No. 054269 (with) Silver Li home improvement Yubinbango567-0893 Ibaraki, Osaka Tamase-cho 42-6 <仲介>大阪府知事(1)第054269号(有)シルバーリホームセンター〒567-0893 大阪府茨木市玉瀬町42-6 |
Local appearance photo現地外観写真  Local (July 2013) Shooting
現地(2013年7月)撮影
 Local (July 2013) Shooting
現地(2013年7月)撮影
 Local (July 2013) Shooting
現地(2013年7月)撮影
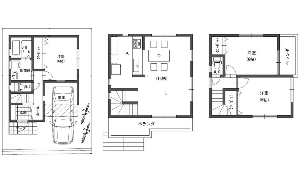
Floor plan間取り図  Price 23,900,000 yen, 3LDK, Land area 70.51 sq m , Building area 91.39 sq m
価格2390万円、3LDK、土地面積70.51m2、建物面積91.39m2
Same specifications photos (living)同仕様写真(リビング)  image
イメージ
Same specifications photo (bathroom)同仕様写真(浴室)  Panasonic made Kokochino new S class image
Panasonic製 ココチーノ new S class イメージ
Same specifications photo (kitchen)同仕様写真(キッチン)  Panasonic made living station NEW
Panasonic製リビングステーションNEW
Local photos, including front road前面道路含む現地写真  Local (July 2013) Shooting
現地(2013年7月)撮影
Supermarketスーパー  Konomiya to Settsu City Station shop 916m
コノミヤ摂津市駅前店まで916m
Local photos, including front road前面道路含む現地写真  Local (July 2013) Shooting
現地(2013年7月)撮影
Drug storeドラッグストア  Raifoto until Shojaku shop 645m
ライフォート正雀店まで645m
High school ・ College高校・高専  Private HoshiSho until high school 188m
私立星翔高校まで188m
Junior high school中学校  Settsu City 619m to stand first junior high school
摂津市立第一中学校まで619m
Post office郵便局  Settsu 578m until the post office
摂津郵便局まで578m
Bank銀行  JA Northern Osaka to South Branch 839m
JA北大阪南支店まで839m
Convenience storeコンビニ  FamilyMart Settsu 351m to Mishima shop
ファミリーマート摂津三島店まで351m
Location
|