|
|
Osaka shijonawate
大阪府四條畷市
|
|
JR katamachi line "Shinobukeoka" walk 3 minutes
JR片町線「忍ケ丘」歩3分
|
|
☆ ☆ [PanaHome] PanaHome ・ coat Shinobukeoka ☆ ☆ Shinobukeoka flat to the Train Station 3 minutes! To Kyobashi Station 20 minutes! (Section rapid use)
☆☆ 【パナホーム】パナホーム・コート 忍ヶ丘 ☆☆忍ヶ丘駅までフラット3分!京橋駅まで20分!(区間快速利用)
|
|
Shinobukeoka flat to the Train Station 3 minutes! To Kyobashi Station 20 minutes! (Section rapid use) urban three-story house of paste solar power installed and the total tile
忍ヶ丘駅までフラット3分!京橋駅まで20分!(区間快速利用)太陽光発電搭載and総タイル貼りの都市型3階建住宅
|
Local guide map 現地案内図 | | Local guide map 現地案内図 |
Features pickup 特徴ピックアップ | | Measures to conserve energy / Solar power system / Airtight high insulated houses / Super close / IH cooking heater / Three-story or more / All-electric 省エネルギー対策 /太陽光発電システム /高気密高断熱住宅 /スーパーが近い /IHクッキングヒーター /3階建以上 /オール電化 |
Property name 物件名 | | PanaHome ・ coat "Shijonawate ・ Shinobukeoka " パナホーム・コート 『四条畷・忍ヶ丘』 |
Price 価格 | | 39,500,000 yen ~ 39,500,000 yen 3950万円 ~ 3950万円 |
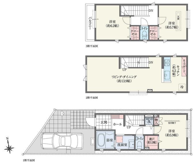
Floor plan 間取り | | 3LDK ~ 3LDK 3LDK ~ 3LDK |
Units sold 販売戸数 | | 2 units 2戸 |
Total units 総戸数 | | 2 units 2戸 |
Land area 土地面積 | | 59.23 sq m ~ 60 sq m 59.23m2 ~ 60m2 |
Building area 建物面積 | | 92.05 sq m ~ 92.05 sq m 92.05m2 ~ 92.05m2 |
Completion date 完成時期(築年月) | | March 2013 2013年3月 |
Address 住所 | | Osaka shijonawate Okayama 1-60 No. 11 大阪府四條畷市岡山1-60番11 他 |
Traffic 交通 | | JR katamachi line "Shinobukeoka" walk 3 minutes JR片町線「忍ケ丘」歩3分
|
Related links 関連リンク | | [Related Sites of this company] 【この会社の関連サイト】 |
Contact お問い合せ先 | | PanaHome Co., Ltd. Osaka Branch Keihan Sales Department TEL: 072-848-0661 Please inquire as "saw SUUMO (Sumo)" パナホーム株式会社 大阪支社 京阪営業部TEL:072-848-0661「SUUMO(スーモ)を見た」と問い合わせください |
Most price range 最多価格帯 | | 39 million yen (2 units) 3900万円台(2戸) |
Building coverage, floor area ratio 建ぺい率・容積率 | | 60% / 200% 60%/200% |
Time residents 入居時期 | | Immediate available 即入居可 |
Land of the right form 土地の権利形態 | | Ownership 所有権 |
Structure and method of construction 構造・工法 | | Light-gauge steel 軽量鉄骨 |
Construction 施工 | | PanaHome Co., Ltd. パナホーム株式会社 |
Use district 用途地域 | | Two mid-high 2種中高 |
Land category 地目 | | Residential land 宅地 |
Overview and notices その他概要・特記事項 | | Building confirmation number: H24 confirmation Ken'nishi Review large 02,814 No., Kansai Electric Power Co., Inc. None Public Water Supply 建築確認番号:H24確認建西評大02814号、関西電力 なし 公営水道 |
Company profile 会社概要 | | [Advertiser] <Seller> Minister of Land, Infrastructure and Transport (13) No. 000982 PanaHome Co., Ltd. Osaka Branch Yubinbango560-0083 Toyonaka, Osaka Shinsenrinishi cho 1-1-4 [Seller] PanaHome Co., Ltd. [Sale] PanaHome Corporation (seller) 【広告主】<売主>国土交通大臣(13)第000982号パナホーム(株)大阪支社〒560-0083 大阪府豊中市新千里西町1-1-4【売主】パナホーム株式会社【販売】パナホーム株式会社(売主) |