New Homes » Kansai » Osaka prefecture » Suita
 
| | Suita, Osaka Prefecture 大阪府吹田市 |
| Hankyu Senri Line "Yamada" walk 10 minutes 阪急千里線「山田」歩10分 |
| ■ It appeared newly built single-family with a roof to Tsukumodai! A gradient ceiling living room is 18 Pledge! ■ Since the completed that you can preview seismic control is the home of the damper as standard equipment! ■津雲台に屋上のある新築戸建てが登場!勾配天井のあるリビングは18帖です!■完成済みなので内覧できます制震ダンパー標準装備のお家です! |
| □ Since this is an open kitchen overlooks the entire living. □ Installing a large closet in each room. □ There is a large garage of digging. □ Living full of open feeling high ceilings. □オープンキッチンなのでリビング全体を見渡せます。□各居室に大きなクローゼットを設置。□掘り込みの大型ガレージがございます。□天井が高くて開放感あふれるリビング。 |
Features pickup 特徴ピックアップ | | Pre-ground survey / 2 along the line more accessible / LDK18 tatami mats or more / System kitchen / Bathroom Dryer / Yang per good / All room storage / A quiet residential area / Japanese-style room / Shaping land / Mist sauna / Washbasin with shower / Face-to-face kitchen / Toilet 2 places / Bathroom 1 tsubo or more / Double-glazing / Warm water washing toilet seat / The window in the bathroom / Atrium / TV monitor interphone / Leafy residential area / Ventilation good / All living room flooring / Dish washing dryer / Or more ceiling height 2.5m / Water filter / Three-story or more / Living stairs / roof balcony 地盤調査済 /2沿線以上利用可 /LDK18畳以上 /システムキッチン /浴室乾燥機 /陽当り良好 /全居室収納 /閑静な住宅地 /和室 /整形地 /ミストサウナ /シャワー付洗面台 /対面式キッチン /トイレ2ヶ所 /浴室1坪以上 /複層ガラス /温水洗浄便座 /浴室に窓 /吹抜け /TVモニタ付インターホン /緑豊かな住宅地 /通風良好 /全居室フローリング /食器洗乾燥機 /天井高2.5m以上 /浄水器 /3階建以上 /リビング階段 /ルーフバルコニー | Price 価格 | | 39,800,000 yen 3980万円 | Floor plan 間取り | | 3LDK 3LDK | Units sold 販売戸数 | | 1 units 1戸 | Land area 土地面積 | | 89.22 sq m (registration) 89.22m2(登記) | Building area 建物面積 | | 91.9 sq m (registration) 91.9m2(登記) | Driveway burden-road 私道負担・道路 | | Nothing, North 4.8m width 無、北4.8m幅 | Completion date 完成時期(築年月) | | 4 months after the contract 契約後4ヶ月 | Address 住所 | | Suita, Osaka Prefecture Tsukumodai 7 大阪府吹田市津雲台7 | Traffic 交通 | | Hankyu Senri Line "Yamada" walk 10 minutes Osaka Monorail Main Line "Yamada" walk 10 minutes 阪急千里線「山田」歩10分 大阪モノレール本線「山田」歩10分
| Related links 関連リンク | | [Related Sites of this company] 【この会社の関連サイト】 | Contact お問い合せ先 | | TEL: 0800-603-3417 [Toll free] mobile phone ・ Also available from PHS Caller ID is not notified Please contact the "saw SUUMO (Sumo)" If it does not lead, If the real estate company TEL:0800-603-3417【通話料無料】携帯電話・PHSからもご利用いただけます 発信者番号は通知されません 「SUUMO(スーモ)を見た」と問い合わせください つながらない方、不動産会社の方は
| Building coverage, floor area ratio 建ぺい率・容積率 | | 60% ・ 200% 60%・200% | Time residents 入居時期 | | 4 months after the contract 契約後4ヶ月 | Land of the right form 土地の権利形態 | | Ownership 所有権 | Structure and method of construction 構造・工法 | | Wooden three-story 木造3階建 | Use district 用途地域 | | Semi-industrial 準工業 | Overview and notices その他概要・特記事項 | | Facilities: Public Water Supply, This sewage, City gas, Building confirmation number: A3980, Parking: Garage 設備:公営水道、本下水、都市ガス、建築確認番号:A3980、駐車場:車庫 | Company profile 会社概要 | | <Mediation> governor of Osaka (2) the first 050,580 No. Pitattohausu Minamisenri shop House Housing Management (with) Yubinbango565-0852 Suita, Osaka Prefecture Senriyamatakezono 2-25-5 <仲介>大阪府知事(2)第050580号ピタットハウス南千里店ハウス住宅管理(有)〒565-0852 大阪府吹田市千里山竹園2-25-5 |
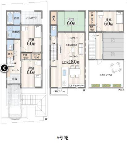
Floor plan間取り図  39,800,000 yen, 3LDK, Land area 89.22 sq m , Building area 91.9 sq m
3980万円、3LDK、土地面積89.22m2、建物面積91.9m2
 Same specifications photos (appearance)
同仕様写真(外観)
 Same specifications photos (appearance)
同仕様写真(外観)
 Same specifications photos (appearance)
同仕様写真(外観)
 Same specifications photos (living)
同仕様写真(リビング)
 Same specifications photo (bathroom)
同仕様写真(浴室)
 Same specifications photo (kitchen)
同仕様写真(キッチン)
Junior high school中学校  917m to Suita Municipal Furuedai junior high school
吹田市立古江台中学校まで917m
 Same specifications photos (Other introspection)
同仕様写真(その他内観)
 Same specifications photos (living)
同仕様写真(リビング)
Primary school小学校  501m to Suita Municipal Tsukumodai Elementary School
吹田市立津雲台小学校まで501m
 Same specifications photos (Other introspection)
同仕様写真(その他内観)
 Same specifications photos (living)
同仕様写真(リビング)
Supermarketスーパー  756m until Daimarupikokku Tsukumodai shop
大丸ピーコック津雲台店まで756m
 Same specifications photos (Other introspection)
同仕様写真(その他内観)
 Same specifications photos (living)
同仕様写真(リビング)
Shopping centreショッピングセンター  976m to the Sports Authority due Hankyu Yamada shop
スポーツオーソリティデュー阪急山田店まで976m
 Same specifications photos (Other introspection)
同仕様写真(その他内観)
 Same specifications photos (Other introspection)
同仕様写真(その他内観)
Location
|