New Homes » Kansai » Osaka prefecture » Suita


Suita, Osaka Prefecture
Subway Midosuji "Esaka" walk 16 minutes
Land area 100.49 sq m ! ! Good per sun! ! LDK18.9 Pledge! ! Station walk about 16 minutes! ! Front road width about 4.7m! !
☆ Point1 ☆ Land area 30.39 square meters! ! ☆ Point2 ☆ LDK18.9 Pledge! ! ☆ Point3 ☆ Station walk about 16 minutes! ! ☆ Point4 ☆ Front road width about 4.7m! ! ☆ Point5 ☆ Storeroom there! !
Features pickup
LDK18 tatami mats or more / System kitchen / Face-to-face kitchen / 2-story / 2 or more sides balcony / City gas / Storeroom
Price
39,800,000 yen
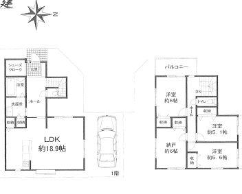
Floor plan
3LDK
Units sold
1 units
Land area
100.49 sq m (30.39 tsubo) (Registration)
Building area
105.37 sq m (31.87 tsubo) (Registration)
Driveway burden-road
Nothing, West 4.7m width
Completion date
September 2013
Address
Suita, Osaka Esaka-cho 3
Traffic
Subway Midosuji "Esaka" walk 16 minutes
Northern Osaka Express "Esaka" walk 16 minutes
Related links
[Related Sites of this company]
Person in charge
Rep Sano Toru real estate in most cases, It is the largest shopping in a lifetime. That's why, We will carry out correspondence of customers of the perspective cordial. As you can think, "it was good to leave to the Gold Star", We support our customers in the best!
Contact
TEL: 0800-602-6164 [Toll free] mobile phone ・ Also available from PHS
Caller ID is not notified
Please contact the "saw SUUMO (Sumo)"
If it does not lead, If the real estate company
Building coverage, floor area ratio
60% ・ 200%
Time residents
Consultation
Land of the right form
Ownership
Structure and method of construction
Wooden 2-story
Use district
Two mid-high
Overview and notices
Contact: Sano Toru, Facilities: Public Water Supply, This sewage, City gas, Building confirmation number: JI3-00231, Parking: car space
Company profile
<Mediation> governor of Osaka Prefecture (1) No. 056008 (Ltd.) Gold Star Yubinbango566-0021 Osaka Settsu Minamisenrioka 1-34


Floor plan

Floor plan. 39,800,000 yen, 3LDK, Land area 100.49 sq m , Building area 105.37 sq m
39,800,000 yen, 3LDK, Land area 100.49 sq m , Building area 105.37 sq m

Primary school

Primary school. 781m to Suita Municipal Esaka Oike elementary school
781m to Suita Municipal Esaka Oike elementary school

Junior high school

Junior high school. 1054m to Suita Municipal Toyotsu West Junior High School
1054m to Suita Municipal Toyotsu West Junior High School



Location