|
|
Suita, Osaka Prefecture
大阪府吹田市
|
|
Hankyu Kyoto Line "Kami Shinjo" walk 8 minutes
阪急京都線「上新庄」歩8分
|
|
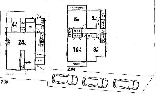
Parking three OK ☆ LDK is comfortably spacious of 24 quires 5LDK ☆
駐車3台OK☆LDKはゆったり広々24帖の5LDK☆
|
|
☆ Point1 ☆ Land about 54.10 square meters! ☆ Point2 ☆ Nantes, Parking three OK! ☆ Point3 ☆ Loose Pledge LDK24! ☆ Point4 ☆ A fun bath time dated bathroom TV! ☆ Point5 ☆ Worth a look Yes! [primary school] Suita first elementary school [Junior high school] The third junior high school
☆Point1☆ 土地約54.10坪!☆Point2☆ ナント、駐車3台OK!☆Point3☆ ゆったりLDK24帖!☆Point4☆ 浴室テレビ付で楽しいバスタイムを!☆Point5☆ 一見の価値有!【小学校】吹田第一小学校 【中学校】第三中学校
|
Features pickup 特徴ピックアップ | | Parking three or more possible / LDK20 tatami mats or more / Land 50 square meters or more / System kitchen / Japanese-style room / Face-to-face kitchen / Toilet 2 places / Bathroom 1 tsubo or more / 2-story / TV monitor interphone / City gas 駐車3台以上可 /LDK20畳以上 /土地50坪以上 /システムキッチン /和室 /対面式キッチン /トイレ2ヶ所 /浴室1坪以上 /2階建 /TVモニタ付インターホン /都市ガス |
Price 価格 | | 35,800,000 yen 3580万円 |
Floor plan 間取り | | 5LDK 5LDK |
Units sold 販売戸数 | | 1 units 1戸 |
Total units 総戸数 | | 1 units 1戸 |
Land area 土地面積 | | 178.86 sq m (54.10 tsubo) (Registration) 178.86m2(54.10坪)(登記) |
Building area 建物面積 | | 137.7 sq m (41.65 tsubo) (Registration) 137.7m2(41.65坪)(登記) |
Driveway burden-road 私道負担・道路 | | Nothing, Southeast 5.2m width 無、南東5.2m幅 |
Completion date 完成時期(築年月) | | February 2014 2014年2月 |
Address 住所 | | Suita, Osaka Higashiotabi cho 大阪府吹田市東御旅町 |
Traffic 交通 | | Hankyu Kyoto Line "Kami Shinjo" walk 8 minutes Hankyu Kyoto Line "Aikawa" walk 14 minutes 阪急京都線「上新庄」歩8分 阪急京都線「相川」歩14分
|
Related links 関連リンク | | [Related Sites of this company] 【この会社の関連サイト】 |
Person in charge 担当者より | | Rep Sano Toru real estate in most cases, It is the largest shopping in a lifetime. That's why, We will carry out correspondence of customers of the perspective cordial. As you can think, "it was good to leave to the Gold Star", We support our customers in the best! 担当者佐野 徹不動産は大抵の場合、生涯で一番大きなお買い物です。だからこそ、お客様の視点に立ち誠心誠意のご対応をさせて頂きます。「ゴールドスターに任せて良かった」と思って頂けるよう、お客様を全力でサポート致します! |
Contact お問い合せ先 | | TEL: 0800-602-6164 [Toll free] mobile phone ・ Also available from PHS Caller ID is not notified Please contact the "saw SUUMO (Sumo)" If it does not lead, If the real estate company TEL:0800-602-6164【通話料無料】携帯電話・PHSからもご利用いただけます 発信者番号は通知されません 「SUUMO(スーモ)を見た」と問い合わせください つながらない方、不動産会社の方は
|
Building coverage, floor area ratio 建ぺい率・容積率 | | 60% ・ 200% 60%・200% |
Time residents 入居時期 | | Three months after the contract 契約後3ヶ月 |
Land of the right form 土地の権利形態 | | Ownership 所有権 |
Structure and method of construction 構造・工法 | | Wooden 2-story 木造2階建 |
Use district 用途地域 | | Industry 工業 |
Overview and notices その他概要・特記事項 | | Contact: Sano Toru, Facilities: Public Water Supply, This sewage, City gas, Building confirmation number: 1395, Parking: car space 担当者:佐野 徹、設備:公営水道、本下水、都市ガス、建築確認番号:1395、駐車場:カースペース |
Company profile 会社概要 | | <Mediation> governor of Osaka Prefecture (1) No. 056008 (Ltd.) Gold Star Yubinbango566-0021 Osaka Settsu Minamisenrioka 1-34 <仲介>大阪府知事(1)第056008号(株)ゴールドスター〒566-0021 大阪府摂津市南千里丘1-34 |