|
|
Suita, Osaka Prefecture
大阪府吹田市
|
|
Hankyu Senri Line "Senriyama" walk 8 minutes
阪急千里線「千里山」歩8分
|
|
☆ Hankyu Senri Line "Senriyama" an 8-minute walk! ☆ South terraced! ☆ Free Plan!
☆阪急千里線「千里山」徒歩8分!☆南ひな壇!☆フリープラン!
|
|
☆ Point1 ☆ Hankyu Senri Line "Senriyama" Station 8-minute walk! ☆ Point2 ☆ South terraced! ☆ Point3 ☆ With double-sided balcony! ☆ Point4 ☆ All room with storage! ☆ Point5 ☆ Parking 2 cars! [primary school] The second elementary school [Junior high school] The first junior high school
☆Point1☆ 阪急千里線「千里山」駅徒歩8分!☆Point2☆ 南ひな壇!☆Point3☆ 両面バルコニー付き!☆Point4☆ 全部屋収納付き!☆Point5☆ 駐車場2台分!【小学校】第二小学校 【中学校】第一中学校
|
Features pickup 特徴ピックアップ | | Parking two Allowed / System kitchen / Washbasin with shower / Face-to-face kitchen / Toilet 2 places / Bathroom 1 tsubo or more / 2-story / 2 or more sides balcony / Double-glazing / City gas 駐車2台可 /システムキッチン /シャワー付洗面台 /対面式キッチン /トイレ2ヶ所 /浴室1坪以上 /2階建 /2面以上バルコニー /複層ガラス /都市ガス |
Event information イベント情報 | | Local tours (please make a reservation beforehand) 現地見学会(事前に必ず予約してください) |
Price 価格 | | 41,800,000 yen 4180万円 |
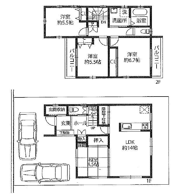
Floor plan 間取り | | 4LDK 4LDK |
Units sold 販売戸数 | | 1 units 1戸 |
Total units 総戸数 | | 1 units 1戸 |
Land area 土地面積 | | 115.16 sq m (34.83 tsubo) (Registration) 115.16m2(34.83坪)(登記) |
Building area 建物面積 | | 92.34 sq m (27.93 tsubo) (Registration) 92.34m2(27.93坪)(登記) |
Driveway burden-road 私道負担・道路 | | Nothing, West 4m width 無、西4m幅 |
Completion date 完成時期(築年月) | | March 2014 2014年3月 |
Address 住所 | | Suita, Osaka Prefecture Senriyamatsukigaoka 大阪府吹田市千里山月が丘 |
Traffic 交通 | | Hankyu Senri Line "Senriyama" walk 8 minutes 阪急千里線「千里山」歩8分
|
Related links 関連リンク | | [Related Sites of this company] 【この会社の関連サイト】 |
Person in charge 担当者より | | Rep Sano Toru real estate in most cases, It is the largest shopping in a lifetime. That's why, We will carry out correspondence of customers of the perspective cordial. As you can think, "it was good to leave to the Gold Star", We support our customers in the best! 担当者佐野 徹不動産は大抵の場合、生涯で一番大きなお買い物です。だからこそ、お客様の視点に立ち誠心誠意のご対応をさせて頂きます。「ゴールドスターに任せて良かった」と思って頂けるよう、お客様を全力でサポート致します! |
Contact お問い合せ先 | | TEL: 0800-602-6164 [Toll free] mobile phone ・ Also available from PHS Caller ID is not notified Please contact the "saw SUUMO (Sumo)" If it does not lead, If the real estate company TEL:0800-602-6164【通話料無料】携帯電話・PHSからもご利用いただけます 発信者番号は通知されません 「SUUMO(スーモ)を見た」と問い合わせください つながらない方、不動産会社の方は
|
Building coverage, floor area ratio 建ぺい率・容積率 | | 60% ・ 200% 60%・200% |
Time residents 入居時期 | | Three months after the contract 契約後3ヶ月 |
Land of the right form 土地の権利形態 | | Ownership 所有権 |
Structure and method of construction 構造・工法 | | Wooden 2-story 木造2階建 |
Use district 用途地域 | | One middle and high 1種中高 |
Overview and notices その他概要・特記事項 | | Contact: Sano Toru, Facilities: Public Water Supply, This sewage, City gas, Building confirmation number: 123456789, Parking: car space 担当者:佐野 徹、設備:公営水道、本下水、都市ガス、建築確認番号:123456789、駐車場:カースペース |
Company profile 会社概要 | | <Mediation> governor of Osaka Prefecture (1) No. 056008 (Ltd.) Gold Star Yubinbango566-0021 Osaka Settsu Minamisenrioka 1-34 <仲介>大阪府知事(1)第056008号(株)ゴールドスター〒566-0021 大阪府摂津市南千里丘1-34 |