New Homes » Kansai » Osaka prefecture » Suita
 
| | Suita, Osaka Prefecture 大阪府吹田市 |
| JR Tokaido Line "Suita" walk 29 minutes JR東海道本線「吹田」歩29分 |
| Home style [Mediation ・ Renovation ・ Architecture ・ Finance ・ Financial Plan] It is a company that is doing a comprehensive proposal of! ホームスタイルは【仲介・リフォーム・建築・金融・ファイナンシャルプラン】の総合提案を行っている会社です! |
| ☆ Local tours ・ Mortgage briefing held in! ☆ Down payment $ 0, Full loan possible! ◇ Thank a lot of properties that have not been posted on the net ※ Appearance of this publication ・ Introspection ・ Amenities are the same scale ・ format ・ It is the example of construction photos of the same specification. Gate ・ Planting ・ It will differ from this matter for the garden and the nearby landscape, etc.. ☆現地見学会・住宅ローン説明会開催中!☆頭金0円、フルローン可能!◇ネットに掲載されていない物件もたくさんございます※本掲載の外観・内観・設備写真は同一規模・形式・同仕様の施工例写真です。門扉・植栽・庭や近隣の風景等について本件と異なります。 |
Features pickup 特徴ピックアップ | | Yang per good / A quiet residential area / Japanese-style room / Toilet 2 places / 2-story / Ventilation good / Flat terrain 陽当り良好 /閑静な住宅地 /和室 /トイレ2ヶ所 /2階建 /通風良好 /平坦地 | Price 価格 | | 32,800,000 yen 3280万円 | Floor plan 間取り | | 3LDK + S (storeroom) 3LDK+S(納戸) | Units sold 販売戸数 | | 1 units 1戸 | Total units 総戸数 | | 1 units 1戸 | Land area 土地面積 | | 72.62 sq m (registration) 72.62m2(登記) | Building area 建物面積 | | 108.01 sq m (registration) 108.01m2(登記) | Driveway burden-road 私道負担・道路 | | Nothing 無 | Completion date 完成時期(築年月) | | December 2013 2013年12月 | Address 住所 | | Suita, Osaka Prefecture Haramachi 2 大阪府吹田市原町2 | Traffic 交通 | | JR Tokaido Line "Suita" walk 29 minutes Hankyu Senri Line "Kandai before" walk 27 minutes Hankyu Senri Line "Senriyama" walk 27 minutes JR東海道本線「吹田」歩29分 阪急千里線「関大前」歩27分 阪急千里線「千里山」歩27分
| Related links 関連リンク | | [Related Sites of this company] 【この会社の関連サイト】 | Person in charge 担当者より | | Rep Takami Junichi Age: The 30's customer-first principle. Prior to joining the, Taking advantage of the experience that had been working in the construction company, We can reform proposals in your eyes. Customers and conversation, It is a fun time time to go to see the property. 担当者高見 淳一年齢:30代お客様第一主義です。前職は、建築会社で働いていました経験を生かし、お客様目線でリフォームの提案ができます。お客様と会話、物件を見に行く時間が楽しい時間です。 | Contact お問い合せ先 | | TEL: 0800-603-3479 [Toll free] mobile phone ・ Also available from PHS Caller ID is not notified Please contact the "saw SUUMO (Sumo)" If it does not lead, If the real estate company TEL:0800-603-3479【通話料無料】携帯電話・PHSからもご利用いただけます 発信者番号は通知されません 「SUUMO(スーモ)を見た」と問い合わせください つながらない方、不動産会社の方は
| Building coverage, floor area ratio 建ぺい率・容積率 | | 60% ・ 188 percent 60%・188% | Time residents 入居時期 | | Three months after the contract 契約後3ヶ月 | Land of the right form 土地の権利形態 | | Ownership 所有権 | Structure and method of construction 構造・工法 | | Wooden second floor underground 1 story 木造2階地下1階建 | Use district 用途地域 | | Two mid-high 2種中高 | Overview and notices その他概要・特記事項 | | Contact: Takami Junichi, Facilities: Public Water Supply, This sewage, City gas, Parking: Garage 担当者:高見 淳一、設備:公営水道、本下水、都市ガス、駐車場:車庫 | Company profile 会社概要 | | <Mediation> governor of Osaka (2) No. 050720 (Corporation) All Japan Real Estate Association (Corporation) Kinki district Real Estate Fair Trade Council member Century 21 Home style (Ltd.) Yubinbango564-0062 Suita, Osaka Prefecture Tarumi-cho 3-35-12 <仲介>大阪府知事(2)第050720号(公社)全日本不動産協会会員 (公社)近畿地区不動産公正取引協議会加盟センチュリー21ホームスタイル(株)〒564-0062 大阪府吹田市垂水町3-35-12 |
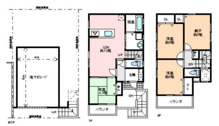
Floor plan間取り図  32,800,000 yen, 3LDK + S (storeroom), Land area 72.62 sq m , It is a building area of 108.01 sq m nice floor plan. one time, Please come to visit the site
3280万円、3LDK+S(納戸)、土地面積72.62m2、建物面積108.01m2 素敵な間取りです。一度、現場に見学しにきてください
Local appearance photo現地外観写真  First floor, It has become dug garage
1階が、掘り込み車庫になっています
Local photos, including front road前面道路含む現地写真  It is a front road
前面道路です
Local appearance photo現地外観写真  Current, It is under construction. Completed, It is fun
現在、建築中です。 完成が、楽しみですね
Livingリビング  November is the current state of the house
11月現在のお家の状況です
Junior high school中学校  676m to Suita City Katayama Junior High School
吹田市立片山中学校まで676m
Otherその他  Thermal insulation material
断熱材
 Battledore bolt
羽子板ボルト
Location
|