New Homes » Kansai » Osaka prefecture » Takaishi


Osaka Prefecture Takaishi
Nankai Main Line "Takaishi" walk 8 minutes
Yes, such as coastal sports center and Hamaderakoen is near, Living environment because it is an 8-minute walk from the Takaishi Station is outstanding! !
Free design! In wood deck barbecue space, etc., Please tell us your dream! !
Features pickup
Pre-ground survey / 2 along the line more accessible / Immediate delivery Allowed / It is close to Tennis Court / Super close / It is close to the city / Within 2km to the sea / Yang per good / A quiet residential area / Around traffic fewer / Home garden / Leafy residential area / Mu front building / Maintained sidewalk / Flat terrain / Building plan example there
Event information
Local guide Board (Please be sure to ask in advance) schedule / Every Saturday, Sunday and public holidays
Price
15.3 million yen
Building coverage, floor area ratio
60% ・ 200%
Sales compartment
1 compartment
Total number of compartments
1 compartment
Land area
120.87 sq m (36.56 tsubo) (Registration)
Driveway burden-road
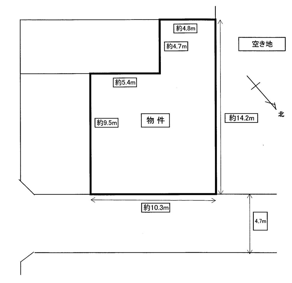
Nothing, Northeast 4.7m width (contact the road width 10.3m)
Land situation
Vacant lot
Address
Osaka Prefecture Takaishi Chiyoda 2-4-12
Traffic
Nankai Main Line "Takaishi" walk 8 minutes
Nankai Takashinohama line "Takashinohama" walk 6 minutes
Contact
Shinei Home (Ltd.) TEL: 072-433-8787 Please inquire as "saw SUUMO (Sumo)"
Expenses
Town council fee: unspecified amount
Land of the right form
Ownership
Building condition
With
Time delivery
Immediate delivery allowed
Land category
Residential land
Use district
One middle and high
Overview and notices
Facilities: Public Water Supply, This sewage, City gas
Company profile
<Seller> governor of Osaka Prefecture (1) the first 054,986 No. Shinei Home Co., Ltd. Yubinbango596-0073 Osaka Kishiwada Kishiki cho 3-24 Shinei building first floor


Local land photo

Local land photo. Local (11 May 2013) Shooting
Local (11 May 2013) Shooting

Other

Other. 2 minute walk to the park ^^
2 minute walk to the park ^^

Other. Seaside sports center ^^ That there is a skating rink
Seaside sports center ^^ That there is a skating rink

Local photos, including front road

Local photos, including front road. Local (11 May 2013) Shooting
Local (11 May 2013) Shooting

Building plan example (exterior photos)

Building plan example (exterior photos). Building plan example
Building plan example

Supermarket

Supermarket. Until Life Takaishi shop 737m
Until Life Takaishi shop 737m

The entire compartment Figure

The entire compartment Figure. Compartment figure
Compartment figure

Other

Other. Takaishi Station
Takaishi Station

Building plan example (exterior photos)

Building plan example (exterior photos). Building plan example
Building plan example

Building plan example (exterior photos). Building plan example ( Issue land)
Building plan example ( Issue land)

Other
Other

Building plan example (introspection photo)

Building plan example (introspection photo). Building plan example
Building plan example

Other
Other

Other
Other



Location