New Homes » Kansai » Osaka prefecture » Takatsuki
 
| | Osaka Takatsuki 大阪府高槻市 |
| JR Tokaido Line "Takatsuki" walk 16 minutes JR東海道本線「高槻」歩16分 |
| ◆ Good access to the 2WAY available and the city center! ◆ Southeast direction! Northwest side is good ventilation for open space! ◆ Since it is possible to change floor plans, Please tell us your favorite plan! ◆2WAY利用可能で都心へのアクセス良好です!◆東南向き!北西側が空地のため通風良好です!◆間取り変更が可能ですので、お好みのプランをお申し付け下さい! |
| ◆ □ ◆ □ ◆ □ ◆ □ ◆ □ ◆ □ ◆ □ ◆ □ ◆ □ ◆ □ ◆ Now is the chance of the previous economic recovery if you buy a house! ◆ □ ◆ □ ◆ □ ◆ □ ◆ □ ◆ □ ◆ □ ◆ □ ◆ □ ◆ □ ◆ Recovery of the economy is coming around the corner! Real estate shall retain the long-term. If Do not Relocation wise? ↓ ↓ ↓ there is no down payment ・ It was refused by other companies ・ Not sell the house ・ Undeclared ・ But she was a woman ... and so on to what your worries also you consider the consultation please ◎ purchase everyone at the individual purchase consultation, We will teach the secret of real estate purchase (when you coming to the store, annual income ・ Please prepare what you can see of your borrowing situation) ◆□◆□◆□◆□◆□◆□◆□◆□◆□◆□◆ 家を買うなら景気回復前の今がチャンス! ◆□◆□◆□◆□◆□◆□◆□◆□◆□◆□◆ 景気の回復はもうすぐそこまで来ています! 不動産は長期に保有するもの。ならば賢く住み替えませんか? ↓ ↓ ↓頭金が無い・他社で断られた・家が売れない・申告していない・女性だけど...等々個別購入相談会にてどんなお悩みもご相談下さい◎ご購入をご検討の皆様に、不動産購入の極意を伝授致します(ご来店の際は、年収・お借入れ状況の分かるものをご用意下さい) |
Features pickup 特徴ピックアップ | | Pre-ground survey / Parking two Allowed / 2 along the line more accessible / Super close / It is close to the city / Facing south / Yang per good / All room storage / Flat to the station / Siemens south road / Around traffic fewer / Starting station / Shaping land / Toilet 2 places / 2 or more sides balcony / South balcony / The window in the bathroom / Urban neighborhood / Ventilation good / All living room flooring / Good view / All room 6 tatami mats or more / Three-story or more / City gas / A large gap between the neighboring house / Flat terrain / All rooms facing southeast 地盤調査済 /駐車2台可 /2沿線以上利用可 /スーパーが近い /市街地が近い /南向き /陽当り良好 /全居室収納 /駅まで平坦 /南側道路面す /周辺交通量少なめ /始発駅 /整形地 /トイレ2ヶ所 /2面以上バルコニー /南面バルコニー /浴室に窓 /都市近郊 /通風良好 /全居室フローリング /眺望良好 /全居室6畳以上 /3階建以上 /都市ガス /隣家との間隔が大きい /平坦地 /全室東南向き | Price 価格 | | 27,800,000 yen 2780万円 | Floor plan 間取り | | 3LDK 3LDK | Units sold 販売戸数 | | 1 units 1戸 | Land area 土地面積 | | 75.35 sq m (registration) 75.35m2(登記) | Building area 建物面積 | | 85.05 sq m (registration) 85.05m2(登記) | Driveway burden-road 私道負担・道路 | | Nothing, Southeast 4.8m width (contact the road width 7.1m) 無、南東4.8m幅(接道幅7.1m) | Completion date 完成時期(築年月) | | Three months after the contract 契約後3ヶ月 | Address 住所 | | Osaka Takatsuki Kawanishi-cho 3 大阪府高槻市川西町3 | Traffic 交通 | | JR Tokaido Line "Takatsuki" walk 16 minutes Hankyu Kyoto Line "Takatsuki" walk 22 minutes JR Tokaido Line "Tomita Settsu" walk 19 minutes JR東海道本線「高槻」歩16分 阪急京都線「高槻市」歩22分 JR東海道本線「摂津富田」歩19分
| Related links 関連リンク | | [Related Sites of this company] 【この会社の関連サイト】 | Contact お問い合せ先 | | TEL: 0800-602-6604 [Toll free] mobile phone ・ Also available from PHS Caller ID is not notified Please contact the "saw SUUMO (Sumo)" If it does not lead, If the real estate company TEL:0800-602-6604【通話料無料】携帯電話・PHSからもご利用いただけます 発信者番号は通知されません 「SUUMO(スーモ)を見た」と問い合わせください つながらない方、不動産会社の方は
| Building coverage, floor area ratio 建ぺい率・容積率 | | 60% ・ 200% 60%・200% | Time residents 入居時期 | | Consultation 相談 | Land of the right form 土地の権利形態 | | Ownership 所有権 | Structure and method of construction 構造・工法 | | Wooden three-story 木造3階建 | Use district 用途地域 | | One middle and high 1種中高 | Other limitations その他制限事項 | | ※ Building construction costs ・ Exterior construction costs ・ Water City receipt of payment ・ Ground improvement costs ・ Performance warranty costs separately required ※建築確認費・外構工事費・水道市納金・地盤改良費・性能保証費別途要 | Overview and notices その他概要・特記事項 | | Facilities: Public Water Supply, This sewage, City gas, Building confirmation number: 000, Parking: car space 設備:公営水道、本下水、都市ガス、建築確認番号:000、駐車場:カースペース | Company profile 会社概要 | | <Mediation> governor of Osaka (2) No. 051345 (Ltd.) World ・ One Takatsuki store Yubinbango569-0064 Osaka Takatsuki Shosho-cho 2-13 <仲介>大阪府知事(2)第051345号(株)ワールド・ワン高槻店〒569-0064 大阪府高槻市庄所町2-13 |
Same specifications photo (bathroom)同仕様写真(浴室)  Good access to the 2WAY available and the city center! Southeast direction! Northwest side is good ventilation for open space! Since it is possible to change floor plans, Please tell us your favorite plan!
2WAY利用可能で都心へのアクセス良好です!東南向き!北西側が空地のため通風良好です!間取り変更が可能ですので、お好みのプランをお申し付け下さい!
Otherその他  Not leave it to the property if our Takatsuki!
高槻市の物件なら当社にお任せ下さいませ!
Same specifications photos (living)同仕様写真(リビング)  All room is the flooring of the plan!
全居室フローリングのプランです!
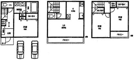
Floor plan間取り図  27,800,000 yen, 3LDK, Land area 75.35 sq m , Building area 85.05 sq m floor plan can be changed!
2780万円、3LDK、土地面積75.35m2、建物面積85.05m2 間取り変更可能です!
Rendering (appearance)完成予想図(外観)  Balcony is located in a total of 2 places!
バルコニーは計2ヵ所にございます!
Otherその他  Same specifications Photos
同仕様写真
Same specifications photos (Other introspection)同仕様写真(その他内観)  Same specifications Photos
同仕様写真
Local photos, including front road前面道路含む現地写真  Local surrounding environment
現地周辺環境
Primary school小学校  344m to Takatsuki Municipal Tsue Elementary School
高槻市立津之江小学校まで344m
Junior high school中学校  508m to Takatsuki Tachikawa West Junior High School
高槻市立川西中学校まで508m
Otherその他  About walk from JR Takatsuki 16 minutes
JR高槻市から徒歩約16分
 Hankyu Takatsuki station also available
阪急高槻市駅もご利用いただけます
Supermarketスーパー  Until Savoy Tsue shop 692m
サボイ津之江店まで692m
 1107m to Hankyu Oasis Takatsuki Kawanishi shop
阪急オアシス高槻川西店まで1107m
Home centerホームセンター  1273m to the home center Konan Takatsuki Josai shop
ホームセンターコーナン高槻城西店まで1273m
Otherその他  Arupuraza Takatsuki
アルプラザ高槻
 Aurora Mall Takatsuki
オーロラモール高槻
Convenience storeコンビニ  FamilyMart 862m to Takatsuki Kawanishi-cho, chome shop
ファミリーマート高槻川西町一丁目店まで862m
Shopping centreショッピングセンター  1143m until Nishimatsuya Takatsuki County home store
西松屋高槻郡家店まで1143m
Post office郵便局  676m to Takatsuki Kawanishi post office
高槻川西郵便局まで676m
Park公園  1038m to Akutagawa park
芥川公園まで1038m
Presentプレゼント ![Present. [Limited time offer] When your conclusion of a contract to Customers who have received contact us by phone, Authentic Motchiri bread of the topic and easy to enjoy at home, "a Panasonic: Gopan" I will present the! ! First arrival 50 people limited! !](/images/osaka/takatsuki/a13dea0001.jpg) [Limited time offer] When your conclusion of a contract to Customers who have received contact us by phone, Authentic Motchiri bread of the topic and easy to enjoy at home, "a Panasonic: Gopan" I will present the! ! First arrival 50 people limited! !
【期間限定】お電話にてお問い合わせ頂きましたお客様にご成約時、本格もっちりパンがご自宅で手軽に楽しめると話題の『Panasonic製:ゴパン』をプレゼントさせていただきます!!先着50名様限定です!!
Location
|